Ons kantoor is lid van Baerz & Co Luxury Homes; een internationaal platform dat exclusieve woningmakelaars met elkaar verbindt. Neem contact op met ons secretariaat voor meer informatie over het landelijke aanbod, waarvan u hieronder een selectie kunt bekijken.

AMSTERDAM
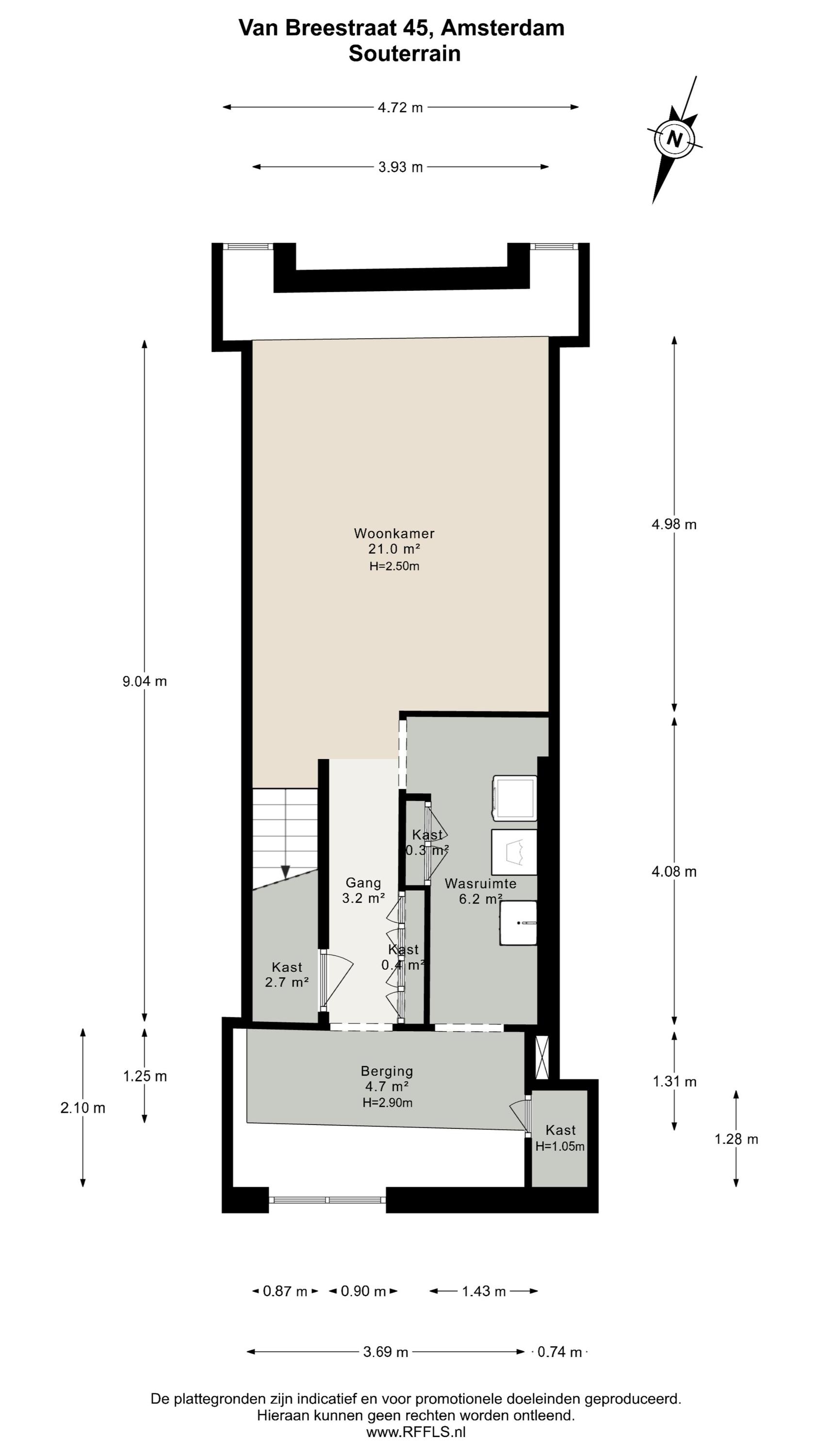
Van Breestraat 45 - 1071 ZG
Die Niederlande

Eran Hausel profile image
Eran Hausel
Real estate agent
€4,250,000 k.k.
Wohnbereich
291m2
Grundstücksgröße
115m2
Schlafzimmer
4

Beschreibung

Das Townhouse Amsterdam Oud-Zuid verkörpert die Verschmelzung architektonischer Integrität mit urbanem Prestige an einer der begehrtesten Adressen Amsterdams. Dieses Familienhaus verteilt sich über 291 m² und erstreckt sich über fünf volle Etagen in der Van Breestraat im Museumsviertel, nur wenige Schritte von der P.C. Hooftstraat, dem Vondelpark und dem Museumplein entfernt. Das Zuhause bietet eine private Welt, geprägt durch die architektonische Renovierung von Dick van Gameren im Jahr 2012, in der großzügige Raumabfolgen, reichlich Tageslicht und ein ruhiges Design harmonisch zusammentreffen. Das Townhouse bietet vier Schlafzimmer, zwei Badezimmer, ein lichtdurchflutetes Atrium mit großem Oberlicht sowie einen nach Süden ausgerichteten Garten von 40,2 m², der einen natürlichen Übergang zum Wohnbereich für das Leben im Freien in Amsterdam Oud-Zuid schafft.

Überall im Haus sorgen das Wechselspiel aus Originaldetails und hochwertigen Modernisierungen—wie programmierbare smarte Schalter, Hausautomation (Domotica), hochwertige Schalldämmung und Klimaanlage—für maximalen Komfort und Zukunftssicherheit. Die maßgeschneiderte Küche eignet sich sowohl für familiäre Mahlzeiten als auch für repräsentative Empfänge und führt über französische Türen direkt auf die überdachte Terrasse und in den Garten. Mehrere Balkone, ein multifunktionales Untergeschoss und eine Galerie mit Blick auf das zentrale Atrium verleihen dem Wohnerlebnis zusätzliche Dimension.

Mit Energieeffizienzklasse A, fortschrittlicher Haustechnik, Solarpanels und vorbereiteten Aufzugsschächten verbindet das Anwesen Nachhaltigkeit mit zeitgemäßer Flexibilität. In einer ruhigen, von Bäumen gesäumten Straße mit dem Charakter eines Wohnquartiers gelegen, bietet die Adresse dörfliche Gelassenheit im pulsierenden Amsterdam. Exzellente Verkehrsanbindung, nahegelegene internationale Schulen und der direkte Zugang zu den kulturellen Highlights bereichern das tägliche Leben. Dieses Townhouse in Amsterdam Oud-Zuid vereint Privatsphäre und Dynamik und verkörpert damit urbanes Wohnen auf Weltniveau.

Entdecken Sie Amsterdam mit Baerz, Ihrem vertrauenswürdigen persönlichen Immobilienfinder und Berater

Der Zugang zum Luxusimmobilienmarkt von Amsterdam erfordert tiefgreifendes lokales Know-how, Diskretion und Verhandlungsgeschick. Erstklassige Berater verschaffen Zugang zu privaten Angeboten, erklären komplexe Besitzrechte und erkennen Werte in einem Markt, in dem Opportunitäten selten sichtbar werden. Beratungsteams prüfen jedes Objekt sorgfältig und vertreten Ihre Interessen souverän – sie stärken Ihre Verhandlungsposition, begleiten Transaktionen nahtlos und wahren Ihre Privatsphäre.

Häufige Fallstricke vermeiden

Internationale Käufer verlieren oft wertvolle Zeit, weil sie sich durch doppelte, veraltete oder irreführende Online-Angebote kämpfen müssen – besonders da fast 30% aller Luxusimmobilien überhaupt nicht auf dem Markt erscheinen.
Makler des Verkäufers vertreten die Interessen des Verkäufers, nicht Ihre, und schon eine einfache Anfrage kann dazu führen, dass eine Agentur Sie ohne Ihre Zustimmung als deren „Kunden“ registriert.
Mit Baerz Property Finders & Advisors umgehen Sie all diese Fallstricke vollständig.
Wir handeln ausschließlich in Ihrem Interesse, bieten unabhängige Vertretung, transparente Beratung und Zugang zu jedem verfügbaren Objekt – einschließlich privater und off-market Angebote, die andere nie zu sehen bekommen.

Neugierig, wie Sie Ihren eigenen Personal Property Advisor sichern können? Kontaktieren Sie uns, um zu erfahren, wie wir Ihre Interessen vertreten und Ihnen den gesamten Markt öffnen können.

Merkmale

Solarmodule
Eigentumsübertragung
Verkaufspreis
€ 4.250.000 k.k.
Status
beschikbaar
Annahme
in overleg
Bau
Art des Hauses
Eengezinswoning
Gebäudetyp
tussenwoning
Bauzeitraum
1900
Energieausweis
A
Dachtyp
plat dak
Schlafzimmer
4
Badezimmer
2
Flächen und Volumen
Wohnbereich
291 m2
Andere Innenräume
0 m2
Außenbereich am Gebäude
19 m2
Volumen in Kubikmetern
1183 m3
Grundstücksgröße
115 m2
Einrichtungen
Mechanische ventilatie
Domotica
Zonnepanelen
Aan rustige weg
In woonwijk
Baerz & Co Property Brochure

Broschüre

Videos

Virtuelle Touren

VIRTUAL TOUR
Virtual Tour Van Breestraat 45

Heeren Makelaars

Stadionweg 75
1077 SE Amsterdam

info@heerenmakelaars.nl
+31 204702255

www.heerenmakelaars.nl

Information / Besichtigungsanfrage

Eran Hausel profile image
Eran Hausel
Real estate agent