Baerz & Co is een landelijk samenwerkingsverband van zorgvuldig geselecteerde boutique luxury makelaars. Samen vormen wij één netwerk, met één gedeeld aanbod. De woningen die u op onze website ziet, zijn afkomstig van alle aangesloten kantoren binnen Baerz & Co. Daardoor is niet ieder object rechtstreeks door ons kantoor in verkoop, maar door een gespecialiseerde collega binnen ons netwerk. Heeft u een woning gevonden die u aanspreekt en wilt u meer informatie? Dan brengen wij u graag persoonlijk in contact met de betreffende verkoopmakelaar, zodat u direct en zorgvuldig wordt begeleid.

'S-HERTOGENBOSCH
Prins Bernhardstraat 5 - 5211 HE
Netherlands

Sander Bovenkerk profile image
Sander Bovenkerk
Real Estate Agent
€1,100,000 k.k.
Living Area
183m2
Plot Size
122m2
Bedrooms
5

Description

An exceptionally wide, and therefore bright, 1930s townhouse with a garden in the Museum Quarter.

This townhouse is located between the Bossche Markt and the polder, and also across from the Willem Twee Showroom and the Design Museum. A perfect spot for someone who wants to enjoy both culture and nature.

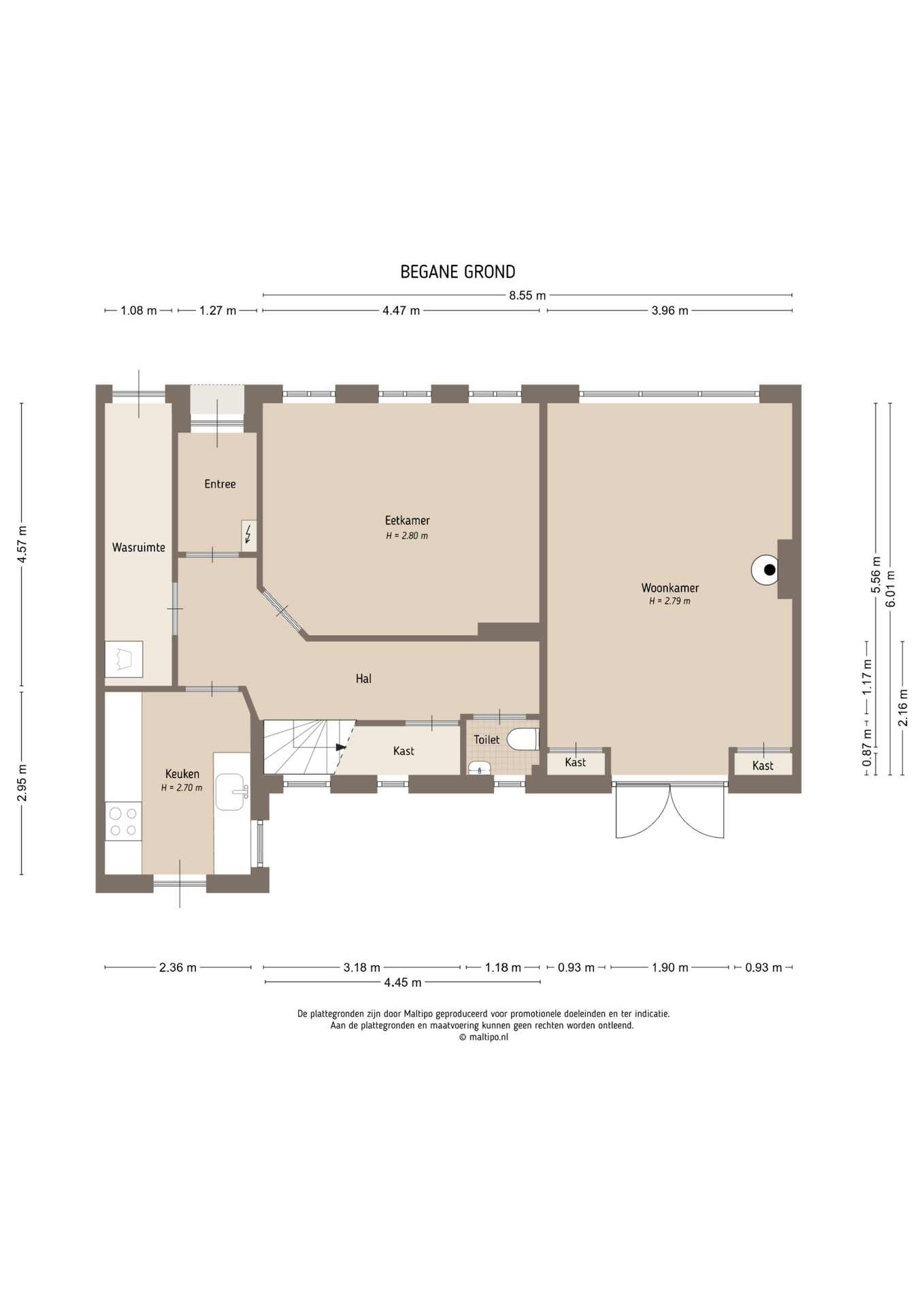
The house features a separate kitchen, dining room, living room, and bicycle storage on the ground floor, all adjacent to each other. The approximately 11-meter width of the front facade accommodates all of this.

The first floor also houses three bedrooms adjacent to each other along the front facade, along with a bathroom with a roof terrace and a separate toilet at the rear.

The second floor offers two more large bedrooms and a second bathroom.
There is a back garden with afternoon and evening sun.

The house has an energy label B thanks to the central heating boiler from 2024, HR++ secondary glazing, and six solar panels from 2025.

A truly charming and sustainable city center home, suitable for a large family.

Features

Solar panels
Transfer of ownership
Asking Price
€ 1.100.000 k.k.
Status
beschikbaar
Acceptance
in overleg
Construction
Kind of house
Herenhuis
Building type
tussenwoning
Construction period
1937
Energy rating
B
Roof type
dwarskap
Bedrooms
5
Bathrooms
2
Surface Areas And Volume
Living Area
183 m2
Other indoor space
1 m2
Exterior space attached to the buildinge
6 m2
Volume in cubic meters
683 m3
Plot Size
122 m2
Facilities
Mechanische ventilatie
Dakraam
Zonnepanelen
In centrum
Baerz & Co Property Brochure

Brochure

Floor Plans

Heeren Makelaars

Stadionweg 75
1077 SE Amsterdam

info@heerenmakelaars.nl
+31 204702255

www.heerenmakelaars.nl

Information / Viewing request

Sander Bovenkerk profile image
Sander Bovenkerk
Real Estate Agent

Buying a Luxury Property in 's-Hertogenbosch

's-Hertogenbosch offers a refined blend of history, culture, and contemporary living, attracting a globally minded community who value privacy, aesthetics, and seamless services within a vibrant, authentic Dutch environment.