Ons kantoor is lid van Baerz & Co Luxury Homes; een internationaal platform dat exclusieve woningmakelaars met elkaar verbindt. Neem contact op met ons secretariaat voor meer informatie over het landelijke aanbod, waarvan u hieronder een selectie kunt bekijken.

AMSTERDAM
Schubertstraat 40 H - 1077 GV
Netherlands

Sander Bovenkerk profile image
Sander Bovenkerk
Real estate agent
€2,500,000 k.k.
Living Area
277m2
Plot Size
N/A
Bedrooms
5

Description

This spacious, beautifully-renovated, luxury ground-floor apartment (approx. 277 m²) is located in the very popular Amsterdam Zuid. The property has five large bedrooms, three stylish bathrooms and a sunny south-west-facing garden. The location is ideal: parks, arterial roads, shops and international schools are all close by, making it the perfect place for comfortable and stylish city living.

Location:
One of the most prestigious streets in Amsterdam Zuid, the Schuberstraat is known for beautiful features by Hendrik Petrus Berlage. The lively Beethovenstraat and Stadionweg - both of which have a diverse range of supermarkets and (specialist) shops - are just a stone's throw away. The area has plenty of hospitality options to choose from too. Welcoming bars and cafés with open-air terraces, lunchrooms and excellent restaurants all enrich the streetscape.

The property also benefits from its proximity to excellent national and international primary and secondary schools; this makes the area very popular with families. Sports and recreation facilities are close at hand as well. Parks where you can relax, walk and play sport in against a green backdrop include the Vondelpark, Beatrixpark and Amstelpark.

Accessibility is excellent: Station Zuid/WTC is within walking distance and has metro, train and bus connections in every direction. There’s also a direct connection to Schiphol and Amsterdam Centraal Station is just 10 minutes away. Centraal Station gives access to an extensive public transport network and the ferry across the IJ. Parking has been arranged too and you can currently also obtain two parking permits without having to put your name on a waiting list.

Layout:
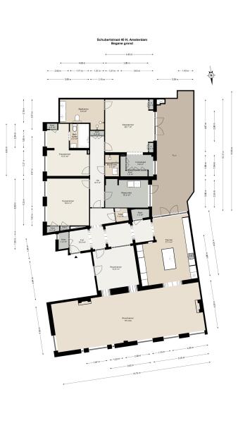
Ground floor:
The apartment is entered via an ample hall that creates an immediate sense of space and elegance. The hall also gives access to a separate guest toilet and all the property’s other rooms. A large living room with a semi-open kitchen can be found on the right. The bedrooms and bathrooms are on the left.

The apartment has three spacious bedrooms, each of which has big windows that let plenty of natural light in. The master bedroom has a sizeable walk-in wardrobe and a large en-suite bathroom with a double shower and washbasin. The second bedroom has its own en-suite bathroom too, this time with a bath, toilet and washbasin. The third, centrally-located bathroom has a walk-in shower and a washbasin. On this side of the apartment, there is also a spacious laundry room that would work equally well as an extra bedroom.

With two cosy fireplaces, ornate ceiling mouldings and chic panelling, the generous-sized living room exudes luxury and atmosphere. The warm, dark-brown wooden floor, laid in a classic Hungarian point, adds character. The extra room next to the living room would make an excellent study or second living room.

The kitchen follows on from the living room. The luxury kitchen-living area is a real eye-catcher and the beating heart of the property. No detail was overlooked during the renovation: a beautiful marble worktop, custom-made units, large floor tiles and modern LED lighting with dimmers make the kitchen both practical and stylish. The kitchen comes complete with high-end built-in appliances, including a combi-oven, steam oven, dishwasher, fridge-freezer, an induction hob with an integrated extractor, a brass Quooker and a wine climate cabinet. French doors open out onto a sunny, south-west-facing garden.

Lower ground floor:
The apartment has a very good-sized lower ground floor. It consists of two rooms, one of which is currently a bedroom. With a headroom of 2.23 metres, the rooms provide good extra living and storage space.

Details:
- Living space of approx. 277 m² (NEN-2580 report available);
- Lower ground floor of approx. 38 m²;
- A sunny, south-west-facing garden of approx. 36 m²;
- Underfloor heating in the hall, bathroom and kitchen;
- Financially healthy owners’ association (VvE) consisting of four apartment rights; monthly service charges: € 577,- per month;
- Long-term maintenance plan in place;
- Built on leasehold land, bought out up to and including 30 November 2053;
- Parking arranged via a permit system (source: Parking, City of Amsterdam);
- Transfer date in consultation.
This information has been compiled with the utmost care. However, we accept no liability for any incompleteness, inaccuracies, or other errors, nor for the consequences thereof. All stated measurements and surface areas are indicative. The buyer has a duty to conduct their own investigation into all matters of importance to them. Regarding this property, the real estate agent acts as the seller's advisor. We recommend that you engage the services of a qualified (NVM) real estate agent to guide you through the purchase process. If you have specific requirements regarding the property, we advise you to communicate these promptly to your purchasing agent and conduct (or have conducted) independent investigations. If you choose not to appoint a qualified representative, you declare by law that you are sufficiently knowledgeable to assess all matters of importance. NVM conditions apply.

Features

Transfer of ownership
Asking Price
€ 2.500.000 k.k.
Status
verkocht onder voorbehoud
Acceptance
in overleg
Construction
Kind of house
Dubbel benedenhuis
Building type
appartement
Construction period
1931
Energy rating
E
Roof type
zadeldak
Bedrooms
5
Bathrooms
3
Surface Areas And Volume
Living Area
277 m2
Other indoor space
0 m2
Volume in cubic meters
1087 m3
Facilities
Tv kabel
Natuurlijke ventilatie
In woonwijk
Baerz & Co Property Brochure

Brochure

Videos

Floor Plans

Heeren Makelaars

Stadionweg 75
1077 SE Amsterdam

info@heerenmakelaars.nl
+31 204702255

www.heerenmakelaars.nl

Information / Viewing request

Sander Bovenkerk profile image
Sander Bovenkerk
Real estate agent

Buying a Luxury Property in Amsterdam

Amsterdam offers a cosmopolitan lifestyle defined by heritage, connectivity, and discreet luxury. Residents benefit from a robust international community, curated services, and vibrant culture. The city’s enduring appeal lies in its blend of history, sophistication, and progressive spirit.