Baerz & Co is een landelijk samenwerkingsverband van zorgvuldig geselecteerde boutique luxury makelaars. Samen vormen wij één netwerk, met één gedeeld aanbod. De woningen die u op onze website ziet, zijn afkomstig van alle aangesloten kantoren binnen Baerz & Co. Daardoor is niet ieder object rechtstreeks door ons kantoor in verkoop, maar door een gespecialiseerde collega binnen ons netwerk. Heeft u een woning gevonden die u aanspreekt en wilt u meer informatie? Dan brengen wij u graag persoonlijk in contact met de betreffende verkoopmakelaar, zodat u direct en zorgvuldig wordt begeleid.

AMSTERDAM
Stadionkade 18 2 - 1077 VK
Netherlands

Sander Bovenkerk profile image
Sander Bovenkerk
Real Estate Agent
€995,000 k.k.
Living Area
120m2
Plot Size
N/A
Bedrooms
2

Description

Stadionkade 18-2, 1077 VK Amsterdam

Set on a beautiful waterfront location in the popular Stadion and Beethoven neighbourhoods, we are pleased to offer this well-laid-out corner apartment of approximately 120 m². The property features a bright living and dining room, two bedrooms, a balcony, elevator access and a spacious external storage unit. A comfortable apartment, with all amenities, greenery and excellent public transport connections close at hand.

Layout

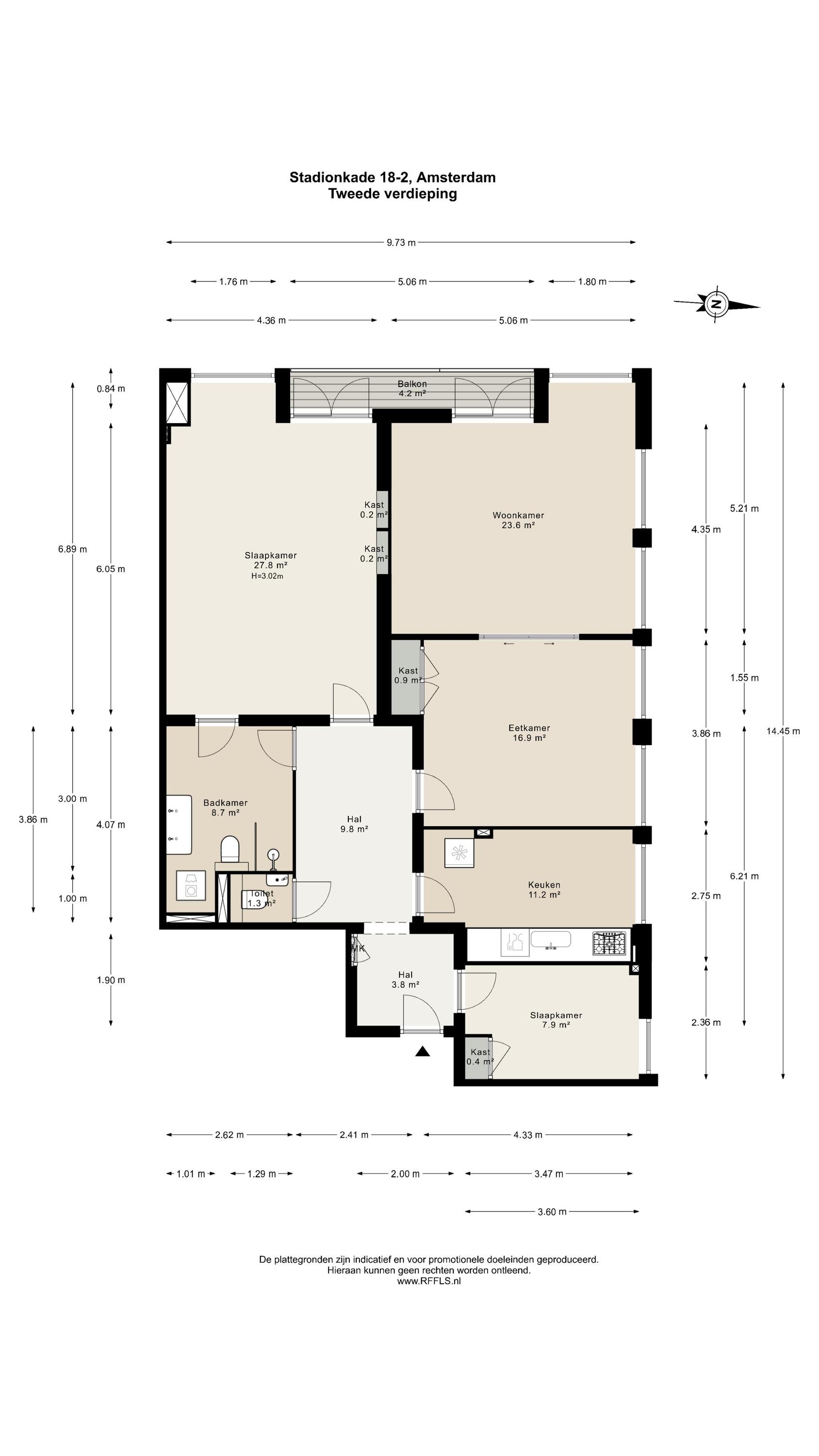
The communal entrance is neat and well maintained. You reach the second floor via the staircase or the elevator, where the private entrance to the apartment is located.

Upon entering, you arrive in a central hallway with space for a wardrobe. From here, you have access to all rooms, making the apartment feel pleasant and well-organised.

Second floor

The living room is situated at the rear of the apartment and offers a comfortable and bright living space, enhanced by large windows and an open, light-filled atmosphere. From here, access is provided to the balcony, where one can enjoy the greenery and the peaceful surroundings. The generous amount of natural light and the unobstructed views lend this room a calm and pleasant character.

Adjacent to the living room is the dining room, a charming space offering ample room for a large dining table. Thanks to its connection to the living room, the layout forms one cohesive living area, while still allowing both rooms to be used separately if desired.

Located next to the dining room is the kitchen, finished in a distinctive design with abundant cupboard space and a practical layout. The wooden worktop, stone sink and original tiled wall contribute to the kitchen’s warm appearance. The kitchen is equipped with a 5-burner gas hob, oven and dishwasher.

At the front of the apartment is a spacious bedroom of excellent proportions, ideally suited as the master bedroom. Its generous dimensions provide sufficient space for a large bed as well as a full wall of wardrobes. In addition, a second room is located at the front, which is perfectly suited as a home office, guest room, hobby room or children’s bedroom.

The bathroom is centrally positioned within the apartment and is neatly finished and practically arranged, featuring a walk-in shower, double washbasin and toilet. Furthermore, there is space for a washing machine and dryer setup, ensuring maximum convenience.

On the fourth floor, the apartment includes a spacious external storage unit of approximately 10 m², providing ample additional storage space.

Location & accessibility

The apartment is situated on Stadionkade, in a quiet and green part of the highly regarded Stadion and Beethoven neighbourhoods in Amsterdam Zuid. This location offers a pleasant living environment that combines tranquillity, greenery and the vibrancy of city life. Owing to its corner position, the apartment enjoys views over both the water and Minervalaan, creating a spacious feel and an abundance of natural light. Directly in front of the building lies a sheltered green strip along the waterfront, providing a peaceful setting to enjoy the passing boats.

The immediate surroundings offer a wide range of shops, catering to both daily necessities and luxury delicacies, as well as a variety of specialist stores. Beethovenstraat, Olympiaplein and Stadionweg feature supermarkets, artisan bakeries, delicatessens and various cafés and restaurants. The Gelderlandplein shopping centre is also located nearby. For leisure and sports, Beatrixpark, the Olympic Stadium and the Amsterdamse Bos are all easily accessible by bicycle.

Accessibility is excellent. Amsterdam Zuid/WTC Station is within close proximity and offers fast connections to Schiphol Airport, The Hague and Utrecht, among others. Tram line 5 and bus line 24 are also located nearby. By car, the A10 Ring Road can be reached within minutes via exits S108 and S109, while Schiphol Airport is approximately a 15-minute drive away. Parking is available via the City of Amsterdam’s permit system.

Key features
- Apartment right of approx. 120 m² (measured in accordance with NEN 2580);
- Spacious internal storage unit of approx. 10 m² located on the fourth floor;
- Equipped with an elevator;
- Active and financially sound Homeowners’ Association (VvE), professionally managed by Aycon Vastgoedbeheer;
- Monthly VvE contribution: €314.05 excluding advance heating costs;
- District heating with monthly advance heating costs of €153.93;
- Current leasehold period paid off until 30 June 2055 (AB 1994);
- From 01-07-2055 an annual leasehold ground rent will apply under a perpetual leasehold system, approx. €3,831.52 per year (price level 2026, subject to annual indexation);
- Multi-year maintenance plan (MJOP) available;
- Parking via permit system;
- Delivery in consultation.

This information has been compiled with the utmost care. However, no liability is accepted for any incompleteness, inaccuracy, or otherwise, nor for any consequences thereof. All stated dimensions and surfaces are indicative. Buyers are responsible for conducting their own due diligence regarding all matters of importance. The real estate agent acts as the seller's advisor for this property. We recommend engaging a professional (NVM) real estate agent to guide you through the purchasing process. If you have specific wishes regarding the property, we advise you to communicate these in a timely manner to your purchasing agent and to conduct independent research. If you choose not to engage an expert representative, you are deemed sufficiently knowledgeable by law to oversee all matters of importance. NVM conditions apply.

Features

Transfer of ownership
Asking Price
€ 995.000 k.k.
Status
verkocht onder voorbehoud
Acceptance
in overleg
Construction
Kind of house
Tussenverdieping
Building type
appartement
Construction period
1932
Energy rating
C
Roof type
zadeldak
Bedrooms
2
Bathrooms
1
Surface Areas And Volume
Living Area
120 m2
Other indoor space
0 m2
Exterior space attached to the buildinge
4 m2
External storage space
10 m2
Volume in cubic meters
443 m3
Facilities
Buitenzonwering
Lift
Natuurlijke ventilatie
Aan rustige weg
In woonwijk
Vrij uitzicht
Aan vaarwater
Baerz & Co Property Brochure

Brochure

Videos

Floor Plans

Heeren Makelaars

Stadionweg 75
1077 SE Amsterdam

info@heerenmakelaars.nl
+31 204702255

www.heerenmakelaars.nl

Information / Viewing request

Sander Bovenkerk profile image
Sander Bovenkerk
Real Estate Agent

Buying a Luxury Property in Amsterdam

Amsterdam offers a cosmopolitan lifestyle defined by heritage, connectivity, and discreet luxury. Residents benefit from a robust international community, curated services, and vibrant culture. The city’s enduring appeal lies in its blend of history, sophistication, and progressive spirit.