Baerz & Co is een landelijk samenwerkingsverband van zorgvuldig geselecteerde boutique luxury makelaars. Samen vormen wij één netwerk, met één gedeeld aanbod. De woningen die u op onze website ziet, zijn afkomstig van alle aangesloten kantoren binnen Baerz & Co. Daardoor is niet ieder object rechtstreeks door ons kantoor in verkoop, maar door een gespecialiseerde collega binnen ons netwerk. Heeft u een woning gevonden die u aanspreekt en wilt u meer informatie? Dan brengen wij u graag persoonlijk in contact met de betreffende verkoopmakelaar, zodat u direct en zorgvuldig wordt begeleid.

BERGSCHENHOEK
Wilhelminastraat 85 - 2661 ET
Netherlands

Sander Bovenkerk profile image
Sander Bovenkerk
Real Estate Agent
€895,000 k.k.
Living Area
143m2
Plot Size
N/A
Bedrooms
3

Description

Living with style, atmosphere and luxury in a penthouse with panoramic views

Stop searching! This stunning penthouse combines comfort, luxury, and breathtaking views over the skylines of Rotterdam, Delft, and towards The Hague. The property offers approximately 143 m² of living space, a sunny rooftop terrace of approximately 112 m², two indoor parking spaces, and is located in the heart of Bergschenhoek, with excellent connections to the A12, A13, and A16 highways.

Come and visit this gem in the center of Bergschenhoek today!

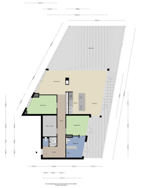
Layout

Secured main entrance with elevator access to the 4th floor. Internal access to the penthouse, spacious hallway with toilet, laundry room, access to all rooms, and a large built-in closet.

The entire floor features parquet laminate flooring with underfloor heating and air conditioning. The generous living area is divided into two seating areas and a dining area, with large windows providing abundant natural light. Through sliding doors, you access the exceptionally spacious rooftop terrace, south-facing and equal in size to the apartment itself.

The modern open-plan kitchen with cooking island is equipped with various high-end built-in appliances, including a Quooker, gas stove, extractor hood, combination microwave, convection oven with steam function, fridge-freezer combination, and dishwasher.

Bedroom 1 (approx. 3.45 x 3.95 m) with en-suite luxury bathroom
Bedroom 2 (approx. 3.24 x 5.57 m)
Separate walk-in closet (approx. 3.63 x 2.40 m)

The bathroom features a spacious walk-in shower, double washbasin with vanity unit, and a second toilet.

Special features
- Built in 2016, living area approx. 143 m²
- Two parking spaces and a separate storage unit in the basement
- Situated on freehold land, volume approx. 471 m³
- Heating and hot water via central heating boiler, large water tank, and underfloor heating
- Panoramic views towards the Rottemeren lakes, Delft, Zoetermeer, Berkel en Rodenrijs, and the Rotterdam skyline
- Electric sun screens at the windows facing the terrace and the square, individually controlled per room
- Cozy gas fireplace
- Active Homeowners’ Association (HOA) contribution: €355.28 per month for the apartment and €73.30 per month for the two parking spaces
- Transfer date in consultation, in accordance with the list of movable property

We warmly invite you to view this beautiful apartment with your own eyes.

All information provided should be regarded as an invitation to make an offer or enter into negotiations. The texts and impressions are intended to give a proper representation of the property. The utmost care has been taken in compiling this information. Nevertheless, all information is explicitly subject to change. No rights can be derived from this property information.

Purchase agreement only legally valid after signing

A verbal agreement between a private seller and a private buyer is not legally valid. In other words, there is no sale. A legally binding purchase only exists once both the private seller and the private buyer have signed the purchase agreement. This follows from Article 7:2 of the Dutch Civil Code. Confirmation of a verbal agreement by email or a forwarded draft of the purchase agreement is not considered a “signed purchase agreement.”

Explanation clause Measurement Instruction

The property has been measured in accordance with the industry-wide Measurement Instruction (BBMI). This instruction aims to apply a more uniform method of measuring to provide an indication of the usable floor area. The Measurement Instruction does not completely exclude differences in measurement outcomes due to interpretation differences, rounding, or practical limitations during measurement.

We act as the seller’s real estate agent. We advise you to bring your own agent to represent your interests in the purchase of your future home.

Features

Transfer of ownership
Asking Price
€ 895.000 k.k.
Status
beschikbaar
Acceptance
in overleg
Construction
Kind of house
Penthouse
Building type
appartement
Construction period
2016
Energy rating
A
Roof type
plat dak
Bedrooms
3
Bathrooms
1
Surface Areas And Volume
Living Area
143 m2
Other indoor space
0 m2
Exterior space attached to the buildinge
114 m2
External storage space
16 m2
Volume in cubic meters
471 m3
Facilities
Mechanische ventilatie
Tv kabel
Buitenzonwering
Lift
Schuifpui
Glasvezel kabel
In woonwijk
Vrij uitzicht
Baerz & Co Property Brochure

Brochure

Videos

Floor Plans

Heeren Makelaars

Stadionweg 75
1077 SE Amsterdam

info@heerenmakelaars.nl
+31 204702255

www.heerenmakelaars.nl

Information / Viewing request

Sander Bovenkerk profile image
Sander Bovenkerk
Real Estate Agent

Buying a Luxury Property in Bergschenhoek

Bergschenhoek offers a refined community with tailored services, verdant landscapes, and internationally minded sensibilities, presenting an ideal setting for those pursuing sophisticated living and enduring value.