Ons kantoor is lid van Baerz & Co Luxury Homes; een internationaal platform dat exclusieve woningmakelaars met elkaar verbindt. Neem contact op met ons secretariaat voor meer informatie over het landelijke aanbod, waarvan u hieronder een selectie kunt bekijken.

JOPPE
Deventerdijk 2 - 7215 SG
Netherlands

Sander Bovenkerk profile image
Sander Bovenkerk
Real Estate Agent
€3,200,000 v.o.n.
Living Area
480m2
Plot Size
97915m2
Bedrooms
4

Description

Landgoed Het Zwaneveld - A modern fairy tale in the peace and nature between Deventer and Zutphen

There once was ... a beautiful estate in Joppe. This place, Landgoed Het Zwaneveld, is an NSW estate, with magnificent views of the Gorsselse Heide and a modern country house full of luxury and the latest technical gadgets in sustainable living. But the best spot? On the veranda, from the natural swimming pond or from one of the beautiful terraces? No, the title of Most Beautiful Place goes to the bench in the middle of the estate, where you can enjoy all the natural beauty, just in your own garden. Where it is completely quiet at night and the deer come to graze in small clusters, the hares hopping by and the owl sounding its distinctive "eagle owl.

The Zwaneveld is a stunning blend of modern design and timeless charm that blends effortlessly into its surroundings. The substantial mansion has a generous living area of nearly 500m² and covers 10ha. The mansion dates back to 2012 and at the time entered the books as an NSW listed estate.

Family House
Using natural materials such as stone, wood and wicker, this sleek stature easily blends with its natural surroundings. Inside, a perfect balance of design, materials and comfort.
The fixed cabinets, as well as the fireplace areas and kitchen, are artisanal craftsmanship and have been combined by the interior designer to create an impressive whole.
Through the neutral palette and use of materials, a consistent ambiance is created and a lovely warm family home is created.

Location - Joppe and surroundings
The location is roughly between Zutphen and Deventer; both cozy and bustling Hanseatic cities are fifteen minutes away. The Deventerdijk belongs to the charming village of Joppe, which has now been incorporated by Gorssel. Here you have everything at hand; from a renowned elementary school, sports clubs, supermarkets and the cozy Main Street with restaurants, specialty stores such as the baker, butcher, greengrocer and the cheese store with beautiful wine collection. One and all indulgence here, also for the eye, as Museum MORE is located in the former town hall.
All this is three quarters of an hour from the Randstad, and that is also one of the aspects that makes this area so attractive: living in the greenery and tranquility, but still central.

Ground Floor
Entrance at the front of the house, in the central hall. Immediately on the right is the staircase to the upper floor. Right access to the study or extra bedroom, with magnificent bathroom, complete with walk-in shower, WC, bidet and sink. Straight through the lock to the kitchen diner, with WC with separate sink and large mirrors. To the left of the lock is a magnificent built-in cupboard with paneled doors. The woodwork is painted black, giving the house a classic-modern character. Left access to the truly fantastic living room; with on the back wall a stunning custom cabinetry with deep floral windows and a beautiful fireplace. On the garden side a glass wall with French doors to the sun terrace.

The eat-in kitchen is a great place; not only for cooking enthusiasts, but also to sit and peruse the newspaper, do homework or end the day with a drink. The fireplace gives extra atmosphere to the beautifully executed kitchen, which with the contrast of light and dark wood, combined with the fresh white stucco, forms a wonderful "clean" whole.
Of course, this kitchen is equipped with every conceivable convenience; a natural stone worktop, six-burner gas stove with plancha (Wolf), a sink with Quooker and sink faucet, refrigerator, convection oven and microwave, a double wine refrigerators (all Gaggenau).

Upper floor
The landing is in mezzanine form. There are three generous bedrooms, two bathrooms and lots of built-in closets. Obviously, this is wonderful to have lots of storage space, and because they are built-in, there are also no loose, distracting elements to disturb the balance of the interior.

The master bedroom has the rising sun and offers beautiful views of the gardens and the fantastic swimming pond on the side of the house. This bedroom is divided into two sections; the sleeping area and the dressing room with a sitting area, several closets and plenty of light through the various windows.

From the sleeping area, as well as from the mezzanine, access to the bathroom. As if you were stepping into your own spa, that is how this beautiful bathroom feels. A wonderful freestanding bath, a spacious walk-in shower, WC, a beautiful double sink with storage space and the dormer window, which provides lots of light.

The two children's bedrooms are on the other side of the house and have their own bathroom, with shower, WC and sink.

Basement
The entire house has a basement. This must be the dream of all growing children; a basement to exercise, chill and work. In the basement you will find the wine cellar, the multimedia room (hang a large screen and you feel like in the cinema, in your own home), the gym and a study.

Outdoor space
The surrounding gardens were planted under architecture, and are completely in line with the house: simple lines, not too much fuss, but everything is just right. Borders with flowers and wild grasses, tight hedges and beautiful terraces give a nice balance between use and beauty.

Is there anything more delightful than splashing around undisturbed in your own pool? There is a superlative for that too: the swimming pond. This beautiful, elongated swimming pond is a natural and healthy pool where the water is filtered by aquatic plants that are in a separate tank. The view of the estate obviously contributes nicely to the overall feeling of well-being.

Next to the pool you will find the wellness cabin. This is made of pine wood, making it incredibly cozy and inviting looking. The floor is laid with dark natural stone tiles. The wood-burning stove also makes this a popular spot in the fall. In the wellness cabin you will find a sauna and a bathroom with WC, sink and shower.

There is also path winding between wildflowers to a beautiful, Victorian greenhouse in the front garden. Excellent for growing the tomatoes, peppers and pre-germinating the cucumbers and pumpkins, but also a fine setting for an elegant afternoon high tea.

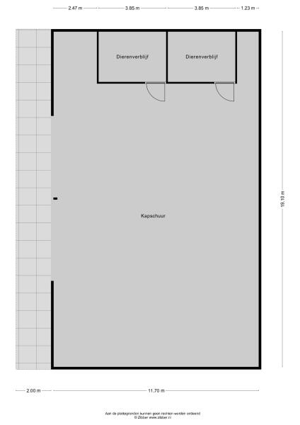
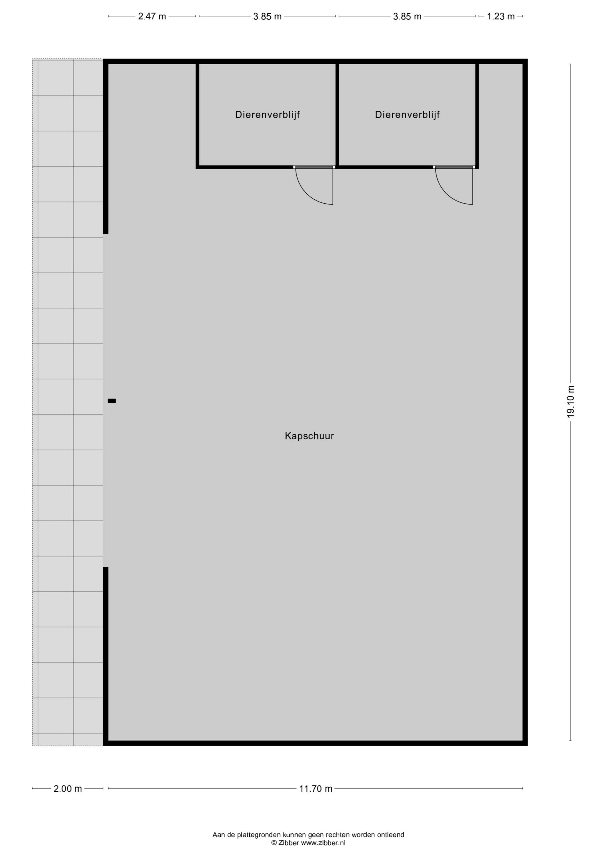
The large woodshed serves as a carport for several cars and also provides space for chores, dry storage for bicycles, parking the lawn mower, etc., etc., etc. Despite the robotic mower that takes care of a neat little lawn, an estate should at least have toys in the form of a cute little tractor.

Sustainability
Built with high-quality materials, the house has excellent insulation. The house is heated by an Alpha Innotec brine/water heat pump and there are no less than 88 solar panels on the roof of the barn. As a result, you will end up with zero on the counter each month.

NSW estate
The house and land are ranked under the 1928 Natural Beauty Act, That means it meets a number of requirements, such as that:
- it is at least 5 hectares in size;
- it consists of at least 50% woodland or natural areas.
In the middle of the Gorssel heathland; all around Het Zwaneveld is one and all nature.
But, there is more, for why would one want to own an NSW estate now? In a nutshell, the answer is that there are great advantages for the owner: namely, he or she enjoys tax benefits from ownership in terms of income tax, corporate income tax, transfer tax, gift and inheritance tax and property tax.

The Zwaneveld Estate is not currently open to the public, as there is already a great deal to walk, run and bike around the estate. However, should you still choose to open the estate to the public for public benefit, these benefits will apply 100%, rather than partially.

In short, are you looking for an estate of your own, with a magnificent mansion? This fairy tale is a wonderful outdoor opportunity; an NSW estate with all the space for a long and happy life. Got curious? We are happy to show you this gem.

General:
- Year built : 2012 and restyled in 2014;
- Location : Near Gorssel, between Deventer and Zutphen;
- Insulation : Fully insulated;
- Heating : Through Alpha Innotech ground source heat pump;
- Outdoor pool : A 'Venhuis' natural pool of almost 90 m², excluding overflow;
- Outbuilding : Detached barn/car shed over 220 m²;
- Wellness: detached thatched wellness annex equipped with
sauna, bathroom with shower,
washbasin and toilet. and an outdoor shower for
for the natural pool;
- Other : Lockable dog run, classic greenhouse with herb garden.
- Sustainable : 88 solar panels and therefore no energy costs.
- Extra : This NSW estate offers many tax advantages.

Capacity : 1,736 m³
Living area : 480 m²
External storage room : 256 m²
Other indoor space : 32 m²
Building bounded outdoor space : 59 m²
Land area : 97.915 m²
Energy label : energy class A
Acceptance : in consultation

This house has an energy label.

Features

Swimming pool
Solar panels
Alarm system
Transfer of ownership
Asking Price
€ 3.200.000 v.o.n.
Status
beschikbaar
Acceptance
in overleg
Construction
Kind of house
Landgoed
Building type
vrijstaande woning
Construction period
2012
Energy rating
A++++
Roof type
zadeldak
Bedrooms
4
Bathrooms
3
Surface Areas And Volume
Living Area
480 m2
Other indoor space
32 m2
Exterior space attached to the buildinge
59 m2
External storage space
256 m2
Volume in cubic meters
1736 m3
Plot Size
97915 m2
Facilities
Mechanische ventilatie
Alarminstallatie
Tv kabel
Buitenzonwering
Zwembad
Rookkanaal
Glasvezel kabel
Zonnepanelen
Natuurlijke ventilatie
Aan bosrand
Aan rustige weg
Vrij uitzicht
Open ligging
Buiten bebouwde kom
In bosrijke omgeving
Landelijk gelegen
Baerz & Co Property Brochure

Brochure

Videos

Floor Plans

Heeren Makelaars

Stadionweg 75
1077 SE Amsterdam

info@heerenmakelaars.nl
+31 204702255

www.heerenmakelaars.nl

Information / Viewing request

Sander Bovenkerk profile image
Sander Bovenkerk
Real Estate Agent

Buying a Luxury Property in Joppe

Joppe is defined by its exclusive properties, understated community, and elegantly rural lifestyle. Residents value privacy, curated services, and connectivity—all contributing to its quiet international appeal among the world’s most discerning buyers.