Baerz & Co is een landelijk samenwerkingsverband van zorgvuldig geselecteerde boutique luxury makelaars. Samen vormen wij één netwerk, met één gedeeld aanbod. De woningen die u op onze website ziet, zijn afkomstig van alle aangesloten kantoren binnen Baerz & Co. Daardoor is niet ieder object rechtstreeks door ons kantoor in verkoop, maar door een gespecialiseerde collega binnen ons netwerk. Heeft u een woning gevonden die u aanspreekt en wilt u meer informatie? Dan brengen wij u graag persoonlijk in contact met de betreffende verkoopmakelaar, zodat u direct en zorgvuldig wordt begeleid.

LEIDEN
Hoge Rijndijk 320 - 2314 AN
Netherlands

Sander Bovenkerk profile image
Sander Bovenkerk
Real Estate Agent
€2,850,000 k.k.
Living Area
332m2
Plot Size
1686m2
Bedrooms
4

Description

Mansion “Huize Rijnlust” with gatehouse and boathouse 10 minutes from the city centre

In times gone by, the prosperous citizens of Leiden sought their peace and relaxation outside the city. Country estates were built along the rivers and waterways around Leiden where people could escape the busy city in the summer and enjoy the peace and healthy outdoor air. Over time, the city grew and the country estates were swallowed up bit by bit. Many country estates were lost, but a few gems were preserved that now form an island of peace and greenery in a dynamic city. One of these gems is located behind the modern gatehouse at Hoge Rijndijk 320.

After you have closed the electric gate of the gatehouse behind you, you immediately imagine yourself in a different environment and the peace comes over you. A central lawn with a centuries-old plane tree (1820) forms the heart of the courtyard. Special is the greenhouse with a mandarin tree next to this tree, where you can still sit on a sunny day in the middle of winter. Both to the left and right of the lawn is a gravel path, where you can drive directly to the house if you want. There are now a few corners and seats where you can enjoy the sun or shade at different times of the day. A little further on is a pond that is equipped with a water supply system with Rhine water, with the entrance to the house behind it, flanked on the left by a veranda and on the right by a sunny conservatory. Here too, you can enjoy this large garden all year round.

In the summer, it is pleasant to be right next to the Rhine. The rear of the house with 5 beautiful lime trees is located on the narrowest part of the Rhine waterway in Europe.
In the garden with terrace along the water, breakfast, lunch, drinks and dinner can be enjoyed against a background of passing boats. If someone you know passes by, you can moor up to get in. Of course, you could also take your own boat. The house has its own boathouse with a slipway, where you could also make a marina and with a short boat ride you are at De Kaag or in the middle of the Groene Hart, the centre of Leiden with its many romantic canals and terraces.

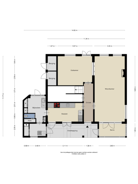
The main building from 1820 is characterised by the classic style elements from that period: a central entrance with two windows with shutters on either side and on the first floor the beginning of the roof with a central facade with three windows with shutters. The characteristics characteristic of this construction period are also present inside; high stately ceilings and windows on all sides provide beautiful light at any time of the day. On the ground floor there is an L-shaped living room en suite, fireplace with a conservatory on the garden side and a view of the Rhine on the water side. The central hall runs from front to back and has French doors to the garden with terrace on the water side. On the left side of the hall are the kitchen with utility room with a passage to the barn, the spacious basement and the formal dining room with again a beautiful view of the Rhine and the passing boats.

The landing staircase forms the heart of the house and the connection, with an access to a spacious toilet room with wall closet and fountain, to the sleeping floor. Here are three spacious bedrooms with the master bedroom on the water side and walk-in closet. The bedrooms are characterized by the high ceilings and the view of the garden and the water, with the master bedroom standing out because of its size. The bathroom is equipped with every luxury with a granite floor, underfloor heating and 2 washbasins built into natural stone. Not only hygiene, but also relaxation: in addition to a sunken duo bath, a shower room with rain shower and "Turkish bath", sauna, a wall bidet and a wall closet.

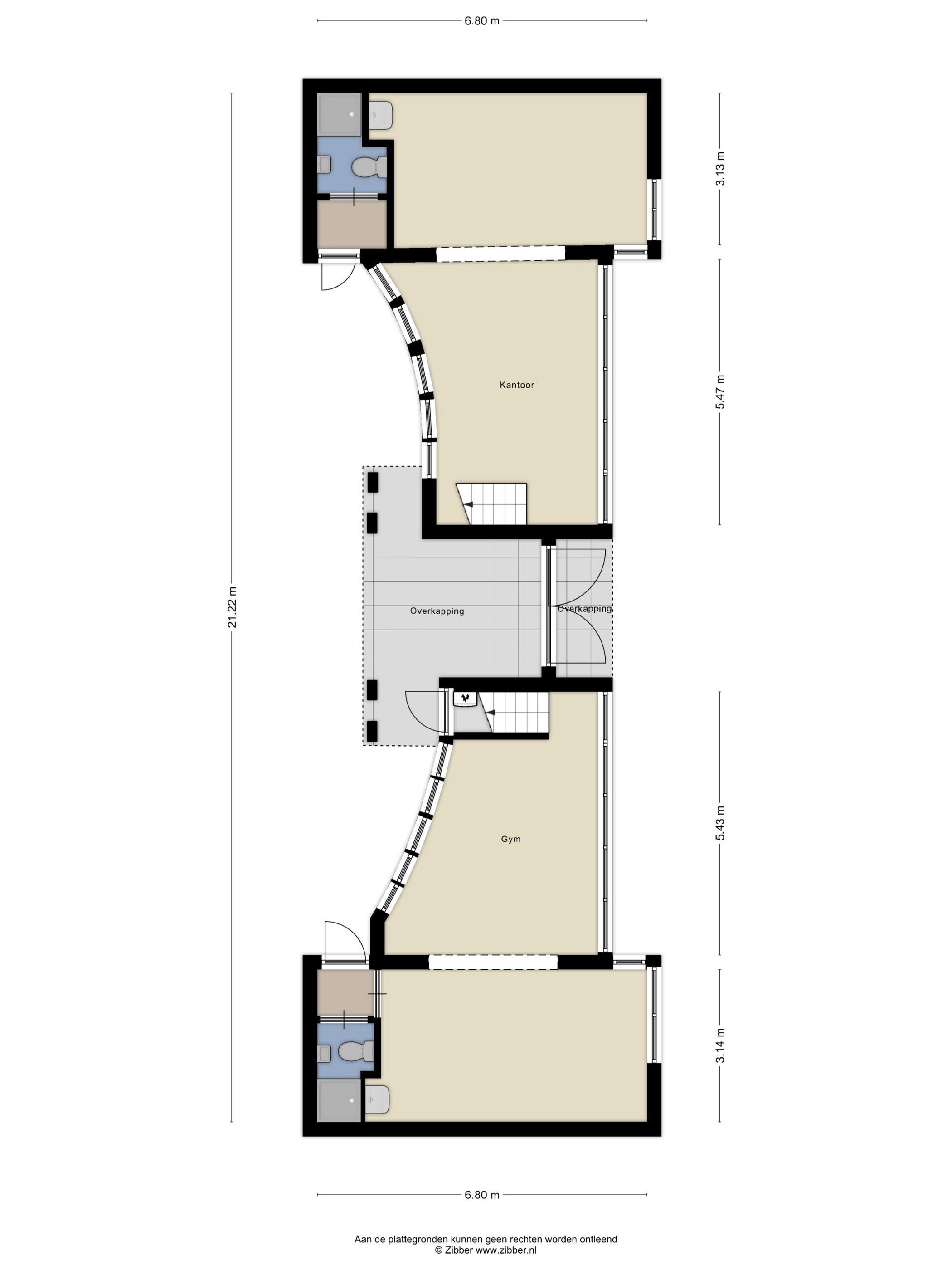
The gatehouse from 1995 is symmetrical in design with a central passage in the middle and on the ground floor an entrance on both the left and right sides. The left wing is used as an office, which also has a toilet, shower and pantry. The right wing is used as a fitness room and also has a toilet, shower and pantry. From both the left and right wings there is a staircase to the room above the gate, which is now furnished as a guest bedroom. The facade of the gatehouse consists largely of glass and has French doors to the garden in both wings, which ensures plenty of light and a connection to the inner garden.

Shops and facilities such as sports clubs and good schools are within walking or cycling distance. Leiden also has the first University that William of Orange donated in 1575 during the siege of Spain. In the adjacent Meerburg district, a completely new shopping area with a supermarket and various shops has opened. Ideal for daily shopping. The large, pleasant shopping centre "Het Winkelhof" is also within walking and cycling distance and there is free parking. The cycle bridge over the Rhine takes you straight to the Hoofdstraat in Leiderdorp. A nice street with restaurants such as De Hollandsche Tuyn and other catering establishments in this Hoofdstraat. In less than 10 minutes by bike you are in the centre of Leiden: history, culture, shops, many restaurants on the Leiden canals. In short, Leiden is bustling!

With access to the A4, the entire Randstad is within a short travel distance. A quick trip to The Hague? 15 minutes. Flight from Schiphol? 20 minutes. And via the new Rijksweg 11 West you reach the coast in 15 minutes.
SPECIAL FEATURES

- National monument
- Contains 34 solar panels (310 Wp per panel) from 2018
- Two central heating boilers (main house and gatehouse)
- Completely renovated and modernised in 1995, including the new construction of the gatehouse
- Modernised in parts in 2007
- Excellently maintained and equipped with modern facilities
- Insulating glazing
- Linked alarm system with the gatehouse with cameras
- Hospitals in and around Leiden

Features

Solar panels
Alarm system
Air conditioning
Transfer of ownership
Asking Price
€ 2.850.000 k.k.
Status
beschikbaar
Acceptance
in overleg
Construction
Kind of house
Herenhuis
Building type
vrijstaande woning
Construction period
1820
Roof type
samengesteld dak
Bedrooms
4
Bathrooms
3
Surface Areas And Volume
Living Area
332 m2
Other indoor space
23 m2
Exterior space attached to the buildinge
33 m2
External storage space
42 m2
Volume in cubic meters
1316 m3
Plot Size
1686 m2
Facilities
Mechanische ventilatie
Alarminstallatie
Tv kabel
Buitenzonwering
Airconditioning
Zonnecollectoren
Rookkanaal
Glasvezel kabel
Zonnepanelen
In woonwijk
Vrij uitzicht
Aan vaarwater
Baerz & Co Property Brochure

Brochure

Videos

Heeren Makelaars

Stadionweg 75
1077 SE Amsterdam

info@heerenmakelaars.nl
+31 204702255

www.heerenmakelaars.nl

Information / Viewing request

Sander Bovenkerk profile image
Sander Bovenkerk
Real Estate Agent

Buying a Luxury Property in Leiden

Leiden offers exceptional heritage, dynamic culture, and curated services, creating an appealing environment for international residents. With refined homes, vibrant academia, and discreet luxury, this canal city delivers a sophisticated lifestyle for a discerning, global community.