Townhouse with many original details and unobstructed views of the park and canal.
In the past, people looked out over the fields from the city walls from this location. When the city expanded in the 19th century, the old walls were demolished and parks were built on the old city walls. These parks have recently formed the Singelpark, a green buffer between the lively city centre and the surrounding residential areas. The Plantsoen is the crown jewel of this park, due to its size and location.
Right out front, the paths meander through the greenery to the cyclists' bridge and the aviary, which emphasises the 'park feeling' even more.
The homes on the Plantsoen each have their own appearance, with one common feature: lots of space, thanks to the high ceilings, high windows and lots of living space. The special thing about this property is that the many original details have been preserved, such as the richly ornamented stucco ceilings on almost all floors and the classic layout.
Lovers of living in the city centre in a quiet park-like environment with everything you are looking for within walking and cycling distance can indulge themselves here. Sports clubs, (secondary) schools, culture, catering, train stations: everything can be reached within a few minutes. The car can be parked in front of the door with a parking permit. And would you like a boat in front too? This may be possible, but we can discuss this during the viewing.
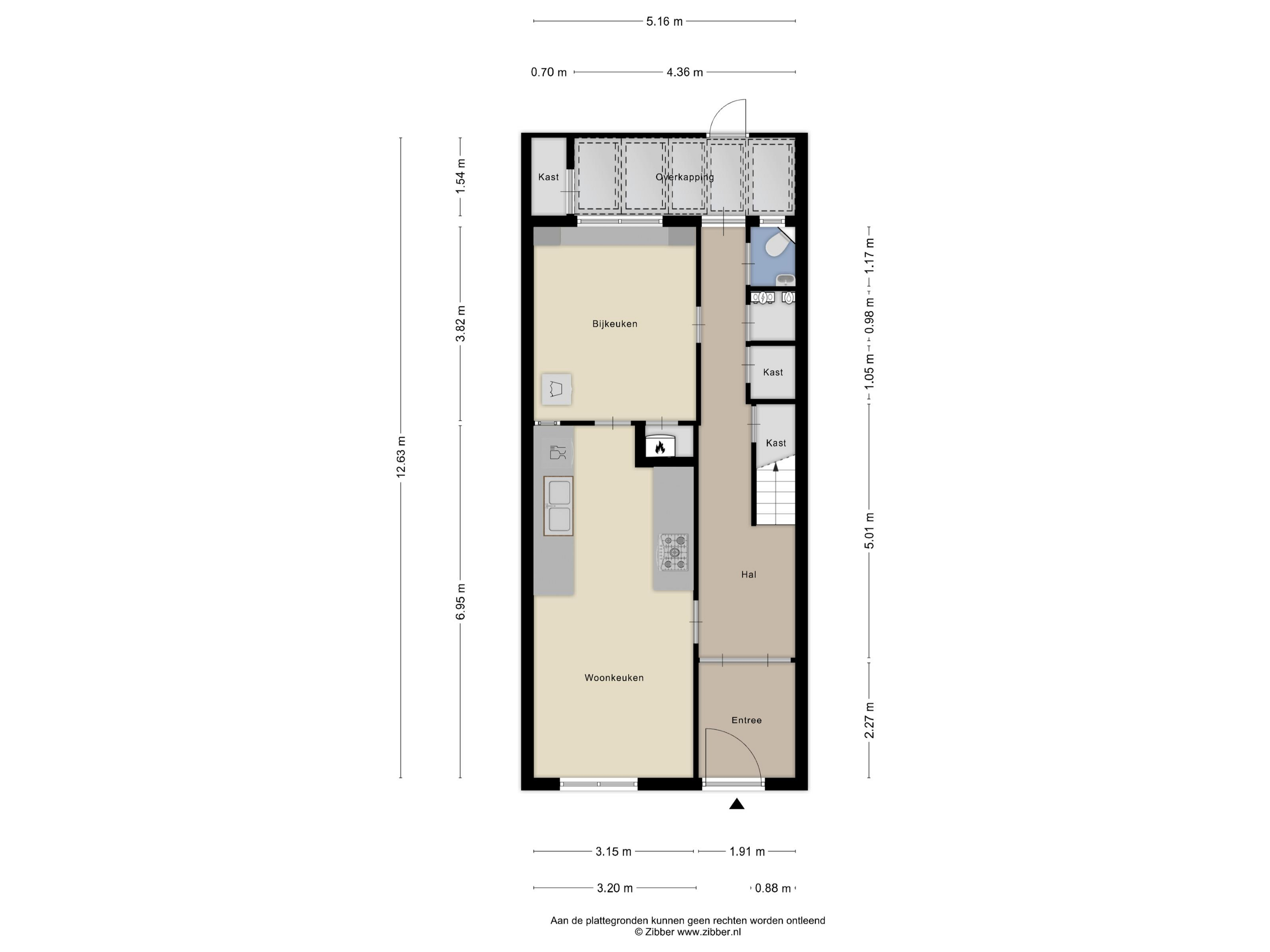
LAYOUT
Ground floor
Entrance with double doors to the hall. Central hall, continuing to the rear, with stairs to the 1st floor, toilet and pantries. Modern kitchen with classic look and view of the front garden. At the rear is the utility room with washing machine setup and a covered patio with rear exit.
1st floor
Landing with toilet, fixed cupboard and stairs to the 2nd floor. Sitting room over the entire width at the front with a view of the park and a dining room (former en suite) at the rear.
2nd floor
Landing with stairs to the 3rd floor. Bedroom at the front over the entire width with a view of the park and ensuite closet. At the rear are a second bedroom and bathroom with shower, bath and toilet.
3rd floor
Landing with a bedroom at the front over the entire width with a storage space / walk-in closet in the middle. At the rear are a second bedroom and the second bathroom with shower, bath and toilet.
PARTICULARS
- Municipal monument (exempt from having an energy label);
- Protected cityscape;
- Non-resident clause;
- Old age clause;
- Entire roof replaced in 2024.