Ons kantoor is lid van Baerz & Co Luxury Homes; een internationaal platform dat exclusieve woningmakelaars met elkaar verbindt. Neem contact op met ons secretariaat voor meer informatie over het landelijke aanbod, waarvan u hieronder een selectie kunt bekijken.

LOOSDRECHT
Nootweg 10 - 1231 CT
Netherlands

Sander Bovenkerk profile image
Sander Bovenkerk
Real Estate Agent
€879,000 k.k.
Living Area
171m2
Plot Size
334m2
Bedrooms
4

Description

Royale helft van dubbele villa op een riant perceel van ca. 334 m² met prachtig aangelegde tuin met diverse terrassen, oprit (afsluitbaar middels poort) voor parkeren meerdere auto's en een vrijstaande garage met carport.

De woning is gelegen in het dorpscentrum van Nieuw-Loosdrecht met op loopafstand het levendige winkelcentrum van Loosdrecht, met o.a. een Jumbo, Hema en een Kruidvat.
Loosdrecht kenmerkt zich door vele jachthavens en horecagelegenheden. In de zomer is het hier dan ook optimaal genieten van de diversiteit aan watersportactiviteiten.
Tevens zijn er andere faciliteiten zoals sportvelden/centra en diverse basisscholen in de buurt te vinden.
Voor meer stadse faciliteiten, zoals winkels, (internationale) scholen en een NS station, kunt u terecht in Hilversum dat zich op nog geen 10 autominuten van de woning bevindt. Ook grote steden als Amsterdam en Utrecht zijn binnen 30 minuten aan te rijden.

Indeling
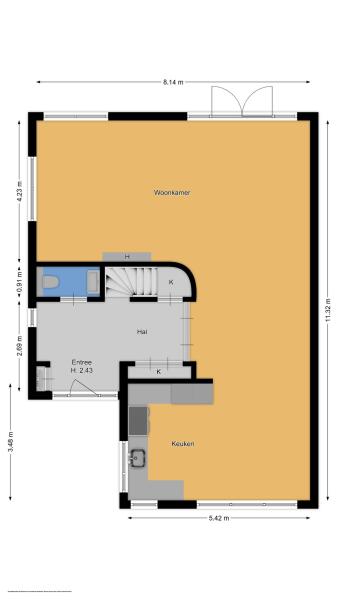
Begane grond:
Via de ruime entree/hal betreedt u de woning. Hier vindt u de meterkast, een royale garderobekast en een separaat toilet. Onder de trap naar de eerste verdieping bevindt zich extra kastruimte.

De royale U-vormige woon-/eetkamer biedt aan de voorzijde toegang tot de open keuken welke is uitgerust met diverse inbouwapparatuur zoals 4-pits inductiekookplaat met wokbrander (SMEG), stoomoven, oven, afzuigkap en koel-/vriescombinatie (GAGGENAU). De ruime woonkamer is voorzien van een prachtig visgraat parket en heeft openslaande deuren die leiden naar de achtertuin.

Eerste verdieping: via de overloop heeft u toegang tot drie slaapkamers. Er is tevens een aparte waskamer met aansluitingen voor wasmachine en droger. De masterbedroom beschikt over een en-suite badkamer met een wastafelmeubel, ligbad, douche en een tweede toilet. Tevens bevindt zich op deze verdieping een extra toilet en een tweede badkamer met douche en wastafel.

Tweede verdieping: middels een vaste trapopgang bereikt u de ruime zolderkamer (vierde slaapkamer) met dakraam. Daarnaast is er een separate bergruimte met de CV-ketel.

Tuin: de woning beschikt over een lange, bestrate oprit welke leidt naar de carport en garage, gelegen achter in de tuin. Er is voldoende ruimte om meerdere auto's op eigen terrein te parkeren en tevens afsluitbaar middels elektrische poort. Zowel de voor- als achtertuin zijn onderhoudsvriendelijk aangelegd met bestrating en borders vol beplanting.

Bijzonderheden:
- uitstekend onderhouden helft van dubbele villa;
- op loopafstand van het winkelcentrum van Nieuw-Loosdrecht;
- bouwjaar 1993;
- master bedroom v.v. airco;
- screens aan achterzijde en deels v.v. horren;
- riant perceel van ca. 334 m²;
- tuin gelegen op het zuiden;
- garage met elektrische deur en carport;
- energielabel B geldig t/m 2 oktober 2034;
- oplevering in overleg.

Features

Alarm system
Air conditioning
Transfer of ownership
Asking Price
€ 879.000 k.k.
Status
onder bod
Acceptance
in overleg
Construction
Kind of house
Eengezinswoning
Building type
twee onder een kapwoning
Construction period
1993
Energy rating
B
Roof type
zadeldak
Bedrooms
4
Bathrooms
2
Surface Areas And Volume
Living Area
171 m2
Other indoor space
0 m2
External storage space
21 m2
Volume in cubic meters
572 m3
Plot Size
334 m2
Facilities
Mechanische ventilatie
Alarminstallatie
Tv kabel
Buitenzonwering
Airconditioning
Rookkanaal
Dakraam
Natuurlijke ventilatie
Aan rustige weg
In woonwijk
Baerz & Co Property Brochure

Brochure

Videos

Floor Plans

Heeren Makelaars

Stadionweg 75
1077 SE Amsterdam

info@heerenmakelaars.nl
+31 204702255

www.heerenmakelaars.nl

Information / Viewing request

Sander Bovenkerk profile image
Sander Bovenkerk
Real Estate Agent

Buying a Luxury Property in Loosdrecht

Loosdrecht offers a rare blend of lakeside tranquility, privileged community, and refined amenities. The area appeals to those seeking international connections, discreet service, and a sophisticated, nature-inspired lifestyle.