Ons kantoor is lid van Baerz & Co Luxury Homes; een internationaal platform dat exclusieve woningmakelaars met elkaar verbindt. Neem contact op met ons secretariaat voor meer informatie over het landelijke aanbod, waarvan u hieronder een selectie kunt bekijken.

AMSTELVEEN
Olympiadelaan 16 - 1183 WN
Países Bajos

Sander Bovenkerk profile image
Sander Bovenkerk
Real estate agent
€3,000,000 k.k.
Área de estar
643m2
Tamaño del terreno
1069m2
Dormitorios
4

Descripción

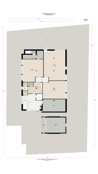
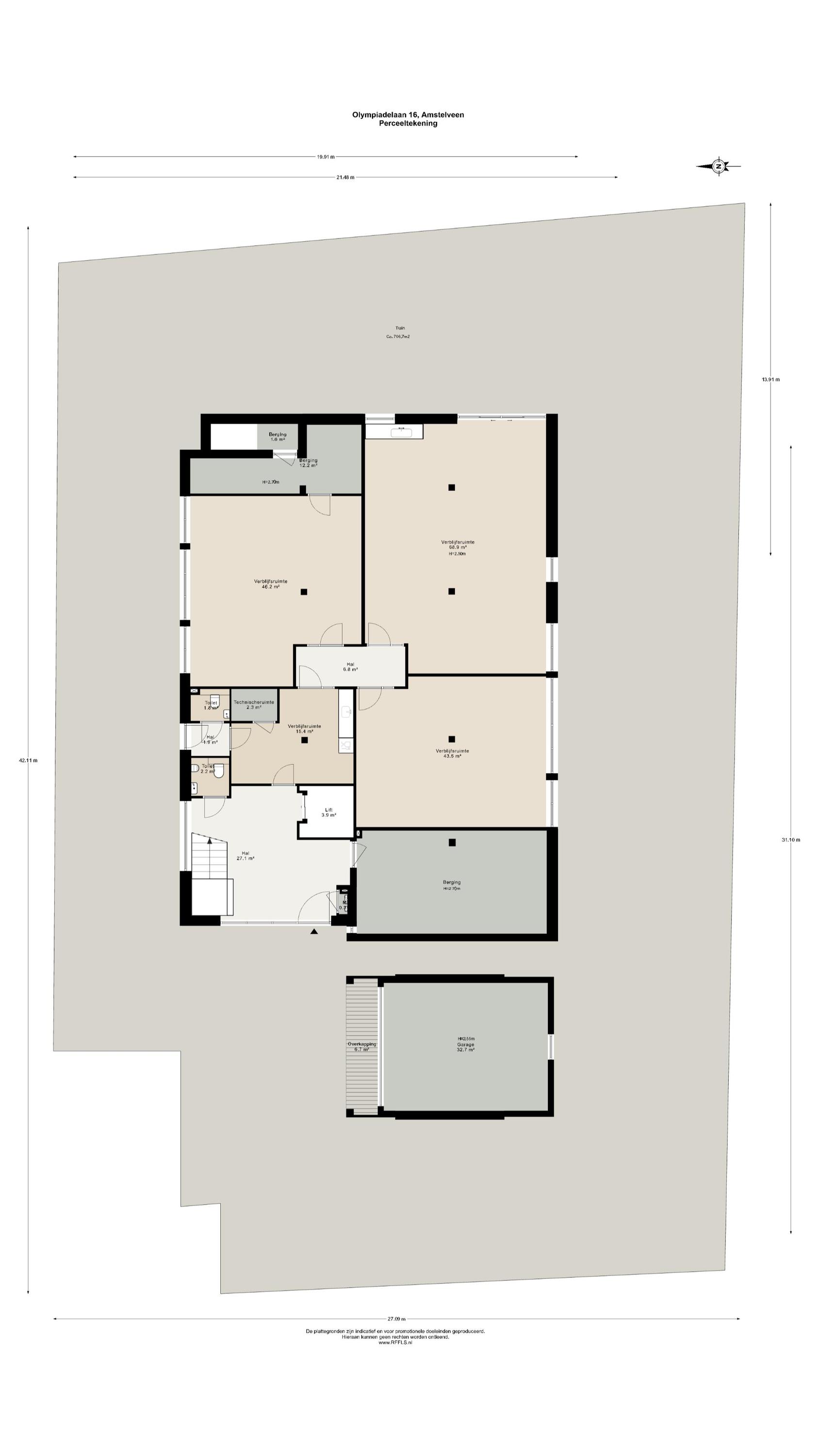
La villa independiente Amstelveen destaca con una presencia arquitectónica discreta en Olympiadelaan 16, lindando directamente con la reserva natural Middelpolder. Ofrece aproximadamente 643 m² de superficie habitable distribuidos en varios niveles, con una extraordinaria sensación de amplitud y privacidad. El jardín paisajístico, de unos 707 m², junto con diversas terrazas, invita tanto a la contemplación tranquila como a reuniones elegantes, permitiendo que las vistas panorámicas del entorno natural se integren a la vida cotidiana.

La planta baja establece un ritmo espacioso, con tres áreas de estar enmarcadas por ventanales generosos. La accesibilidad se potencia gracias a un ascensor privado, mientras que el diseño y los espacios de almacenamiento facilitan la convivencia y el trabajo con comodidad. En el primer piso, la sala principal se abre a un balcón con vistas a la campiña intacta, junto a una zona de cocina y un gran dormitorio con baño en suite. En la segunda planta, cuatro habitaciones adicionales ofrecen flexibilidad de uso; tres de ellas disponen de baño privado, garantizando privacidad y transiciones fluidas entre funciones o para huéspedes. Dos terrazas en la azotea permiten disfrutar de vistas privadas al paisaje circundante.

Las comodidades de la propiedad incluyen un garaje independiente de aproximadamente 33 m² para dos coches, clasificación energética A, paneles solares y avanzados sistemas de ventilación y alarma. La villa está ubicada en una tranquila zona codiciada de Kostverloren, a pocos pasos de senderos peatonales y ciclovías a lo largo del río Amstel, y cerca de exclusivas zonas comerciales en Amstelveen y Ámsterdam Zuid. Excelentes conexiones de tranvía, autobús y autopista garantizan rápido acceso al centro, aeropuerto y más allá.

Esta villa de lujo en venta en Amstelveen ofrece una combinación poco común de naturaleza, privacidad y espacios refinados, a solo minutos del centro de Ámsterdam.

Explora Amstelveen con Baerz, tu asesor y buscador personal de propiedades de confianza

Navegar el discreto y competitivo mercado de Amstelveen requiere conocimiento más allá de las ofertas públicas. Los asesores cualificados brindan acceso a ventas privadas, comprensión de la dinámica vecinal y experiencia en operaciones a medida. Su especialización garantiza diligencia exhaustiva, negociaciones optimizadas y transacciones internacionales fluidas, protegiendo los intereses de los clientes en cada fase.

Evite errores comunes

Los compradores internacionales a menudo desperdician tiempo valioso navegando por anuncios duplicados, desactualizados o engañosos, especialmente porque casi el 30% de las propiedades de lujo nunca aparecen en el mercado.
Los agentes del vendedor representan los intereses del vendedor, no los suyos, y simplemente solicitar información sobre una propiedad puede hacer que las agencias lo registren como su “cliente” sin su consentimiento.
Con Baerz Property Finders & Advisors, evita completamente estos problemas.
Actuamos únicamente en su nombre, ofreciendo representación independiente, orientación transparente y acceso a todas las propiedades disponibles, incluidas oportunidades privadas y fuera de mercado que otros nunca ven.

¿Le gustaría saber cómo asegurar su propio Asesor Personal de Propiedades? Contáctenos para descubrir cómo podemos representar sus intereses y abrirle el mercado completo.

Características

Paneles solares
Alarm system
Transferencia de propiedad
Precio de Venta
€ 3.000.000 k.k.
Estado
beschikbaar
Aceptación
in overleg
Construcción
Tipo de casa
Villa
Tipo de edificio
vrijstaande woning
Período de construcción
2001
Calificación energética
A
Tipo de techo
plat dak
Dormitorios
4
Baños
6
Superficies y Volumen
Área de estar
643 m2
Otro espacio interior
0 m2
Espacio exterior adjunto al edificio
103 m2
Espacio de almacenamiento externo
33 m2
Volumen en metros cúbicos
2201 m3
Tamaño del terreno
1069 m2
Instalaciones
Mechanische ventilatie
Alarminstallatie
Lift
Schuifpui
Zonnepanelen
Natuurlijke ventilatie
Baerz & Co Property Brochure

Folleto

Vídeos

Heeren Makelaars

Stadionweg 75
1077 SE Amsterdam

info@heerenmakelaars.nl
+31 204702255

www.heerenmakelaars.nl

Solicitud de información / Visita

Sander Bovenkerk profile image
Sander Bovenkerk
Real estate agent