Ons kantoor is lid van Baerz & Co Luxury Homes; een internationaal platform dat exclusieve woningmakelaars met elkaar verbindt. Neem contact op met ons secretariaat voor meer informatie over het landelijke aanbod, waarvan u hieronder een selectie kunt bekijken.

AMSTERDAM
Schiemanstraat 10 - 1013 MJ
Les Pays-Bas

Stefano B. Djoemena profile image
Stefano B. Djoemena
Beëdigd register makelaar o.z.
€985,000 k.k.
Surface habitable
100m2
Superficie du terrain
80m2
Chambres
2

Description

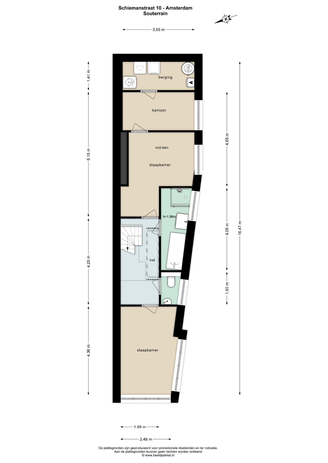
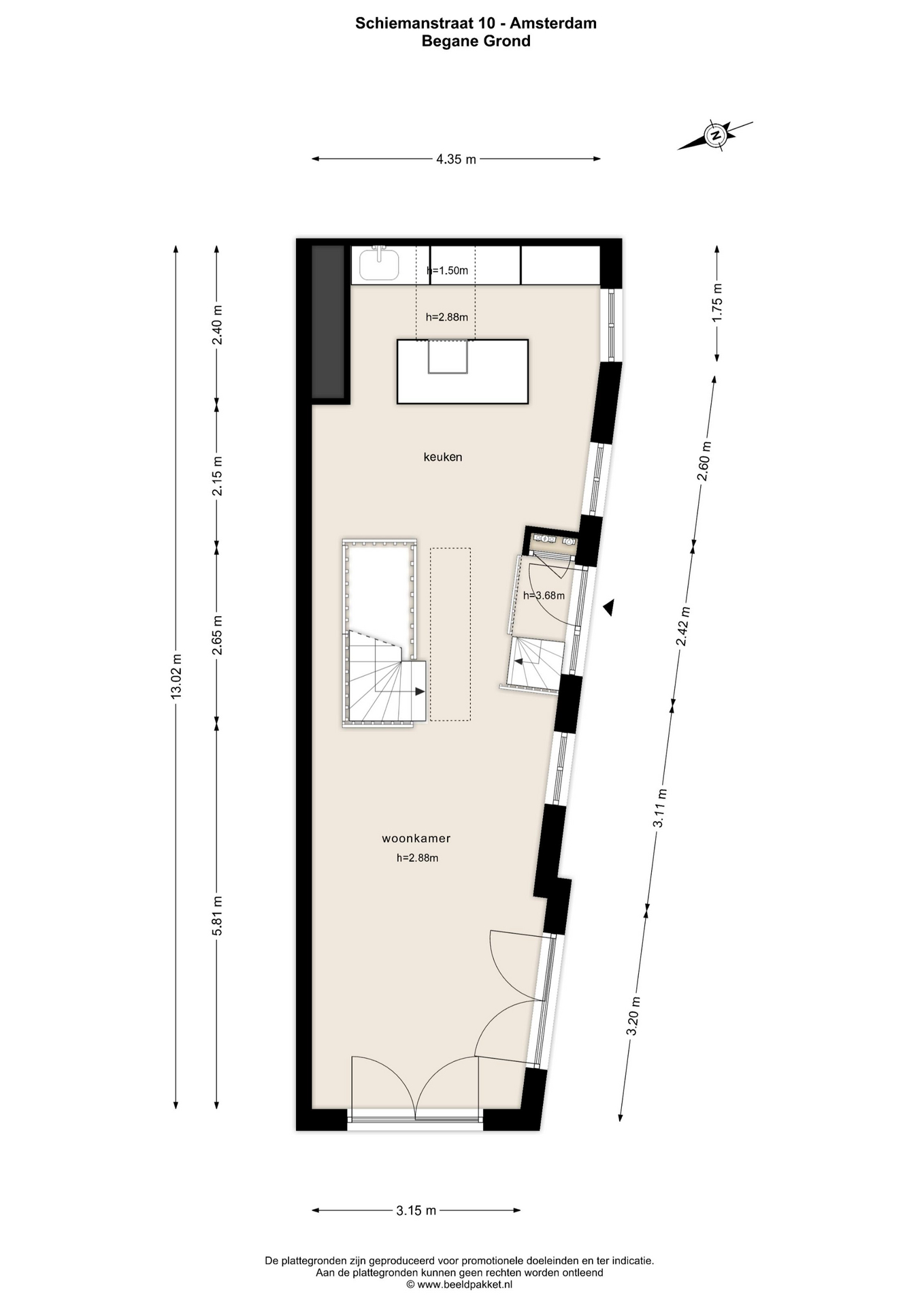
L’appartement en maison de ville à Amsterdam offre une opportunité rare de vivre dans une résidence contemporaine caractérisée par une architecture discrète et une énergie urbaine. Ce nouvel immeuble, d’inspiration industrielle et situé au 10 Schiemanstraat, propose un rez-de-chaussée d’environ 100 m², conjuguant une façade audacieuse à la sérénité des vues sur le canal et un accès privé. Le bâtiment séduit par sa longue silhouette en brique classique, ses fenêtres symétriques et ses fines huisseries en aluminium RAL 6006, tandis que la performance énergétique A+++, le triple vitrage, les panneaux solaires et une pompe à chaleur aérothermique avancée assurent une durabilité d’avant-garde.

L’espace principal surélevé profite d’une lumière naturelle abondante grâce à de larges baies vitrées orientées vers le canal, avec une hauteur sous plafond approchant 2,90 mètres. Un balconnet à la française et une banquette astucieusement escamotable relient discrètement l’intérieur au Westerkanaal. Le niveau inférieur accueille, en hauteur sous plafond totale, deux chambres, un espace bureau, une buanderie et une salle de bains généreuse, tous conçus sur une base technique harmonieuse avec ventilation mécanique. Les intérieurs sont livrés hors d’eau hors d’air, offrant la liberté d’exprimer votre propre style, avec les conseils d’un expert de Co van der Horst.

Une fois franchi le seuil, le centre historique d’Amsterdam s’étend le long de quais paisibles. Haarlemmerplein, la dynamique Haarlemmerstraat et Westerpark sont accessibles à pied, mêlant culture, gastronomie et espaces verts. La résidence bénéficie également d’une connexion fluide avec la gare centrale et le périphérique A10. Pour ceux en quête d’un lieu sur-mesure à forte identité, ce luxueux appartement de maison de ville à vendre à Amsterdam est à la fois une déclaration et un refuge.

Découvrez Amsterdam avec Baerz, votre conseiller et chasseur immobilier personnel de confiance

Pour naviguer le marché de prestige d’Amsterdam, il faut s’appuyer sur une connaissance pointue de la ville, la discrétion et des compétences avérées en négociation. Les meilleurs conseillers accèdent à des biens confidentiels, expliquent les subtilités réglementaires et identifient la valeur où l’opportunité ne se montre que rarement. Les équipes conseil opèrent une sélection poussée et assurent la représentation, renforçant votre position, assurant le bon déroulé de la transaction et veillant au respect de votre vie privée à chaque étape.

Évitez les pièges courants

Les acheteurs internationaux perdent souvent un temps précieux à naviguer entre des annonces en ligne dupliquées, obsolètes ou trompeuses, d’autant que près de 30% des propriétés de luxe ne sont jamais mises sur le marché.
Les agents du vendeur représentent les intérêts du vendeur, pas les vôtres, et une simple demande d’information peut entraîner votre inscription comme “client” auprès d’une agence sans votre consentement.
Avec Baerz Property Finders & Advisors, vous évitez totalement ces écueils.
Nous agissons exclusivement en votre nom, en vous offrant une représentation indépendante, des conseils transparents et un accès à toutes les propriétés disponibles, y compris les opportunités privées et off-market que les autres ne voient jamais.

Curieux de savoir comment obtenir votre propre Conseiller Immobilier Personnel ? Contactez-nous pour découvrir comment nous pouvons défendre vos intérêts et vous ouvrir l’accès à l’ensemble du marché.

Caractéristiques

Panneaux solaires
Transfert de propriété
Prix demandé
€ 985.000 k.k.
Statut
beschikbaar
Acceptation
in overleg
Construction
Type de maison
Dubbel benedenhuis
Type de bâtiment
appartement
Période de construction
2025
Classe énergétique
A+++
Type de toit
samengesteld dak
Chambres
2
Salles de bains
1
Surfaces et volumes
Surface habitable
100 m2
Autre espace intérieur
0 m2
Volume en mètres cubes
420 m3
Superficie du terrain
80 m2
Équipements
Mechanische ventilatie
Frans balkon
Zonnepanelen
Aan water
Aan rustige weg
In centrum
Vrij uitzicht
Aan vaarwater
 

Vidéos

Lunshof Makelaardij Amsterdam

Keizersgracht 555
1017 DR Amsterdam

info@lunshof.nl
+31 575 55 05

www.lunshof.nl

Demande d'information / de visite

Stefano B. Djoemena profile image
Stefano B. Djoemena
Beëdigd register makelaar o.z.