Baerz & Co is een landelijk samenwerkingsverband van zorgvuldig geselecteerde boutique luxury makelaars. Samen vormen wij één netwerk, met één gedeeld aanbod. De woningen die u op onze website ziet, zijn afkomstig van alle aangesloten kantoren binnen Baerz & Co. Daardoor is niet ieder object rechtstreeks door ons kantoor in verkoop, maar door een gespecialiseerde collega binnen ons netwerk. Heeft u een woning gevonden die u aanspreekt en wilt u meer informatie? Dan brengen wij u graag persoonlijk in contact met de betreffende verkoopmakelaar, zodat u direct en zorgvuldig wordt begeleid.

'S-HERTOGENBOSCH
Sint Jacobstraat 31 - 5211 LP
Nederland

Sander Bovenkerk profile image
Sander Bovenkerk
Real Estate Agent
€1.700.000 k.k.
Woonoppervlakte
270m2
Perceeloppervlakte
183m2
Slaapkamers
5

Omschrijving

Dit huis is van top tot teen in 2016 gerenoveerd onder het bezielende oog van een architect. Met veel oog voor detail is dit een echt heel bijzonder huis geworden.

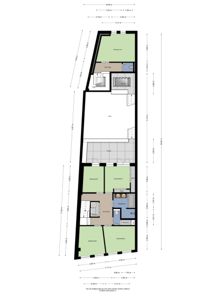
Oude huizen in de binnenstad zijn vooral smal en hoog. Maar weinig huizen hebben, zoals hier, op de begane grond ca. 150 m² vloeroppervlak. In al die ruimte is de keuken het centrum van je gezin. In deze sociale spilfunctie voorziet het met een ruim kookeiland voor veel bergruimte, PITT Cooking en een ontbijt- en borrelbar. Natuurlijk is de keuken volledig ingericht met Miele en Liebherr apparatuur en een Quooker. Ook rondom het eiland is er veel bergruimte en tegenover een koffie en wijnhoek. Vanuit deze keuken heb je ook mooi zicht op de zitkamer, de eetkamer én de tuin. Een ideaal middelpunt van je huis dus.
Het is heel fijn als de zithoek aan het einde van de kamer ligt. Hier zoek en vind je ‘s avonds rust zonder dat er veel gelopen wordt. De haard is opgenomen in een voorzetwand, net als de T.V. Achter deze wand is veel op te bergen waarbij de schapjes ruimte geven om wat moois neer te zetten. Er ligt, net als in de rest van de begane grond, een tegelvloer lijkend op een houten vloer. Niet alleen een warme uitstraling, maar door de vloerverwarming ook heel behaaglijk voor blote voetjes. Een groot gebogen venster zorgt voor voldoende daglicht hier.
Natuurlijk kent iedereen de voorkant van de St.-Jacobskerk wel. Maar toch zal je bezoek verrast zijn door de kijk die je er van deze kant op hebt. Een verrassende kijk had de architect op dit plan. Door een enorme transparante wand te plaatsen is binnen buiten geworden en vice versa. De wand is vanuit de hoek naar twee kanten weg te schuiven. Het is overdag een heerlijk lichte plek voor een gezellige eettafel en ’s avonds eten met dit bijzondere uitzicht. De lange kastenwand maakt wederom je huis heel praktisch en smaakvol. Ook aan de hoeveelheid buitenruimte biedt deze woning meer dan gebruikelijk in de binnenstad. Naast een flinke binnentuin zijn er twee dakterrasjes. Zelf kiezen dus voor zon, schaduw, boek lezen, samen nog een wijntje of lekker buiten dineren.

Achterhuis
In het achterhuis vind je op de eerste verdieping een flinke kamer die geschikt is voor heel veel. Nu is deze in gebruik als gym. Hieronder liggen de technische ruimte voor de spa. Er is een sauna met, wederom, een grote glazen wand. De kachel staat vrij in de ruimte en er zijn ligbanken voor drie personen. De (dompel)douche vind je achterin. Misschien wel nóg mooier is de jacuzzi voor ca. vier personen. Op een verhoging en onder de sterrenhemel achter een glazen dak is dit toch wel optimaal relaxen, en dat gewoon thuis.

Eerste verdieping
Ooit waren dit een boven- en benedenwoning. Door de samenvoeging kon er een trap verwijderd worden. De huidige trap is mooi weggewerkt achter een schuifdeur. Aan de trapleuning herkennen wij deze architect. Maar ook in het lijnenspel bij deze trap en de lichtlijn tussen muur en het schuin vlak. Op de ruime overloop zijn de was-apparaten in een kast weggewerkt.
In dit gezin past het om een slaapkamer te gebruiken als werkkamer. En als er logees zijn vinden ze hier ook hun plek. Dát de eigenaar voor deze kamer kiest om te werken is wel te begrijpen. Alleen al het uitzicht maakt je werkdag toch al leuker? En in de lente gaan de tuindeuren natuurlijk al vroeg open. Er zijn veel vaste kasten waarin ruimte is gelaten voor een TV. Net als op de rest van deze etage ligt er een houten Lamelparketvloer met een white wash afwerking. Het is een smaakvolle combinatie met de overige strakke afwerking.
De overige drie slaapkamers zijn voor de kinderen. Twee slaapkamers liggen aan de voorzijde. Beide met twee vensters om lekker wat door weg te turen. De achterkamer ligt aan het dakterras.
Deze eerste badkamer is voor de kinderen. Natuurlijk is hier alles net zo sfeervol afgewerkt als de rest van het huis. Waskommen óp het blad, een rustige, maar natuurlijke muurtegel óm het bad en een fijne grote inloopdouche. Normaalgesproken is dit natuurlijk de hoofdbadkamer. Maar die komt nog. Het toilet is apart bereikbaar. Achter dit toilet vind je nog een technische ruimte voor de tweede cv-ketel.

Tweede verdieping
De hele tweede verdieping heb je hier voor jezelf. Onder de sfeervolle spanten is er een grote slaapkamer met badkamer en suite. In de ca 8 meter lange kamer is ruimte voor een bed, een zitje bij de dakkapel en een lange vaste kast onder de schuine kant. Ook hier ligt dezelfde lamelparketvloer als op de eerste etage. Omdat de badkamer exclusief voor deze kamer is, kon de wastafel op een kopse kant geplaatst worden. Het bad is slim in de schuine kant geplaatst en het toilet en de douche vind je aan de andere kant van de wastafel. Achter deze badkamer is een verrassende berging voor je zomer-/wintergarderobe.

Zoals gezegd waren dit ooit een boven- en benedenwoning. Dit verklaart de tweede voordeur in de voorgevel. Nu is dit de ruime fietsenberging vanuit de straat.

Ligging
Wie deze binnenstad goed kent weet dat dit de topplekjes zijn. Niet alleen is het een bijzonder sfeervol straatje met prachtige gevels. De straat is namelijk doodlopend. Geen doorgaand verkeer dus. Overigens is de straat wel weer breed genoeg om voor de deur te komen met je auto. Toch handig met kinderen en boodschappen. Je woont hier dus stil, centraal en bijzonder sfeervol. Daarnaast is het gewoon een erg gezellig straatje met je buren hier. In mum van tijd zul je ze leren kennen. Als je even de straat uit loopt, sta je zo bij de vestingwerken, het Zuiderpark en nét iets verder het Bossche Broek. Het winkel- en Horecagedeelte van het centrum ligt dicht genoeg bij om dit te voet te doen en ver genoeg weg om hier niets van te horen of merken. Op het station sta je te voet in 10 minuten.
Een avondvergunning (van 17:00-10:00u) om te parkeren krijg je per direct. Een 24/7 vergunning duurt wat langer. Maar er zijn abonnementen beschikbaar in de St.-Jansgarage op een steenworp afstand.

Kenmerken

Overdracht
Vraagprijs
€ 1.700.000 k.k.
Status
beschikbaar
Aanvaarding
in overleg
Bouw
Soort woonhuis
Herenhuis
Soort bouw
tussenwoning
Bouwjaar
1891
Energieklasse
B
Soort dak
schilddak
Slaapkamers
5
Badkamers
2
Oppervlakten en inhoud
Woonoppervlakte
270 m2
Overige inpandige ruimte
4 m2
Gebouwgebonden buitenruimte
54 m2
Inhoud
971 m3
Perceeloppervlakte
183 m2
faciliteiten
Aan rustige weg
In centrum
Baerz & Co Property Brochure

Brochure

Plattegronden

Heeren Makelaars

Stadionweg 75
1077 SE Amsterdam

info@heerenmakelaars.nl
+31 204702255

www.heerenmakelaars.nl

Informatie / bezichtigingsaanvraag

Sander Bovenkerk profile image
Sander Bovenkerk
Real Estate Agent