Baerz & Co is een landelijk samenwerkingsverband van zorgvuldig geselecteerde boutique luxury makelaars. Samen vormen wij één netwerk, met één gedeeld aanbod. De woningen die u op onze website ziet, zijn afkomstig van alle aangesloten kantoren binnen Baerz & Co. Daardoor is niet ieder object rechtstreeks door ons kantoor in verkoop, maar door een gespecialiseerde collega binnen ons netwerk. Heeft u een woning gevonden die u aanspreekt en wilt u meer informatie? Dan brengen wij u graag persoonlijk in contact met de betreffende verkoopmakelaar, zodat u direct en zorgvuldig wordt begeleid.

AMSTELVEEN
Amsteldijk Noord 105 - 1183 TH
Nederland

Sander Bovenkerk profile image
Sander Bovenkerk
Real Estate Agent
€2.850.000 k.k.
Woonoppervlakte
309m2
Perceeloppervlakte
1930m2
Slaapkamers
4

Omschrijving

Amsteldijk Noord 105 is een oase van rust aan een van de mooiste plekjes van de Amstel. Deze bijzonder stijlvolle, semi vrijstaande woning van circa 309m² (174m² GO en 135 m² GO overige inpandige ruimte) met aangrenzende garage ligt op een royaal perceel van in totaal 1.930m² en geeft het gevoel van vrijstaand wonen.

Hier ervaar je het eeuwige vakantiegevoel en kun je in alle privacy ontsnappen aan de drukte van de stad en het dagelijks leven. De riet gedekte woning biedt onder andere alle comfort voor een groter gezin inclusief au-pair, kantoor aan huis en een bed and breakfast. Bovendien geeft de spectaculaire tuin alle mogelijkheden voor bijvoorbeeld een guest house, pool house, mantelzorgwoning of externe kantoorruimte. Vanzelfsprekend kunnen er meerdere auto’s op eigen terrein geparkeerd worden, terwijl je binnen enkele stappen bent verwijderd van je eigen aanlegsteiger aan de Amstel. Oftewel wonen, werken en leven in de rust en sereniteit van het groen en water om de hoek van Amsterdam.

De woning biedt niet alleen een perfecte locatie, maar ook een uitstekende bereikbaarheid. In de omgeving zijn verschillende basis- en middelbare scholen, waaronder The International School en British School. Ook sportliefhebbers zullen zich hier volop thuis voelen. Hardlopen, fietsen, roeien of sporten bij een van de nabij gelegen sportverenigingen is allemaal mogelijk. Ook het Gelderlandplein en de Zuidas, bekend om hun winkels, restaurants en bruisende bedrijvigheid, zijn binnen no time bereikbaar.

Kortom, deze 2-onder-1-kapwoning aan de Amstel bezorgt een ongeëvenaarde levensstijl en een unieke kans om te genieten van het beste van zowel het stadsleven als de natuur. Aarzel niet en maak van dit droomhuis je eigen thuis. Neem vandaag nog contact met ons op voor een bezichtiging en laat je betoveren door de schoonheid en mogelijkheden van deze woning en prachtige tuin!

Indeling.

Souterrain:

Volwaardige verdieping van circa 107m² met een stahoogte van circa 1.92m. Het souterrain is ingedeeld met een veel bergruimte, een waskamer, toiletruimte, techniekruimte, toiletruimte met fonteintje, woonkamer met open keuken, open haard en openslaande deuren naar een overdekt terras en de achtertuin, slaapkamer en een badkamer met een toilet, wastafel en een douche.

Begane grond:

Entree via een stenen bordestrap, hal, toiletruimte met fonteintje, tussenhal met prachtige houten deuren van een voormalig Belgisch bankgebouw en dito bordestrap, intieme woonkamer met open haard en een aangrenzend terras met panoramisch uitzicht op De Amstel, fijne woonkeuken met airco, open haard, maatwerk inbouwkasten en een tweede, aangrenzend, diep terras met prachtig uitzicht op de achtertuin en groenrijke omgeving.

Eerste verdieping:

Overloop/vide, tweede slaapkamer gelegen aan de achterzijde met mooi uitzicht op de achtertuin, derde slaapkamer met pen haard en panoramisch uitzicht op De Amstel, ruime, nok hoge tweede badkamer en suite met een vrijstaand ligbad, inloopdouche, toiletruimte, een maatwerk duo wastafelmeubel en een handdoekradiator.

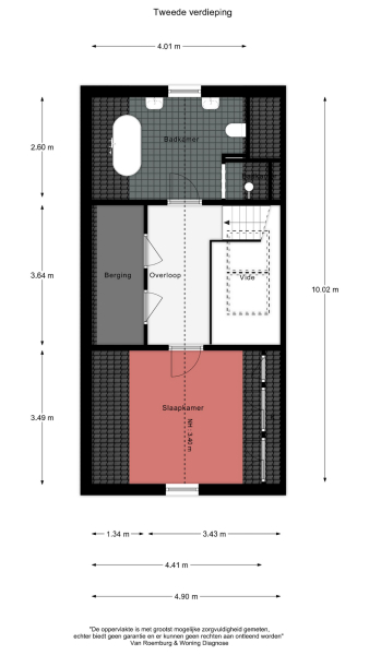
Tweede verdieping:

Overloop/vide, berging, vierde slaapkamer met wederom schitterend zicht op De Amstel, gelegen derde badkamer met fraai zicht op de achtertuin en voorzien van een vrijstaand ligbad, inloopdouche, maatwerk duo wastafelmeubel en een toilet.

Tuin:

Met een fraai elektrisch bedienbaar gietijzeren hek beschut gelegen voortuin aangelegd met prachtige bloemen en planten. De oprit geeft ruimte voor meerdere auto’s. De bijzonder grote achtertuin, met achterom, heeft een direct aan de woning grenzend overdekt terras en een vrijstaande berging (circa 22m²). Het overgrote deel van de achtertuin brengt je in een natuurlijke sereniteit en biedt volop mogelijkheden om bijvoorbeeld een guest house, pool house, mantelzorgwoning of externe kantoorruimte te realiseren.

Garage:

Ruime aangrenzende garage (circa 27m²) met een hoogte van circa 2.72m, vloerverwarming en directe, inpandige toegang tot de woning. Aan de voorzijde zijn dubbele naar buiten draaiende houten deuren en aan de achterzijde een deur met directe toegang tot de achtertuin.

Verantwoording meetrapport NEN 2580 :

Bruto vloeroppervlakte - Woning 411 m2
Gebruiksoppervlakte(n) - Woonoppervlak 174 m2
Gebruiksoppervlakte(n) - Overige inpandige ruimte(n) 135 m2
Gebruiksoppervlakte(n) - Gebouw gebonden buitenruimte(n) 20 m2
Gebruiksoppervlakte(n) - Externe bergruimte(n) 22 m2
Inhoud woonfunctie 523 m3
Bruto inhoud woonfunctie 965 m3
Inhoud externe bergruimte 50 m3

De woning is ingemeten conform NVM Meetinstructie. Deze meetinstructie is bedoeld om een meer eenduidige manier van meten toe te passen voor het geven van een indicatie van de gebruiksoppervlakte. De meetinstructie sluit verschillen in meetuitkomsten niet volledig uit, door bijvoorbeeld interpretatieverschillen, afrondingen of beperkingen bij het uitvoeren van de meting.

Bijzonderheden:
-Eigen grond.
-Perceel 1.930m².
-Bouwjaar 1935 onder architectuur van architect Loggers.
-Totale verbouwing/renovatie in periode 2007 - 2010.
-Glas-in-lood ramen afkomstig uit het Vredespaleis.
-Houten kozijnen met dubbel glas.
-Houten vloeren zowel robuust als verfijnd afkomstig uit oude kazernes.
-Oud Frans eiken binnendeuren en kozijnen.
-Gietijzeren radiatoren met bloemen print.
-Souterrain voorzien van vloerverwarming m.u.v. de waskamer.
-Vier open (gas)haarden.
-Riet gedekt en geïsoleerd dak (2007).
-Remeha Quinta Pro gasgestookte cv-combiketel.
-ACV Smart 53KW cv-boiler.
-Oplevering in overleg.

Deze informatie is met de nodige zorgvuldigheid samengesteld. Wij aanvaarden echter geen enkele aansprakelijkheid voor enige onvolledigheid, onjuistheid of anderszins, dan wel de gevolgen daarvan. Alle opgegeven maten en oppervlakten zijn indicatief. Koper heeft zijn eigen onderzoeksplicht naar alle zaken, die voor hem van belang zijn. Met betrekking tot deze woning is ons kantoor de makelaar van verkoper. Wij adviseren u een NVM/MVA Makelaar in te schakelen, die u met zijn deskundigheid zal bijstaan in het aankoopproces. Indien u geen professionele begeleiding wenst in te schakelen, acht u zich volgens de wet deskundig genoeg om alle zaken, die van belang zijn, te kunnen overzien. De Algemene Consumentenvoorwaarden van de NVM zijn van toepassing.

Kenmerken

Overdracht
Vraagprijs
€ 2.850.000 k.k.
Status
beschikbaar
Aanvaarding
in overleg
Bouw
Soort woonhuis
Herenhuis
Soort bouw
twee onder een kapwoning
Bouwjaar
1935
Soort dak
zadeldak
Slaapkamers
4
Badkamers
3
Oppervlakten en inhoud
Woonoppervlakte
309 m2
Overige inpandige ruimte
0 m2
Gebouwgebonden buitenruimte
20 m2
Externe bergruimte
22 m2
Inhoud
965 m3
Perceeloppervlakte
1930 m2
Baerz & Co Property Brochure

Brochure

Video’s

Heeren Makelaars

Stadionweg 75
1077 SE Amsterdam

info@heerenmakelaars.nl
+31 204702255

www.heerenmakelaars.nl

Informatie / bezichtigingsaanvraag

Sander Bovenkerk profile image
Sander Bovenkerk
Real Estate Agent

Een luxe woning kopen in Amstelveen

Amstelveen biedt verfijnde woningen, een internationale ambiance en uitzonderlijke connectiviteit. De combinatie van groene omgeving, internationale voorzieningen en gemeenschapszin spreekt wereldwijd gezinnen en kopers aan die privacy én een levendige stedelijke verbinding zoeken.