Baerz & Co is een landelijk samenwerkingsverband van zorgvuldig geselecteerde boutique luxury makelaars. Samen vormen wij één netwerk, met één gedeeld aanbod. De woningen die u op onze website ziet, zijn afkomstig van alle aangesloten kantoren binnen Baerz & Co. Daardoor is niet ieder object rechtstreeks door ons kantoor in verkoop, maar door een gespecialiseerde collega binnen ons netwerk. Heeft u een woning gevonden die u aanspreekt en wilt u meer informatie? Dan brengen wij u graag persoonlijk in contact met de betreffende verkoopmakelaar, zodat u direct en zorgvuldig wordt begeleid.

AMSTERDAM
Alexander Boersstraat 37 H - 1071 KW
Nederland

Igor Veendrick profile image
Igor Veendrick
Real Estate Agent
€2.600.000 k.k.
Woonoppervlakte
216m2
Perceeloppervlakte
N/A
Slaapkamers
4

Omschrijving

Alexander Boersstraat 37-H, 1071 KW Amsterdam

Op een schitterende locatie in het Museumkwartier in Amsterdam-Zuid, op de hoek van een statig monumentaal blok, bieden wij dit bijzondere monumentale drielaags benedenhuis aan. Met een gevelbreedte van bijna 9 meter, vier slaapkamers, drie badkamers en een overvloed aan authentieke monumentale details betreft dit een werkelijk uniek benedenhuis, een woning van dit formaat en karakter komt in Oud-Zuid zelden op de markt.

Locatie en omgeving
De woning is gelegen op de hoek van de Van Eeghenstraat en de Alexander Boersstraat. Dit is een rustige en statige straat in het hart van het prestigieuze Museumkwartier, één van de meest geliefde woongebieden van Amsterdam-Zuid. Op korte loopafstand ligt het Museumplein, waar iconische culturele instellingen zoals het Concertgebouw, het Rijksmuseum, het Van Gogh Museum en het Stedelijk Museum samenkomen. Deze omgeving staat bekend om haar bijzondere combinatie van internationale allure, historische charme en een aangename woonrust.

In de directe omgeving bevindt zich een breed aanbod aan kwaliteitswinkels, speciaalzaken en restaurants. De nabijgelegen Cornelis Schuytstraat, P.C. Hooftstraat en Willemsparkweg bieden tal van culinaire adressen en stijlvolle boetieks. Voor een goede koffie, lunch of diner zijn onder meer CoffeeDistrict, The Marlin Bar, Visque, Café George en Brasserie Joffers populaire plekken in de buurt. Daarnaast vormt de wekelijkse biologische markt op de Jacob Obrechtstraat een geliefde ontmoetingsplek voor buurtbewoners.

Het Vondelpark ligt op slechts enkele minuten lopen en biedt volop ruimte voor ontspanning, sport en recreatie in het groen. Ook voor gezinnen is dit een zeer aantrekkelijke woonomgeving met diverse goede (internationale) scholen, kinderopvang, sportfaciliteiten en het wellnesscentrum van het Conservatorium Hotel in de directe nabijheid.

Bereikbaarheid
De woning is uitstekend bereikbaar, zowel met de fiets, het openbaar vervoer als met de auto. Vanaf het nabijgelegen Museumplein en de Van Baerlestraat vertrekken diverse tram- en buslijnen met directe verbindingen naar onder andere Station Zuid, Amsterdam Centraal en Amstelveen. Buslijn 397 biedt bovendien een snelle verbinding met luchthaven Schiphol. Met de auto zijn de Ring A10 en uitvalswegen richting onder andere Utrecht, Den Haag en Schiphol binnen enkele minuten bereikbaar via de S108 en S109. Station Zuid en de Zuidas liggen op circa tien minuten fietsen.

Parkeren
Parkeren kan direct voor de deur en is mogelijk via het gemeentelijke vergunning systeem.

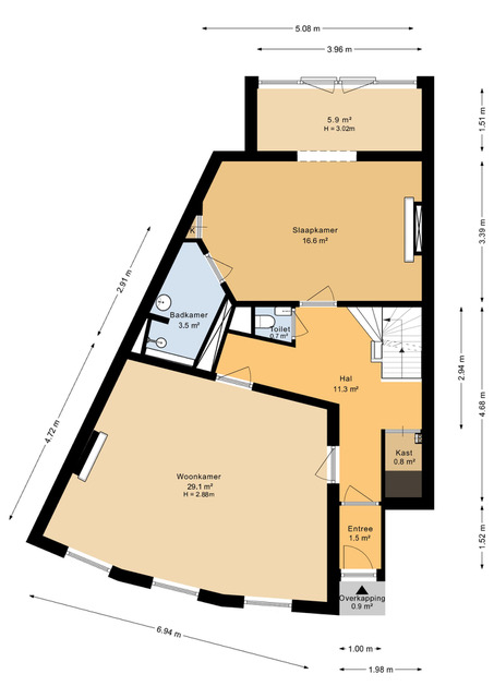
Indeling

Bel-etage
Via de klassieke eigen entree komt u binnen in het tochtportaal, waarna de fraaie en ruime hal toegang biedt tot de verschillende vertrekken. Aan de voorzijde bevindt zich de royale zitkamer, gelegen over de volle breedte van de woning met drie grote ramen die zorgen voor veel lichtinval.
Aan de achterzijde bevindt zich de eerste ruime slaapkamer met een eigen badkamer voorzien van een inloopdouche en wastafel. Vanuit deze kamer is er toegang tot het eerste inpandige balkon met een prachtig en weids uitzicht over de groene binnentuinen van de Van Eeghenstraat. Het gastentoilet is bereikbaar vanuit de hal.

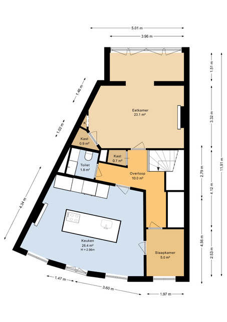
Eerste verdieping
Via de monumentale trap bereikt u de overloop van de eerste verdieping. Aan de achterzijde bevindt zich de klassieke eetkamer met toegang tot een tweede inpandig balkon. Dit balkon is voorzien van een harmonica-pui waardoor binnen en buiten op fraaie wijze met elkaar worden verbonden. Door de gunstige ligging kunt u hier tot in de avonduren genieten van de zon.
Aan de voorzijde bevindt zich de riante woonkeuken met kookeiland, zonder twijfel het pronkstuk van het appartement. De keuken is uitgevoerd in prachtig donker eikenhout en afgewerkt met een elegant composiet werkblad. De keuken is voorzien van hoogwaardige inbouwapparatuur van Siemens StudioLine, een Bora kookplaat en een Quooker. Het eiland beschikt daarnaast over een gezellig bargedeelte. Dankzij de breedte van bijna 7 meter en drie grote ramen is er een prachtig vrij uitzicht richting de Jan Luijkenstraat.
Vanaf de keuken en de overloop is tevens de vierde (slaap)kamer bereikbaar, die zich uitstekend leent als werk- of studeerkamer.

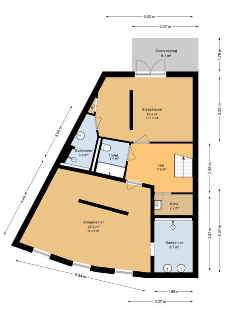
Souterrain
Het souterrain is ingericht als comfortabele slaapverdieping. Aan de voorzijde bevindt zich de royale master bedroom met diverse inbouwkasten en een badkamer en suite voorzien van een inloop-regendouche en dubbele wastafel.
Aan de achterzijde ligt de tweede ruime slaapkamer, eveneens met een eigen badkamer voorzien van een inloopdouche en wastafel. Vanuit deze slaapkamer is er toegang tot de sfeervol aangelegde achtertuin van circa 18 m².
Het separate toilet is bereikbaar vanuit de hal. Daarnaast bevindt zich op de overloop een interne berging met aansluitingen voor de wasmachine en droger.

Alexander Boersstraat:
Alexander Boers (1842-1890), burgemeester van Nieuwer-Amstel van 1885 tot 1890. De straat behoorde tot 1 mei 1896 tot die gemeente (Bron: Stadsatlas Amsterdam).

Bijzonderheden:
- Drielaags benedenhuis van ca. 216m² GO (NEN2580)
- Vier (slaap)kamers, drie badkamers
- Achtertuin van ca. 18m² gelegen op het Westen met namiddag zon
- Twee inpandige balkons waarvan één voorzien van harmonica pui
- Recent volledig en hoogwaardig gerenoveerd
- Gemeentelijk monument met bijzonder veel monumentale details
- Energielabel A
- Gelegen op eigen grond
- Rondom 2005 heeft er funderingsherstel plaatsgevonden
- Kleine VVE bestaande uit 2 leden, eigen beheer
- MJOP wordt momenteel opgesteld
- Maandelijkse VVE bijdrage is €75,-
- Oplevering in overleg, kan heel snel

Deze informatie is door ons met de nodige zorgvuldigheid samengesteld. Onzerzijds wordt echter geen enkele aansprakelijkheid aanvaard voor enige onvolledigheid, onjuistheid of anderszins, dan wel de gevolgen daarvan. Alle opgegeven maten en oppervlakten zijn indicatief. Koper heeft zijn eigen onderzoek plicht naar alle zaken die voor hem of haar van belang zijn. Met betrekking tot deze woning is de makelaar adviseur van verkoper. Wij adviseren u een deskundige (NVM-)makelaar in te schakelen die u begeleidt bij het aankoopproces. Indien u specifieke wensen heeft omtrent de woning, adviseren wij u deze tijdig kenbaar te maken aan uw aankopend makelaar en hiernaar zelfstandig onderzoek te (laten) doen. Indien u geen deskundige vertegenwoordiger inschakelt, acht u zich volgens de wet deskundige genoeg om alle zaken die van belang zijn te kunnen overzien. Van toepassing zijn de NVM voorwaarden.

Kenmerken

Overdracht
Vraagprijs
€ 2.600.000 k.k.
Status
beschikbaar
Aanvaarding
in overleg
Bouw
Soort woonhuis
Dubbel benedenhuis
Soort bouw
appartement
Bouwjaar
1894
Energieklasse
A
Slaapkamers
4
Badkamers
3
Oppervlakten en inhoud
Woonoppervlakte
216 m2
Overige inpandige ruimte
0 m2
Gebouwgebonden buitenruimte
7 m2
Inhoud
761 m3
faciliteiten
Mechanische ventilatie
Tv kabel
Natuurlijke ventilatie
Aan rustige weg
In woonwijk
Vrij uitzicht
Baerz & Co Property Brochure

Brochure

Video’s

Heeren Makelaars

Stadionweg 75
1077 SE Amsterdam

info@heerenmakelaars.nl
+31 204702255

www.heerenmakelaars.nl

Informatie / bezichtigingsaanvraag

Igor Veendrick profile image
Igor Veendrick
Real Estate Agent

Een luxe woning kopen in Amsterdam

Amsterdam biedt een kosmopolitische levensstijl, gekenmerkt door erfgoed, verbondenheid en discrete luxe. Bewoners profiteren van een sterke internationale gemeenschap, hoogwaardige dienstverlening en een bruisende cultuur. De blijvende aantrekkingskracht van de stad schuilt in de combinatie van geschiedenis, verfijning en een vooruitstrevende geest.