Baerz & Co is een landelijk samenwerkingsverband van zorgvuldig geselecteerde boutique luxury makelaars. Samen vormen wij één netwerk, met één gedeeld aanbod. De woningen die u op onze website ziet, zijn afkomstig van alle aangesloten kantoren binnen Baerz & Co. Daardoor is niet ieder object rechtstreeks door ons kantoor in verkoop, maar door een gespecialiseerde collega binnen ons netwerk. Heeft u een woning gevonden die u aanspreekt en wilt u meer informatie? Dan brengen wij u graag persoonlijk in contact met de betreffende verkoopmakelaar, zodat u direct en zorgvuldig wordt begeleid.

AMSTERDAM
Herengracht 6 - 1015 BK
Nederland

Sander Bovenkerk profile image
Sander Bovenkerk
Real Estate Agent
€2.850.000 k.k.
Woonoppervlakte
382m2
Perceeloppervlakte
92m2
Slaapkamers
5

Omschrijving

Herengracht 6, 1015 BK Amsterdam

Wonen aan de Herengracht is wonen in het hart van de Amsterdamse grachtengordel, waar historie, karakter en levendigheid samenkomen. Op nummer 6 vindt u een indrukwekkend grachtenpand uit 1880, onderdeel van een monumentale gevelwand en gelegen in een van de meest geliefde delen van de stad. Met een woonoppervlak van circa 382 m², verdeeld over een souterrain, bel-etage en vier woonlagen, biedt dit pand een unieke kans om een royale grachtenwoning in het centrum van Amsterdam te realiseren. De combinatie van authentieke details, royale ruimtes en de centrale ligging maakt dit tot een bijzonder object binnen het UNESCO Werelderfgoedgebied.

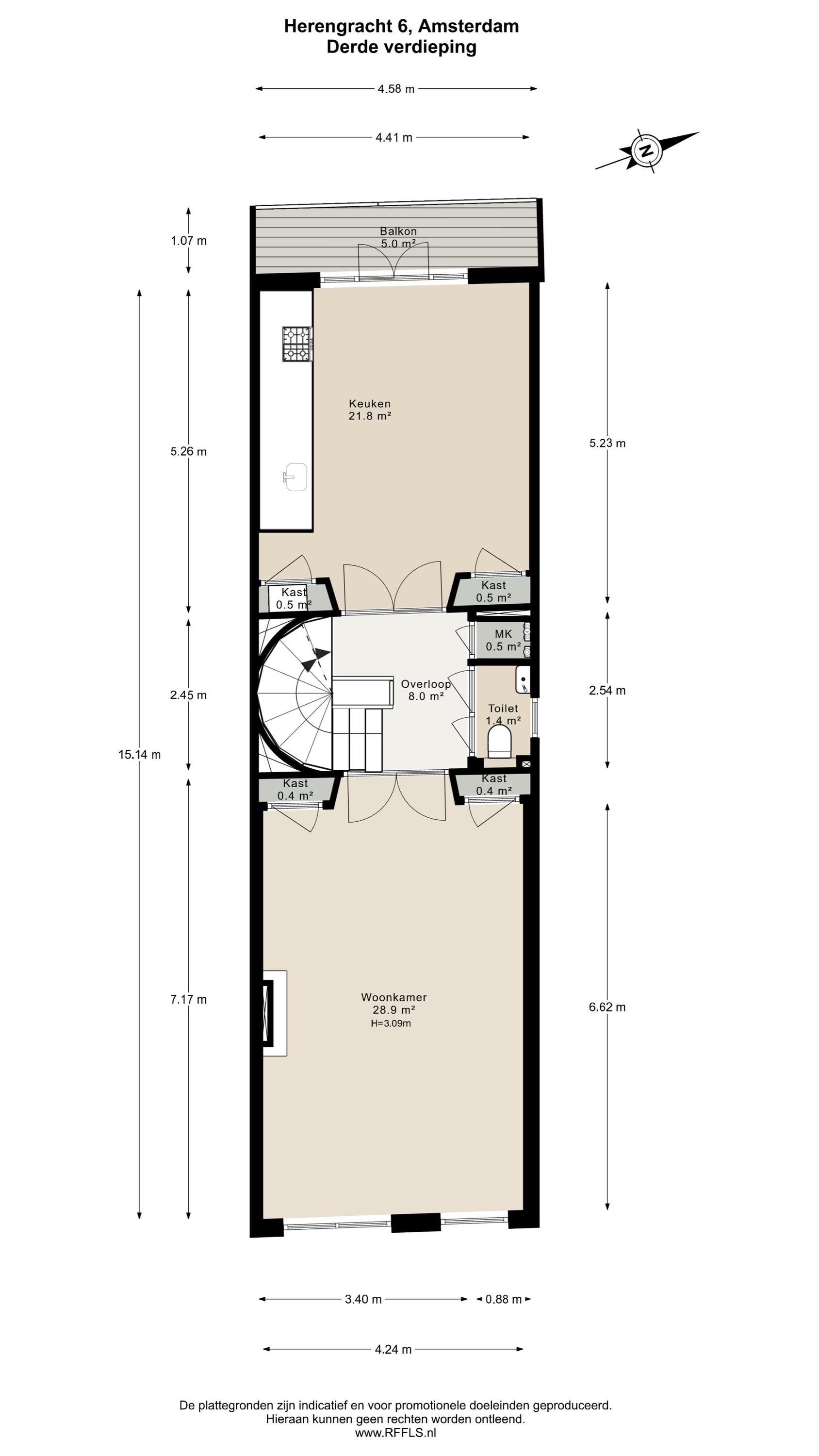
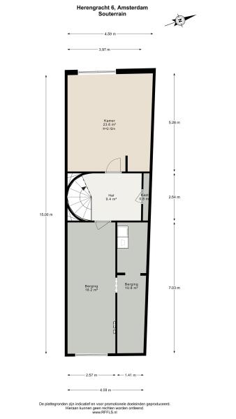
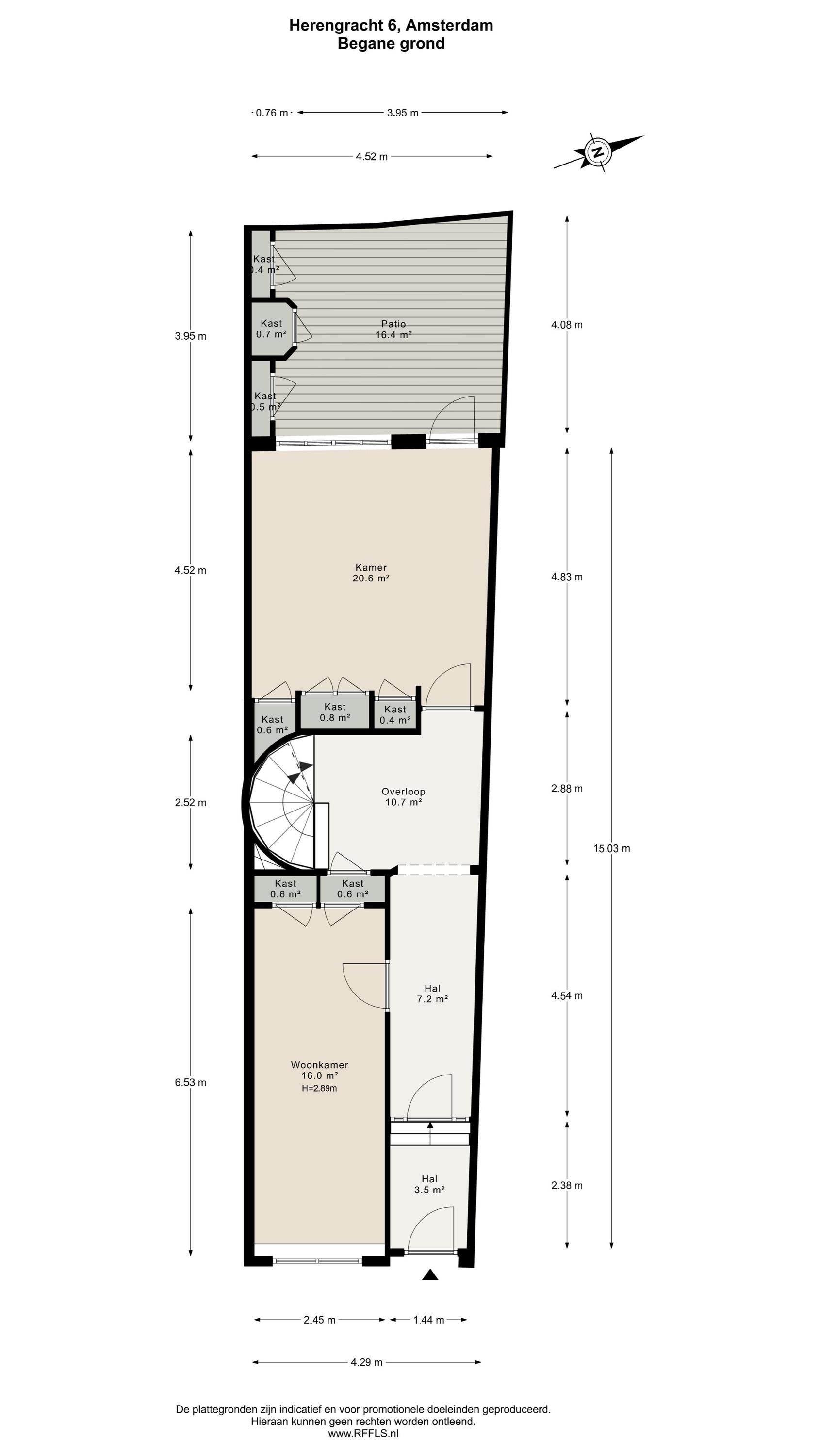
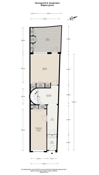
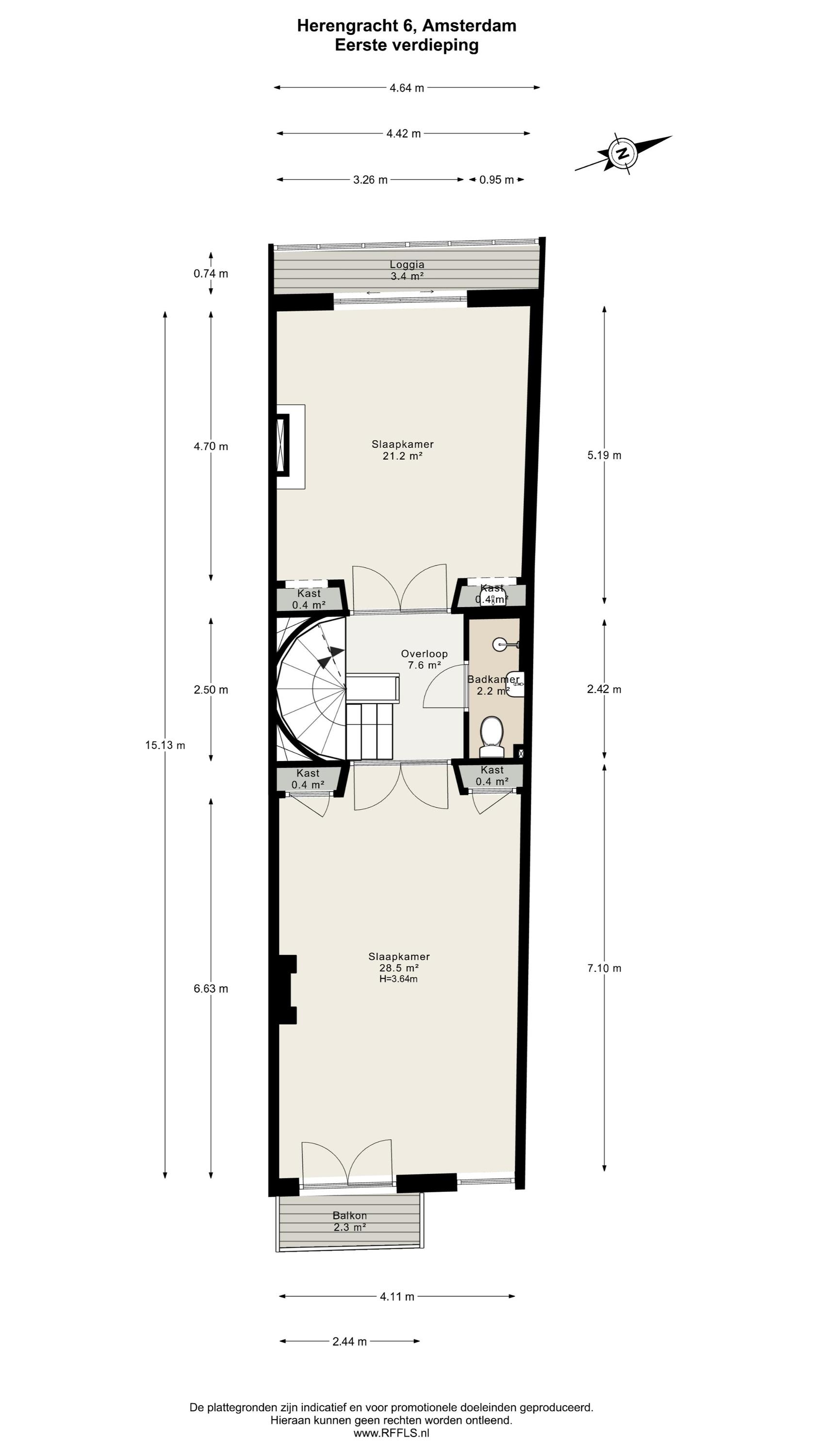
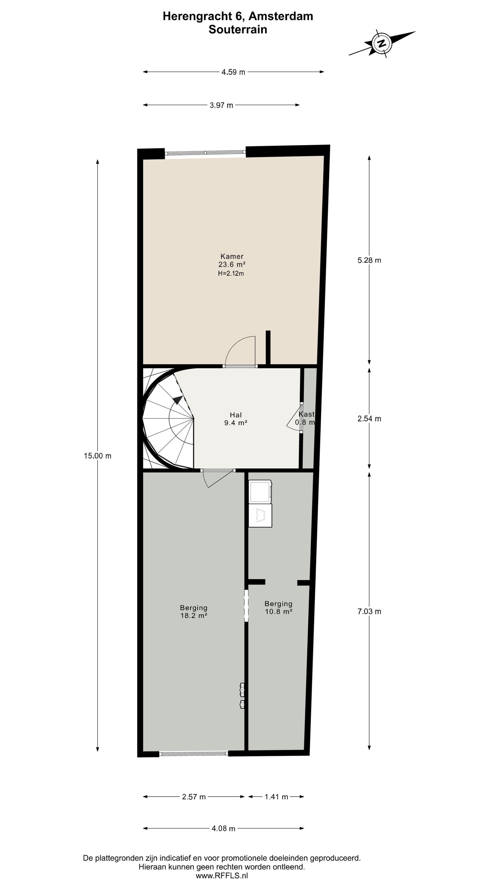
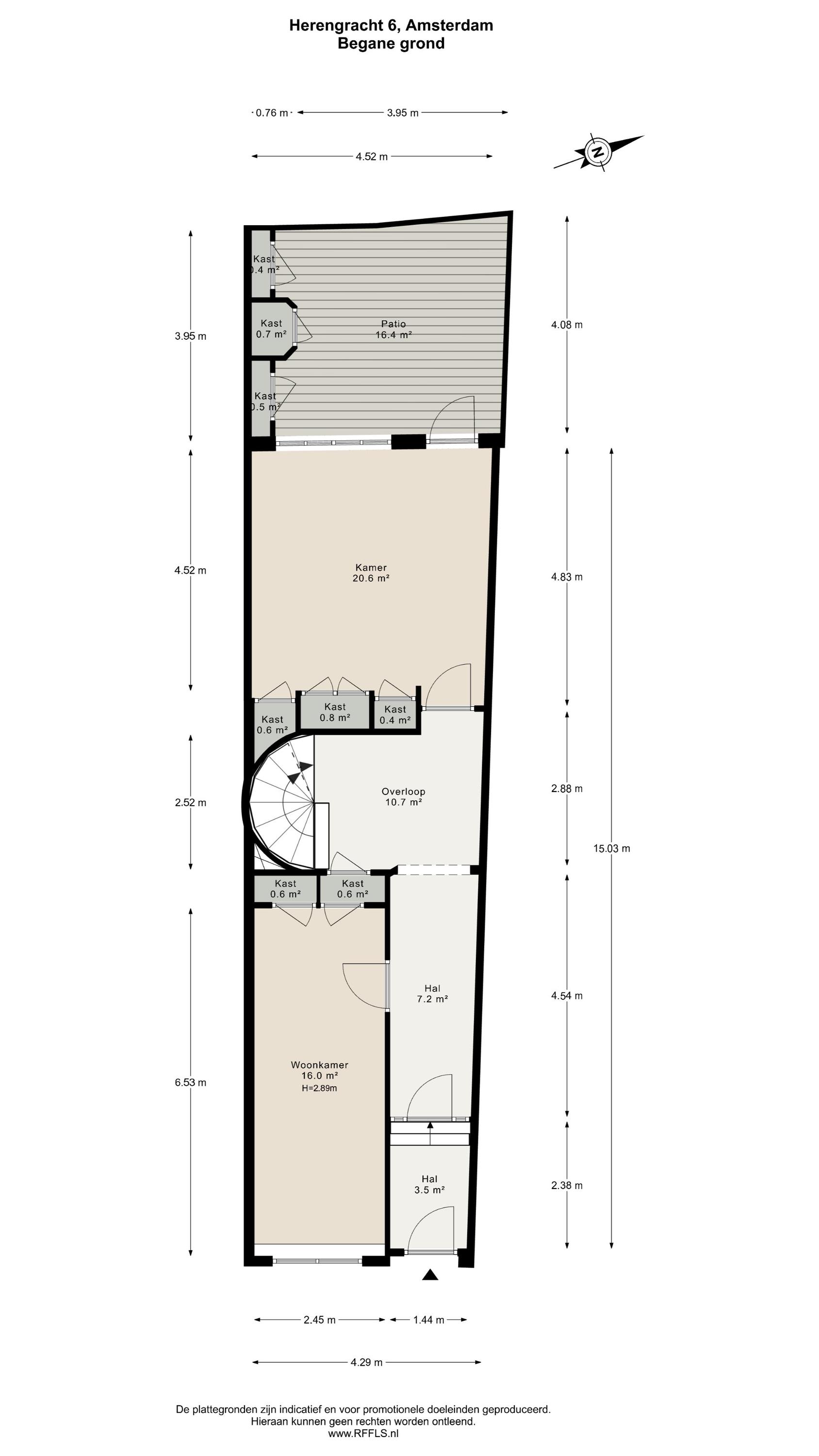
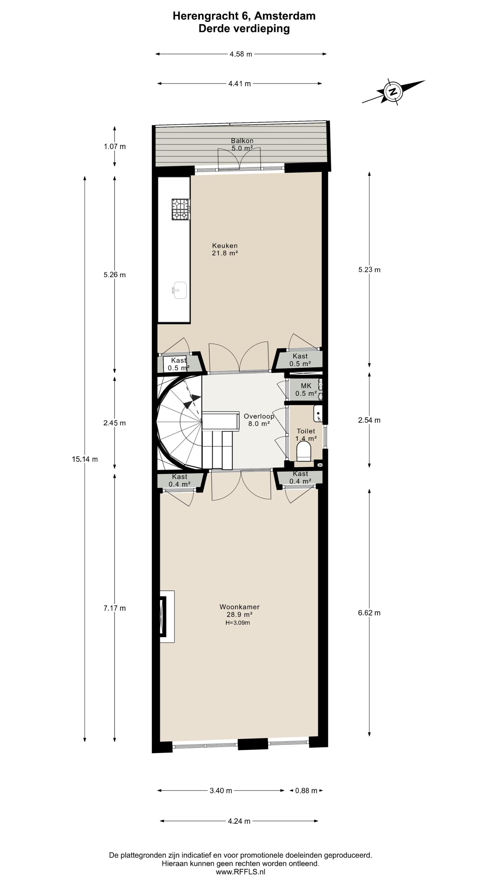
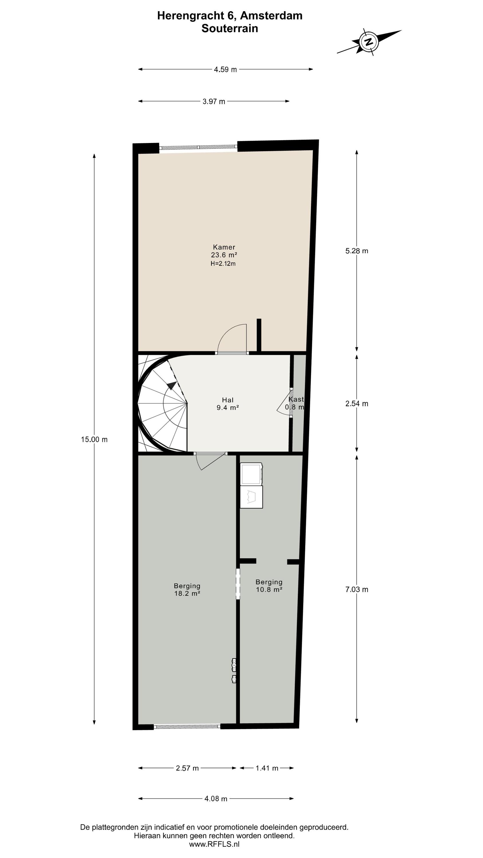
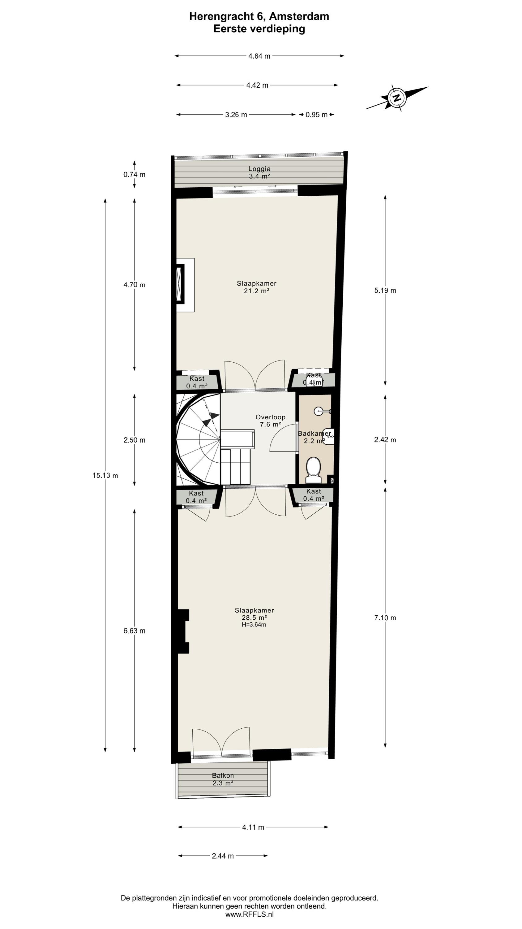
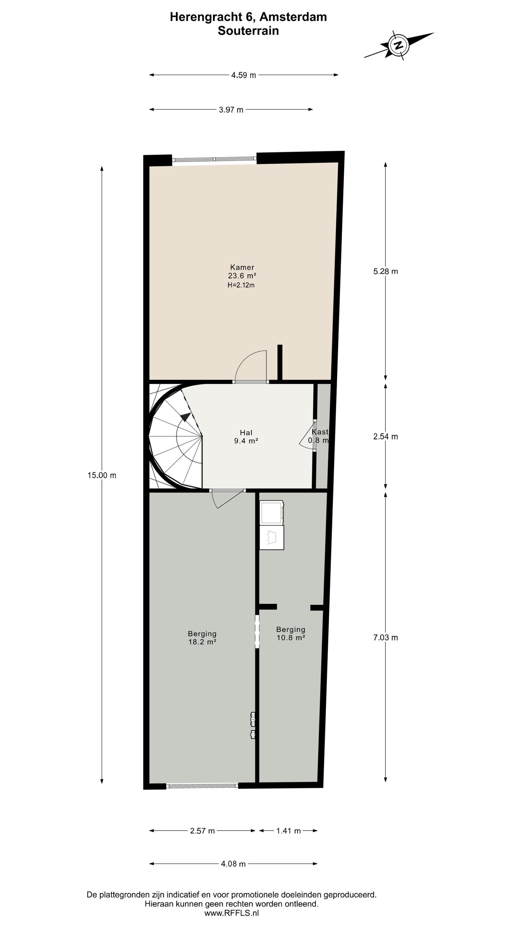
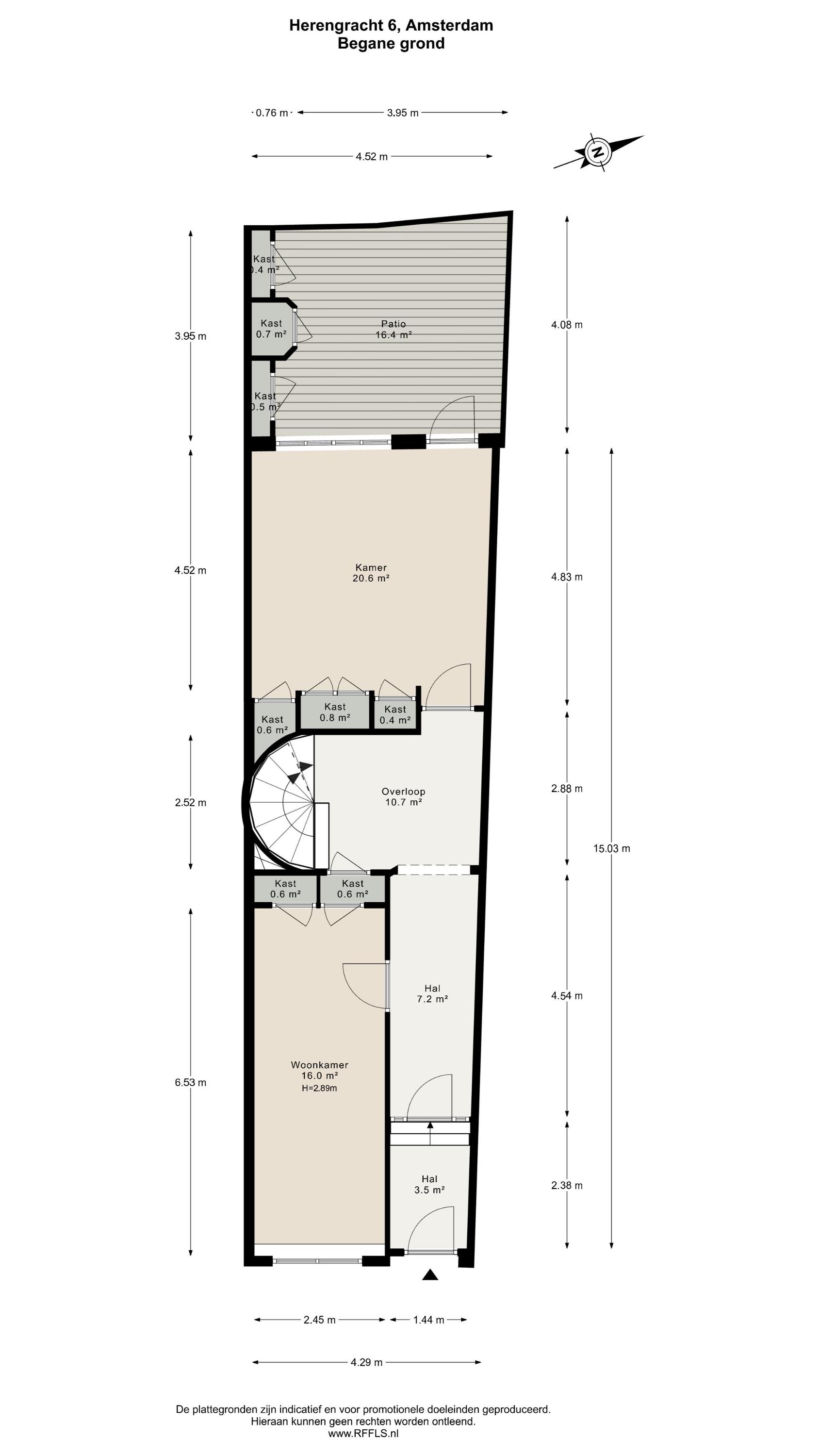
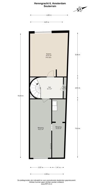
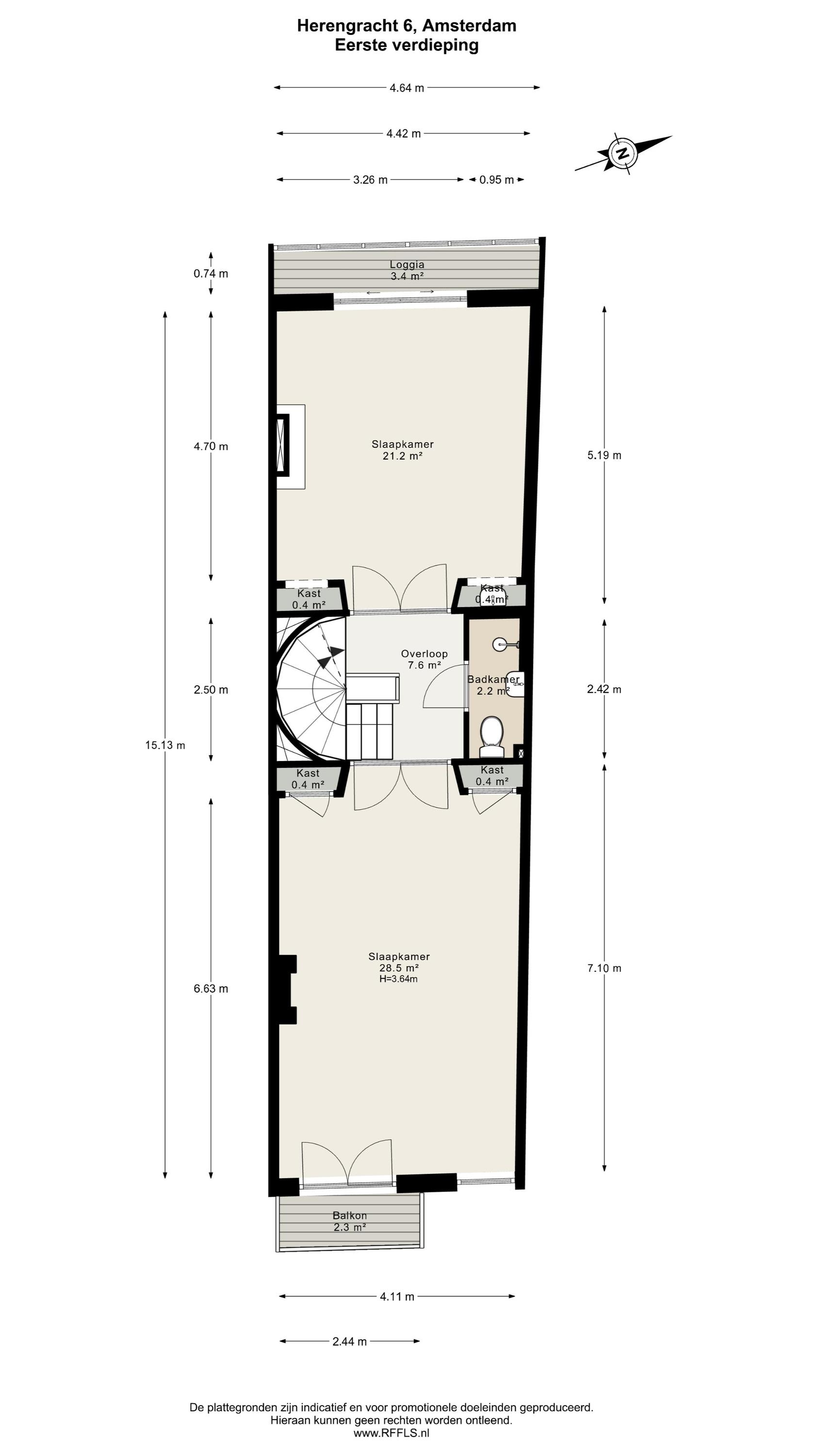
Indeling
Dit statige grachtenpand aan de Herengracht is verdeeld over een souterrain, bel-etage en vier volwaardige woonlagen. Het pand ademt historie, met een klassieke entree, marmeren hal en een fraai trappenhuis dat alle verdiepingen met elkaar verbindt.

Elke verdieping beschikt over ruime kamers met hoge plafonds, originele ornamenten en paneeldeuren. Grote ramen aan zowel de voor- als achterzijde zorgen voor veel lichtinval en bieden karakteristieke uitzichten: aan de voorzijde over de Herengracht en vanaf de bovenste verdiepingen richting de Koepelkerk. Elementen als marmeren schouwen, sierlijke plafondlijsten en vaste kasten zijn op diverse verdiepingen behouden gebleven, waardoor de authentieke uitstraling goed zichtbaar is.

De huidige indeling is flexibel en biedt volop mogelijkheden voor een nieuwe eigenaar. Zo is het denkbaar om de verdiepingen afzonderlijk in te richten als verschillende woonlagen of om het pand te verdelen in meerdere zelfstandige woningen. Ook is een combinatie van wonen en werken goed te realiseren: de onderste verdiepingen lenen zich uitstekend voor een kantoor of praktijk, terwijl de bovenste etages juist rust en privacy bieden.

Dit pand biedt daarmee een unieke kans om een geheel grachtenpand naar eigen wens en idee in te richten, waar wonen en werken moeiteloos gecombineerd kunnen worden. De historische charme in combinatie met de open indeling maakt het een zeldzaam object op een van de meest gewilde plekken van Amsterdam.

Locatie & omgeving
Herengracht 6 bevindt zich in een van de meest bijzondere delen van de Amsterdamse grachtengordel. Volgens het standaardwerk De Grachten van Amsterdam vormt het pand samen met de naastgelegen huizen een belangrijk onderdeel van de monumentale wand tussen de Herenstraat en de Brouwersgracht. Het woonhuis is ontworpen in de stijl van de Hollandse neorenaissance en valt op door de rijk gedetailleerde gevel, de balkons met originele smeedijzeren hekken en de karakteristieke ornamenten. Daarmee sluit het pand naadloos aan bij de hoge stedenbouwkundige en cultuurhistorische waarde van dit deel van de grachtengordel.

Naast de historische waarde biedt de directe omgeving ook volop levendigheid en voorzieningen. In de Jordaan, Haarlemmerbuurt en grachtengordel vindt u een breed scala aan restaurants, bistro’s en koffiezaken. Voor de dagelijkse boodschappen kunt u terecht bij de verschillende supermarkten, bakkers en speciaalzaken in de buurt. Bovendien bevinden zich in de nabije omgeving diverse culturele bezienswaardigheden, zoals het Anne Frank Huis, de Westerkerk en de vele galeries die dit deel van de stad rijk is. Deze mix van historie, cultuur en culinaire adressen maakt het wonen aan de Herengracht bijzonder aantrekkelijk.

Bereikbaarheid
De woning ligt op korte loopafstand van Amsterdam Centraal Station, waardoor trein, metro, tram en bus eenvoudig bereikbaar zijn. Met de fiets bent u in enkele minuten in het hart van de Jordaan, op de Haarlemmerdijk of bij de Noordermarkt. Voor automobilisten zijn de uitvalswegen richting de A10 goed bereikbaar via de Haarlemmer Houttuinen en de Piet Heintunnel.

Bijzonderheden
- Woonoppervlak van ca. 382 m² (gemeten conform NEN2580 meetinstructie);
- Gemeentelijk monumentaal grachtenpand uit 1880;
- Woning verdeeld over zes woonlagen;
- Ruim en lichte woonlagen met plafonds van meer dan 3 meter hoog;
- Volledig naar eigen wens in te richten;
- Rijksbeschermd stadsgezicht;
- UNESCO werelderfgoed;
- Ouderdomsclausule en funderingsclausule van toepassing;
- Gelegen op eigen grond, dus géén erfpacht;
- Oplevering in overleg.

Deze informatie is door ons met de nodige zorgvuldigheid samengesteld. Onzerzijds wordt echter geen enkele aansprakelijkheid aanvaard voor enige onvolledigheid, onjuistheid of anderszins, dan wel de gevolgen daarvan. Alle opgegeven maten en oppervlakten zijn indicatief. Koper heeft zijn eigen onderzoek plicht naar alle zaken die voor hem of haar van belang zijn. Met betrekking tot deze woning is de makelaar adviseur van verkoper. Wij adviseren u een deskundige (NVM-)makelaar in te schakelen die u begeleidt bij het aankoopproces. Indien u specifieke wensen heeft omtrent de woning, adviseren wij u deze tijdig kenbaar te maken aan uw aankopend makelaar en hiernaar zelfstandig onderzoek te (laten) doen. Indien u geen deskundige vertegenwoordiger inschakelt, acht u zich volgens de wet deskundige genoeg om alle zaken die van belang zijn te kunnen overzien. Van toepassing zijn de NVM voorwaarden.

Kenmerken

Overdracht
Vraagprijs
€ 2.850.000 k.k.
Status
beschikbaar
Aanvaarding
in overleg
Bouw
Soort woonhuis
Grachtenpand
Soort bouw
tussenwoning
Bouwjaar
1880
Slaapkamers
5
Badkamers
2
Oppervlakten en inhoud
Woonoppervlakte
382 m2
Overige inpandige ruimte
2 m2
Gebouwgebonden buitenruimte
16 m2
Inhoud
1454 m3
Perceeloppervlakte
92 m2
faciliteiten
Tv kabel
Natuurlijke ventilatie
Aan water
In centrum
Aan vaarwater
Baerz & Co Property Brochure

Brochure

Video’s

Heeren Makelaars

Stadionweg 75
1077 SE Amsterdam

info@heerenmakelaars.nl
+31 204702255

www.heerenmakelaars.nl

Informatie / bezichtigingsaanvraag

Sander Bovenkerk profile image
Sander Bovenkerk
Real Estate Agent

Een luxe woning kopen in Amsterdam

Amsterdam biedt een kosmopolitische levensstijl, gekenmerkt door erfgoed, verbondenheid en discrete luxe. Bewoners profiteren van een sterke internationale gemeenschap, hoogwaardige dienstverlening en een bruisende cultuur. De blijvende aantrekkingskracht van de stad schuilt in de combinatie van geschiedenis, verfijning en een vooruitstrevende geest.