Op een unieke locatie aan de Rotte, direct grenzend aan het recreatiegebied de Rottemeren en Het Lage Bergse Bos, staat deze vrijstaande eengezinswoning met garage en schitterend uitzicht aan zowel de voor- als achterzijde.
In de omgeving zijn volop recreatiemogelijkheden: je kunt heerlijk wandelen, fietsen, paardrijden of skaten langs de Rotte en door het Lage en Hoge Bergse Bos. Ook waterliefhebbers komen hier volledig aan hun trekken: varen op de Rotte is mogelijk, en een eigen aanlegsteiger kan desgewenst worden gerealiseerd. De skibaan, het mountainbikeparcours, de Zevenhuizerplas, Outdoor Valley, de Willem-Alexander Roeibaan, twee kinderboerderijen en diverse horecagelegenheden liggen allemaal in de buurt. Voor de dagelijkse boodschappen kun je terecht in Bergschenhoek, Ommoord (Hesseplaats) of Hillegersberg.
Werkelijk een prachtige locatie nabij de stad maar toch dat buitengevoel!
Pluspunten: 
+ Vrijstaande eengezinswoning
+ Prachtige ligging nabij de Rottemeren
+ Mogelijkheid voor een eigen aanlegsteiger 
+ Eigen oprit met garage
+ Oplevering in overleg, conform Lijst van Zaken.
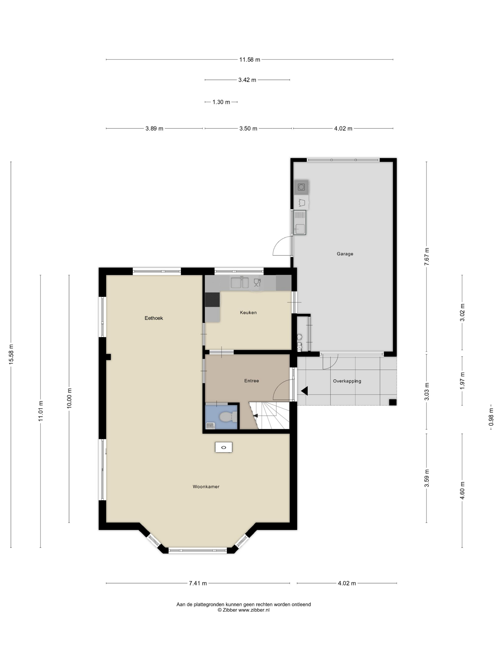
Indeling
Ruime oprit met plek voor meerdere auto’s en toegang tot de garage.
Begane grond:
Entree, hal met toilet, trapopgang naar de eerste verdieping en toegang tot de woonkamer en keuken.
De royale woonkamer aan de voorzijde is heerlijk licht dankzij de grote raampartijen en is voorzien van een plavuizen vloer met vloerverwarming. Via de schuifpui loop je zo de tuin in. De eetkamer sluit aan op de keuken, die is uitgevoerd in L-opstelling en voorzien van diverse inbouwapparatuur zoals een vaatwasser, koel-vriescombinatie, keramische kookplaat, afzuigkap en spoelbak met mengkraan.
Via de keuken bereik je de inpandige garage. Hier vind je de aansluitingen voor de wasmachine en droger en de meterkast. Vanuit de garage is er ook toegang tot de achtertuin.
Tuin:
De ruime en zonnige achtertuin ligt op het noordwesten en biedt een weids uitzicht over het groen en het Lage Bergse Bos. Een ideale plek voor lange zomeravonden, een borrel met vrienden of gewoon om lekker tot rust te komen.
1e verdieping: 
Ruime overloop met toegang tot alle vertrekken. 
Slaapkamer 1, gelegen aan de voorzijde, met vaste kasten en toegang tot het balkon met prachtig uitzicht over de Rotte.
Slaapkamer 2, ruime kamer aan de achterzijde, waar eenvoudig twee volwaardige slaapkamers van te maken zijn. Vanuit deze kamer is de vliering bereikbaar, waar zich de opstelplaats van de cv-ketel bevindt.
De badkamer is uitgerust met een ligbad, toilet, bidet, douche en wastafel met meubel.
In de koopovereenkomst worden de volgende extra clausules opgenomen:
- Bij deze woning (ouder dan 30 jaar) is de ouderdomsclausule van toepassing.
- Bij deze woning is niet bewonersclausule van toepassing.
Alle verstrekte informatie moet beschouwd worden als een uitnodiging tot het doen van een bod of om in onderhandeling te treden. De teksten en impressies zijn bedoeld om een goede indruk te geven van het object. Aan de inhoud ervan is de grootst mogelijke zorg besteed. Desondanks is alle informatie nadrukkelijk onder voorbehoud. Er kunnen geen rechten worden ontleend aan deze woninginformatie.
Koopovereenkomst pas rechtsgeldig na ondertekening:
Een mondelinge overeenstemming tussen de particuliere verkoper en de particuliere koper is niet rechtsgeldig. Met andere woorden: er is geen koop. Er is pas sprake van een rechtsgeldige koop als de particuliere verkoper en de particuliere koper de koopovereenkomst hebben ondertekend. Dit vloeit voort uit artikel 7:2 Burgerlijk Wetboek. Een bevestiging van de mondelinge overeenstemming per e-mail of een toegestuurd concept van de koopovereenkomst wordt overigens niet gezien als een 'ondertekende koopovereenkomst'.
Toelichtingsclausule Meetinstructie:
De woning is conform de Branchebrede Meetinstructie (BBMI) opgemeten. De Meetinstructie is bedoeld om een meer eenduidige manier van meten toe te passen voor het geven van een indicatie van de gebruiksoppervlakte. De Meetinstructie sluit verschillen in meetuitkomsten niet volledig uit, door bijvoorbeeld interpretatieverschillen, afrondingen of beperkingen bij het uitvoeren van de meting.
Wij zijn de makelaar van verkoper. Wij adviseren je jouw eigen makelaar mee te nemen voor jouw belangenbehartiging bij de aankoop van jouw toekomstige huis!