Baerz & Co is een landelijk samenwerkingsverband van zorgvuldig geselecteerde boutique luxury makelaars. Samen vormen wij één netwerk, met één gedeeld aanbod. De woningen die u op onze website ziet, zijn afkomstig van alle aangesloten kantoren binnen Baerz & Co. Daardoor is niet ieder object rechtstreeks door ons kantoor in verkoop, maar door een gespecialiseerde collega binnen ons netwerk. Heeft u een woning gevonden die u aanspreekt en wilt u meer informatie? Dan brengen wij u graag persoonlijk in contact met de betreffende verkoopmakelaar, zodat u direct en zorgvuldig wordt begeleid.

HARLINGEN
Franekereind 15 - 8861 AA
Nederland

Sander Bovenkerk profile image
Sander Bovenkerk
Real Estate Agent
€775.000 k.k.
Woonoppervlakte
469m2
Perceeloppervlakte
210m2
Slaapkamers
5

Omschrijving

Aan één van de oudste grachten in het historische centrum van Harlingen staat dit indrukwekkende Rijksmonument, in de stad ook wel bekend als “Het Tempelhuys”. Het pand verheft zich fier boven de omringende daken en ademt nog altijd de maritieme historie van deze levendige havenplaats. In de zomer vormt het Franekereind een charmant decor waar bewoners, reizigers, zeelieden en liefhebbers van het Waddengebied elkaar ontmoeten.
Dit diepe grachtenpand met twee volwaardige woonlagen, een logezaal, kapel, kelder en imposante zolderetage onder een prachtig zichtbaar gebint, is een architectonisch icoon. Het vertelt een verhaal dat terug reikt tot de 17e eeuw; een geschiedenis van handel, welstand, spiritualiteit en cultuur. De versierde voordeur in rocaillestijl, de vensters met roeden, gevelstenen met fries en de gebeeldhouwde stoeppalen zijn tastbare getuigen van het rijke verleden. Het schilderachtige straatbeeld met bankjes voor de historische gevels vormt het perfecte decor voor wonen aan het Franekereind: gemoedelijk, stijlvol, sfeervol en op loopafstand van alle voorzieningen.

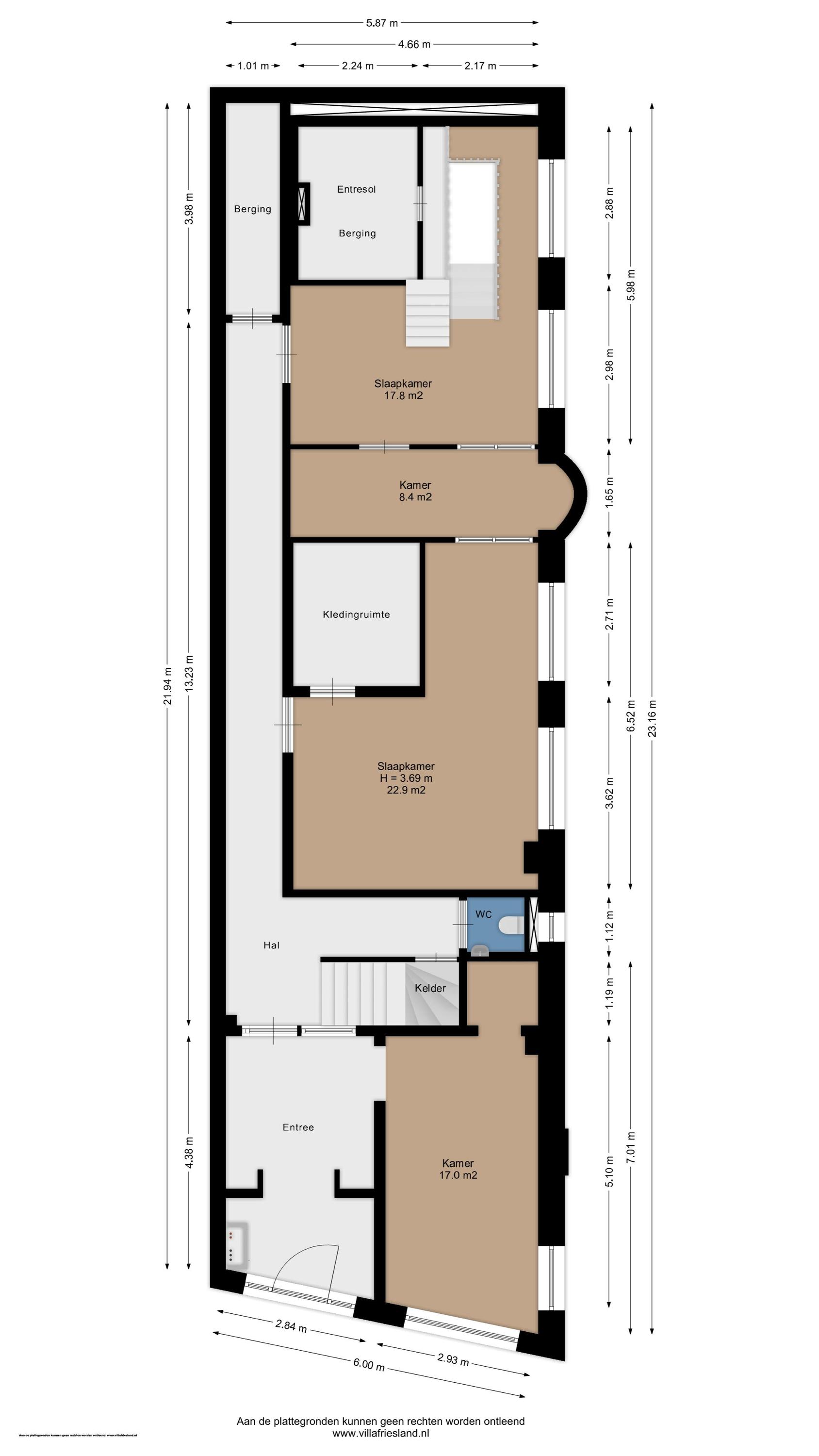
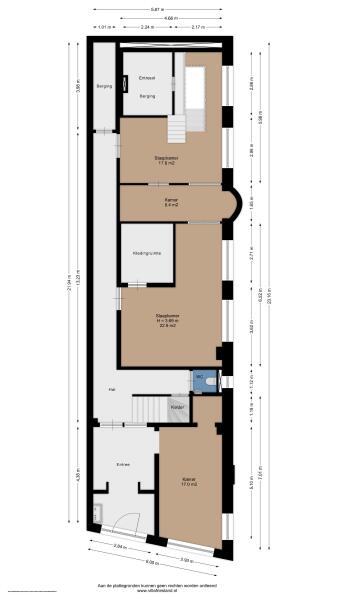
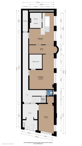
BEGANE GROND
Achter de monumentale voordeur ontvouwt zich een statige hal met marmeren vloer en vestibule. De lange gang geeft toegang tot drie royale kamers, een inpandige berging en de originele brede bordestrap.
De voorste kamer, momenteel in gebruik als galeriewinkel, geniet van een prachtig zicht over de gracht dankzij de hoekvensters.
De middelste kamer is ingericht als slaapkamer en beschikt over een ensuite kleedkamer, wastafelmeubel en hoge raampartijen die zorgen voor een bijzondere lichtval.
De achterste kamer, thans praktijkruimte, is speels ingedeeld met een entresol en ondergelegen behandelruimte. Vanuit hier is er toegang tot de “kapel”, een tussenruimte met een originele siernis in de zijgevel.
De inpandige berging is voorzien van elektra. Dankzij de aanwezigheid van twee standleidingen bestaat de mogelijkheid om op deze verdieping een badkamer te realiseren. De kamers worden verwarmd middels radiatoren.
Eerste verdieping
De monumentale trap leidt naar een royale overloop op de eerste verdieping. Aan de voorzijde bevindt zich de sfeervolle woonkeuken, met zicht op de gracht en voldoende ruimte voor een grote eettafel en zithoek.
Aan de andere zijde ligt de imposante logezaal: een hoge, gewelfde ruimte met grote raampartijen en een podium. Een veelzijdige plek die zich uitstekend leent voor bijeenkomsten, atelier, muziek- of yoga studio, exposities, kantoor of aanvullende woonruimte. Deze zaal wordt verwarmd middels een gesloten hete lucht installatie; de overige woonruimte via radiatoren.

TWEEDE VERDIEPING
Via een vaste trap is de tweede verdieping bereikbaar. Hier bevindt zich een sfeervol studio-appartement met complete keuken, bedstee en uitzicht op het Franekereind. Direct naast het appartement ligt de badkamer met wastafel en douche; het toilet is separaat.
Verder is er op deze verdieping een grote multifunctionele ruimte met technische installaties, opstelling voor witgoed, veel bergruimte en een speelse doorkijk naar de hoge logezaal. Verwarming woonruimte via radiatoren.

DERDE VERDIEPING
Een indrukwekkende eeuwenoude houten trap leidt naar de volledige zolderverdieping van 106m2 met plafondhoogte 2.17m, waar het originele gebint en de zware balken prachtig in het zicht zijn. De oude kajuit biedt een fenomenaal uitzicht over Harlingen; aan de achterzijde bevindt zich een moderner dakraam. Deze verdieping heeft uitstekende potentie voor transformatie naar een loftachtige woonruimte.

ZOLDER
Boven de derde (zolder)verdieping is er onder de nok nog een zolder met stahoogte gelegen. Het dak verkeert in goede conditie en is grotendeels gerenoveerd.

KELDER
Onder de begane grond is een droge royale kelder van 20m2 gelegen met een hoogte van 1.50m.

BIJZONDERHEDEN
- sfeervolle centrumlocatie, alle voorzieningen op loopafstand
- ideaal voor wonen/werken (kantoor, galerie, studio, zaalruimte, praktijk, B&B)
- statig Rijksmonument met uitzonderlijk veel mogelijkheden
- circa 470 m² woonoppervlakte
- parkeren (5 vergunningen) direct voor de deur
- Amsterdam binnen één uur bereikbaar

HARLINGEN
Harlingen – ook wel het “klein Amsterdam” van Friesland – is met ruim zeshonderd monumenten een van de mooiste havenplaatsen van het Noorden. Het is wonen aan de Waddenzee, omringd door unieke natuur, op korte afstand van de eilanden en met alle voorzieningen binnen handbereik: sfeervolle restaurants, winkels, scholen, medische voorzieningen en een treinstation.
De stad kent een rijke geschiedenis die teruggaat tot de 13e eeuw. De nautische sfeer is nog altijd voelbaar in het karakteristieke havengebied, waar in de zomer een levendige dynamiek heerst van toeristen, zeelieden en Waddenliefhebbers. Dankzij de ligging boven de Afsluitdijk is Amsterdam binnen een uur bereikbaar.

DISCLAIMER
Deze informatie is met zorg samengesteld en deels gebaseerd op gegevens van verkoper en/of derden. Hoewel gestreefd wordt naar een zo accuraat mogelijke weergave, kunnen aan de inhoud – waaronder teksten, bijlagen, plattegronden en maatvoering – geen rechten worden ontleend. Oppervlakten zijn gemeten volgens de NEN 2580-meetinstructie; afwijkingen zijn mogelijk. Deze aanbieding is vrijblijvend en bedoeld als uitnodiging tot het doen van een bod. Voor objecten ouder dan 25 jaar worden standaard ouderdoms- en asbestclausules opgenomen in de koopakte.

Kenmerken

Overdracht
Vraagprijs
€ 775.000 k.k.
Status
verkocht onder voorbehoud
Aanvaarding
in overleg
Bouw
Soort woonhuis
Grachtenpand
Soort bouw
halfvrijstaande woning
Bouwjaar
1651
Soort dak
schilddak
Slaapkamers
5
Badkamers
0
Oppervlakten en inhoud
Woonoppervlakte
469 m2
Overige inpandige ruimte
22 m2
Inhoud
2041 m3
Perceeloppervlakte
210 m2
faciliteiten
Rookkanaal
Dakraam
Natuurlijke ventilatie
Aan water
Aan rustige weg
In centrum
Baerz & Co Property Brochure

Brochure

Video’s

Plattegronden

Heeren Makelaars

Stadionweg 75
1077 SE Amsterdam

info@heerenmakelaars.nl
+31 204702255

www.heerenmakelaars.nl

Informatie / bezichtigingsaanvraag

Sander Bovenkerk profile image
Sander Bovenkerk
Real Estate Agent

Een luxe woning kopen in Harlingen

Harlingen biedt veeleisende kopers een perfecte mix van erfgoed, culturele charme en exclusiviteit aan het water. De gemeenschap waardeert privacy en persoonlijke service, met een internationale aantrekkingskracht geworteld in authenticiteit en een verfijnde levensstijl.