Baerz & Co is een landelijk samenwerkingsverband van zorgvuldig geselecteerde boutique luxury makelaars. Samen vormen wij één netwerk, met één gedeeld aanbod. De woningen die u op onze website ziet, zijn afkomstig van alle aangesloten kantoren binnen Baerz & Co. Daardoor is niet ieder object rechtstreeks door ons kantoor in verkoop, maar door een gespecialiseerde collega binnen ons netwerk. Heeft u een woning gevonden die u aanspreekt en wilt u meer informatie? Dan brengen wij u graag persoonlijk in contact met de betreffende verkoopmakelaar, zodat u direct en zorgvuldig wordt begeleid.

HERTEN
Drususberg 15 - 6049 MA
Nederland

Sander Bovenkerk profile image
Sander Bovenkerk
Real Estate Agent
€1.860.000 k.k.
Woonoppervlakte
266m2
Perceeloppervlakte
1051m2
Slaapkamers
5

Omschrijving

JACK FRENKEN EXCLUSIEF:
Wonen aan het water, voor altijd een vakantiegevoel - Drususberg 15 Herten

Dit is Oolderveste Aan 't Water!
Water omsluit een idyllische plek om te wonen. Woorden als 'uniek' en 'bijzonder' doen deze plek tekort. Vanuit je overdekte veranda kijk je over de Oolderplas; een schilderij dat nooit verveelt. Wonen aan het water is een gevoel!

Deze schitterende, vrijstaande villa prijkt trots op de kop van het schiereiland. De bijzondere architectuur, de zeer royale kavel en het uitzicht op de Oolderplas verleiden. Zit je straks op je overdekte veranda en zie je op een warme zomeravond de zon ondergaan?

De globale indeling is als volgt:

Entree
Welkom thuis! Treedt de woning binnen in de ontvangsthal waar zich de meterkast, het royale toilet, de trapopgang naar de eerste verdieping en de doorloop naar de living bevindt.

Living
De living ligt aan de voorzijde van het huis. Door de diepe voortuin en grote afstand tot de straat, zit je hier ook heerlijk rustig en vrij. Door de grote raampartijen aan zowel de voor-/ als achterkant van de woning komt er een zee van licht binnen.
De eyecatcher in deze ruimte is de royale gashaard, welke op een luxe manier dient als roomdevider tussen de living en de eetkamer.
Vanuit de eetkamer kijk je uit over het water en kun je genieten van een geweldig uitzicht.

Leefkeuken
De indeling van deze grote villa is praktisch, sfeervol en gericht op een Bourgondische leefstijl. De grote leefkeuken met eiland is het levendige hart van het huis. De luxe keuken is voorzien van een sfeervol design met marmeren werkblad.
Aan de kopse kant van het eiland is een barretje gecreëerd. Hier geniet je in de ochtend van een kopje koffie en de krant of maken de kinderen huiswerk terwijl je aan het koken bent. Aan alle gemakken is gedacht, zo is er een quooker met warm en koud water, een Bora inductiekookplaat, een vaatwasser, koelkast, diepvries en wijnklimaatkast van Miele en een oven en magnetron van AEG.
De bijkeuken is voorzien van de witgoedaansluitingen en heeft een deur naar buiten, waardoor je niet met de boodschappen door het huis hoeft.

De hele benedenverdieping is voorzien van een elegante PVC vloer met vloerverwarming die per ruimte in te stellen is. Tevens tref je beneden op verschillende plekken een Sonos muziekinstallatie.

Veranda/tuin
De overdekte veranda is het verlengstuk van je huis en leent zich perfect voor avondvullende etentjes. Zelfs als het al wat kouder wordt kun je hier fijn zitten, eventueel met een heater.

Vanuit de veranda loop je zo de (aan te leggen) tuin in. Ervaar hier een echt vakantiegevoel door het adembenemende uitzicht. Kies zelf voor een tuinontwerp en maak het plaatje compleet!
In de tuin bevindt zich nog een vrijstaande buitenberging/garage.

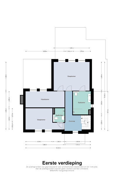
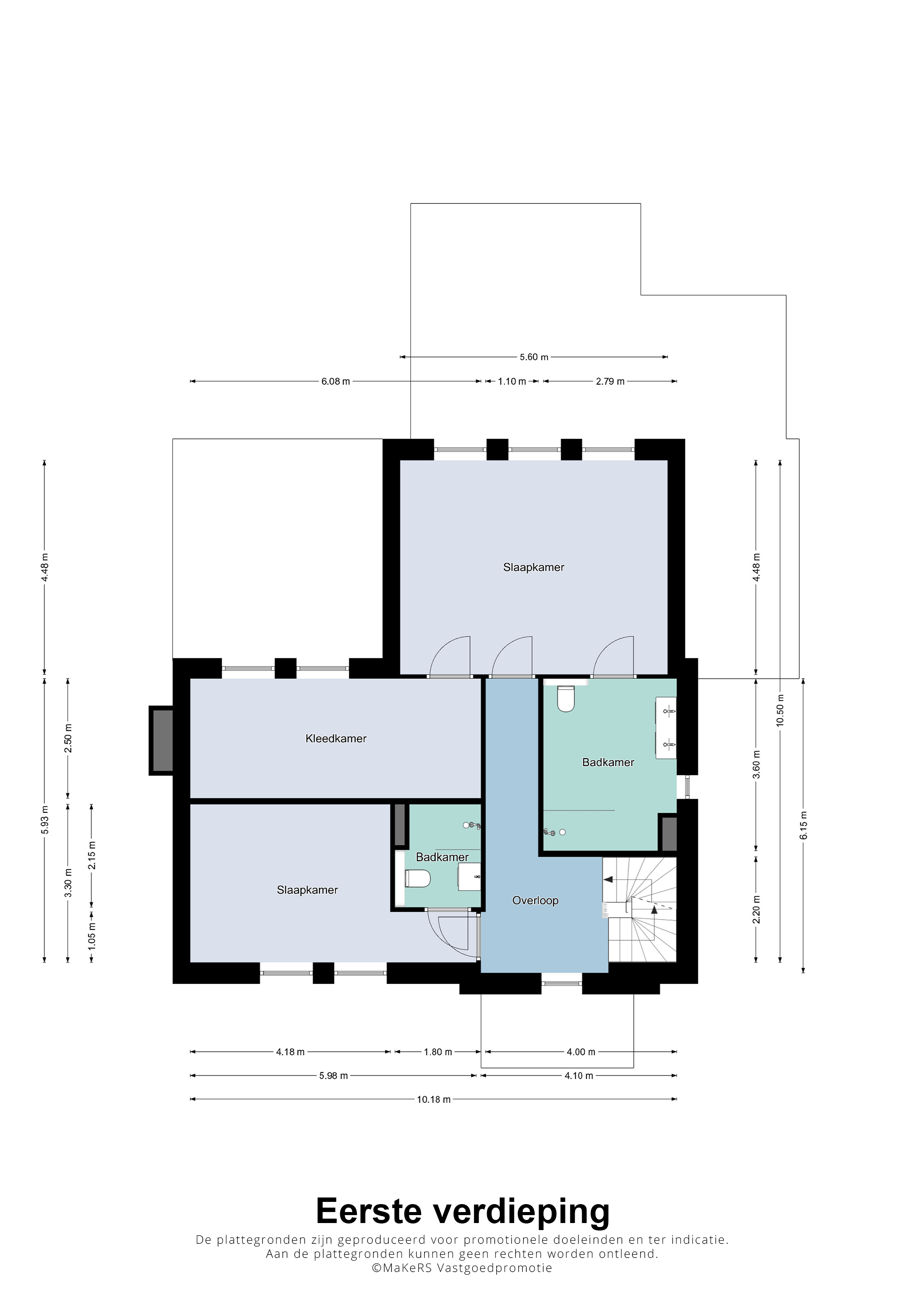
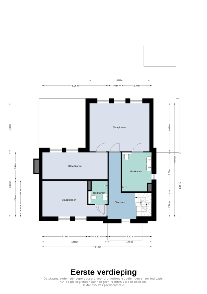
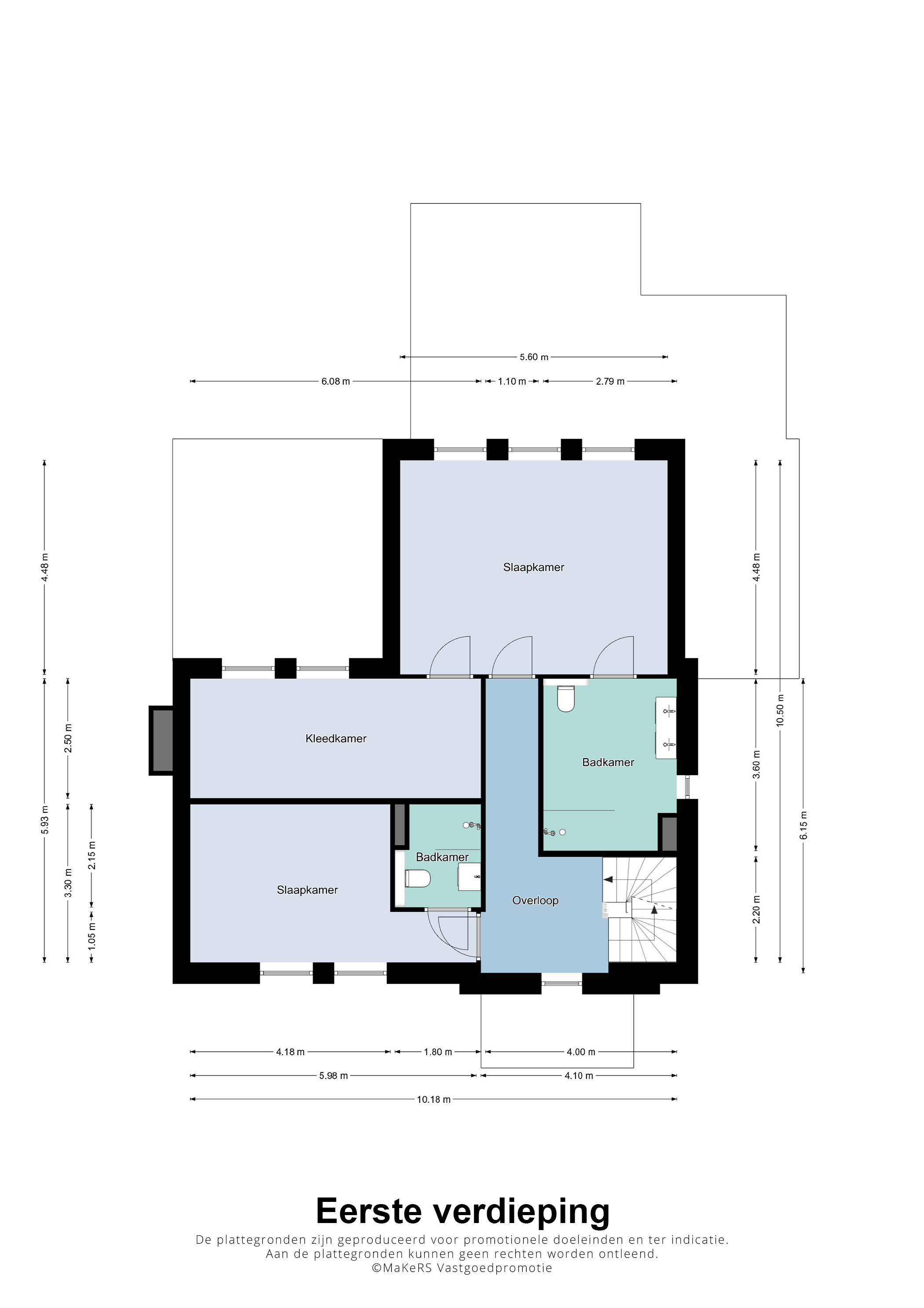
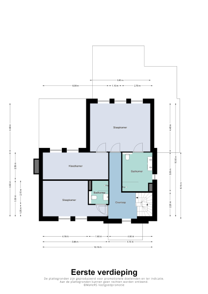
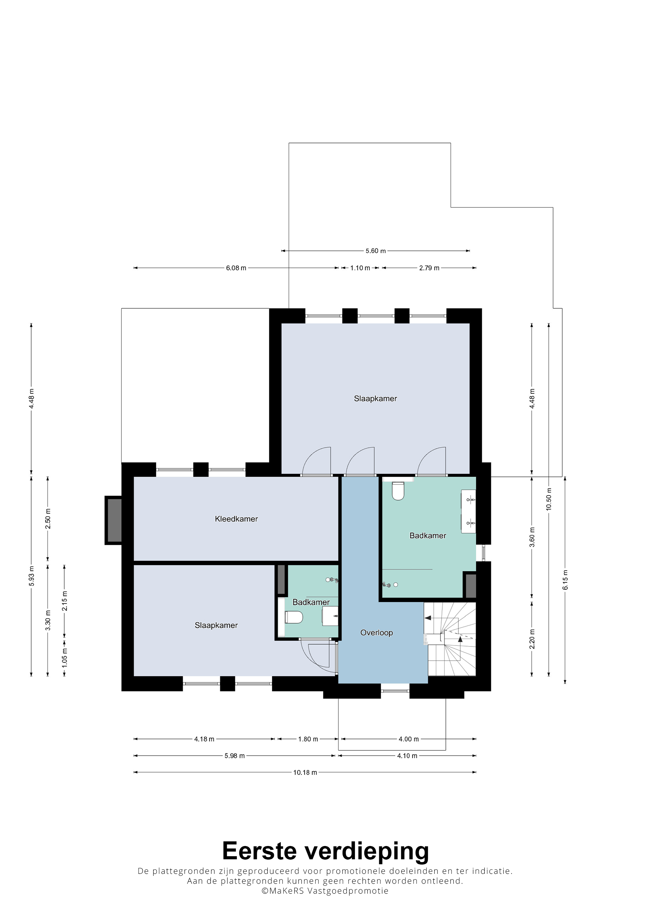
De slaapvertrekken
Via de overloop, met daglicht, kom je in de 2 ruime slaapkamers beide met een eigen badkamer.
De master bedroom is gelegen aan de achterkant van de woning. Hier wordt je heerlijk wakker met eveneens het prachtige uitzicht over het water. de Master bedroom heeft een eigen badkamer met inloopdouche, ligbad en brede, dubbele wastafel. Tevens is er toegang tot de zeer royale en luxe walk-in closet.
De tweede slaapkamer is gelegen aan de voorkant van de woning en heeft eveneens een eigen badkamer. Deze is voorzien van een inloopdouche, wastafel en toilet.

Op de L-vormige tweede verdieping met hoge plafonds en een dakkapel tref je slaapkamer 3 en 4. Beide kamers zijn ruim en kijken uit over het water. Ook is hier de derde badkamer te vinden welke beschikt over een inloopdouche, wastafel en toilet. Als laatste tref je hier de technische ruimte waar zich eveneens witgoedaansluitingen bevinden.

Bijzonderheden:
- De woning is (deels) gemeubileerd
- airconditioning in de woonkamer en in alle slaapkamers
- Sonos geluidsinstallatie op de begane grond
- Vloerverwarming per ruimte regelbaar
- Vrijstaande garage/berging
- Adembenemend en uniek uitzicht

Plan een bezichtiging en ervaar de luxe, het uitzicht en de vrijheid van deze prachtige en instapklare villa!

Kenmerken

Zonnepanelen
Air conditioning
Overdracht
Vraagprijs
€ 1.860.000 k.k.
Status
beschikbaar
Aanvaarding
in overleg
Bouw
Soort woonhuis
Villa
Soort bouw
vrijstaande woning
Bouwjaar
2024
Energieklasse
A+++
Soort dak
samengesteld dak
Slaapkamers
5
Badkamers
3
Oppervlakten en inhoud
Woonoppervlakte
266 m2
Overige inpandige ruimte
0 m2
Gebouwgebonden buitenruimte
38 m2
Externe bergruimte
24 m2
Inhoud
1138 m3
Perceeloppervlakte
1051 m2
faciliteiten
Tv kabel
Airconditioning
Schuifpui
Glasvezel kabel
Zonnepanelen
Balansventilatie
Aan water
In woonwijk
Vrij uitzicht
Aan vaarwater
Landelijk gelegen
Baerz & Co Property Brochure

Brochure

Video’s

Plattegronden

Heeren Makelaars

Stadionweg 75
1077 SE Amsterdam

info@heerenmakelaars.nl
+31 204702255

www.heerenmakelaars.nl

Informatie / bezichtigingsaanvraag

Sander Bovenkerk profile image
Sander Bovenkerk
Real Estate Agent

Een luxe woning kopen in Herten

Herten biedt verfijnd wonen in een rustige omgeving, met een gastvrije gemeenschap en deskundige begeleiding. Internationale bereikbaarheid, culturele rijkdom en discrete luxe trekken veeleisende investeerders en bewoners.