Baerz & Co is een landelijk samenwerkingsverband van zorgvuldig geselecteerde boutique luxury makelaars. Samen vormen wij één netwerk, met één gedeeld aanbod. De woningen die u op onze website ziet, zijn afkomstig van alle aangesloten kantoren binnen Baerz & Co. Daardoor is niet ieder object rechtstreeks door ons kantoor in verkoop, maar door een gespecialiseerde collega binnen ons netwerk. Heeft u een woning gevonden die u aanspreekt en wilt u meer informatie? Dan brengen wij u graag persoonlijk in contact met de betreffende verkoopmakelaar, zodat u direct en zorgvuldig wordt begeleid.

HOOFDDORP
Statendam 4 - 2134 WX
Nederland

Sander Bovenkerk profile image
Sander Bovenkerk
Real Estate Agent
€1.690.000 k.k.
Woonoppervlakte
306m2
Perceeloppervlakte
780m2
Slaapkamers
6

Omschrijving

Zeer comfortabele en royale vrijstaande villa op een perceel van 780m2 met inpandige dubbele garage en een goed geïsoleerd tuinhuis in dezelfde bouwstijl als het woonhuis. Prachtige ligging op één van de eilanden van de villawijk “Den Hout”, een goed bereikbare wijk aan de rand van Hoofddorp met snelle verbinding naar Schiphol, de Zuidas en Den Haag.
In 2003 is deze bijzondere villa op (traditionele wijze) gebouwd met hoogwaardige materialen. De villa heeft een voortuin met eigen oprit die toegang biedt tot de royale en inpandige garage en aan de achterzijde is een fraai aangelegde achtertuin met diverse terrassen en een deels overdekte veranda met terrasverwarming.
Dit gezinshuis bij uitstek (6 slaapkamers en 2 badkamers) heeft een efficiënte indeling en werkelijk alle ruimtes in het huis zijn ruim bemeten. Op de begane grond, aan de achterzijde van het huis, is over de gehele breedte een zeer ruime woonkeuken, die net als de zitkamer, een sfeervolle plek biedt voor het hele gezin. Dit in combinatie met de vele ruime kamers op de verdiepingen, maakt het tot een fantastisch familiehuis.
Bouwjaar: 2003. Woonoppervlakte: 307m². Inhoud: 1185m³. Perceel: 780m².

Indeling:
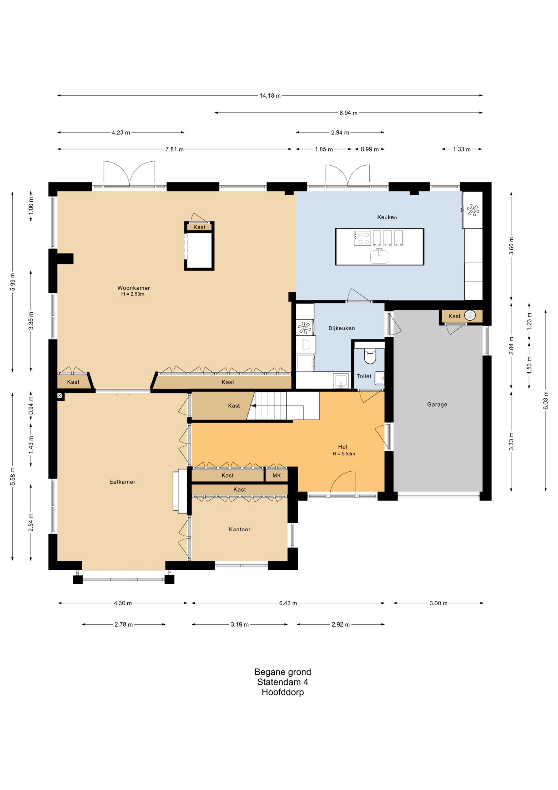
Begane grond: Entree, grote L-vormige hal met garderobekast en wc. Vanuit de hal is toegang tot de garage aan de rechterzijde en toegang tot de woonkamer aan de linkerzijde. Aan de voorzijde van het huis is de eetkamer en een kantoorruimte. Via de schuifdeuren van de eetkamer bereik je de achterzijde met een sfeervolle zitkamer met (gas-) open haard, een brede kastenwand en dubbele openslaande deuren naar de achtertuin. De royale moderne SieMatic woonkeuken staat in open verbinding met de zitkamer en heeft een groot kookeiland met o.a. een ingebouwde teppanyaki plaat en een inductie-wok. Er is een wand met diverse moderne keukenapparatuur. In de bijkeuken, bereikbaar via de garage en de keuken, is de wasmachine aansluiting en een keukenblok met spoelbak. De dubbele openslaande deuren geven toegang tot de prachtige, brede tuin met een -deels- overdekt terras, meerdere zitmogelijkheden en een stijlvol tuinhuis..

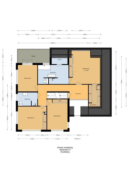
1e Verdieping: Overloop met toegang tot 4 ruime en lichte slaapkamers en twee moderne badkamers. De royale ouderslaapkamer ligt aan de achterzijde en geeft toegang tot de inloopkast en de badkamer met bad, inloopdouche, 2e wc, dubbele wasbak en een sauna. De 2e badkamer is voorzien van een douche, 3e wc en een wastafel. De 2e slaapkamer aan de achterzijde van de woning geeft via openslaande deuren toegang tot het dakterras.

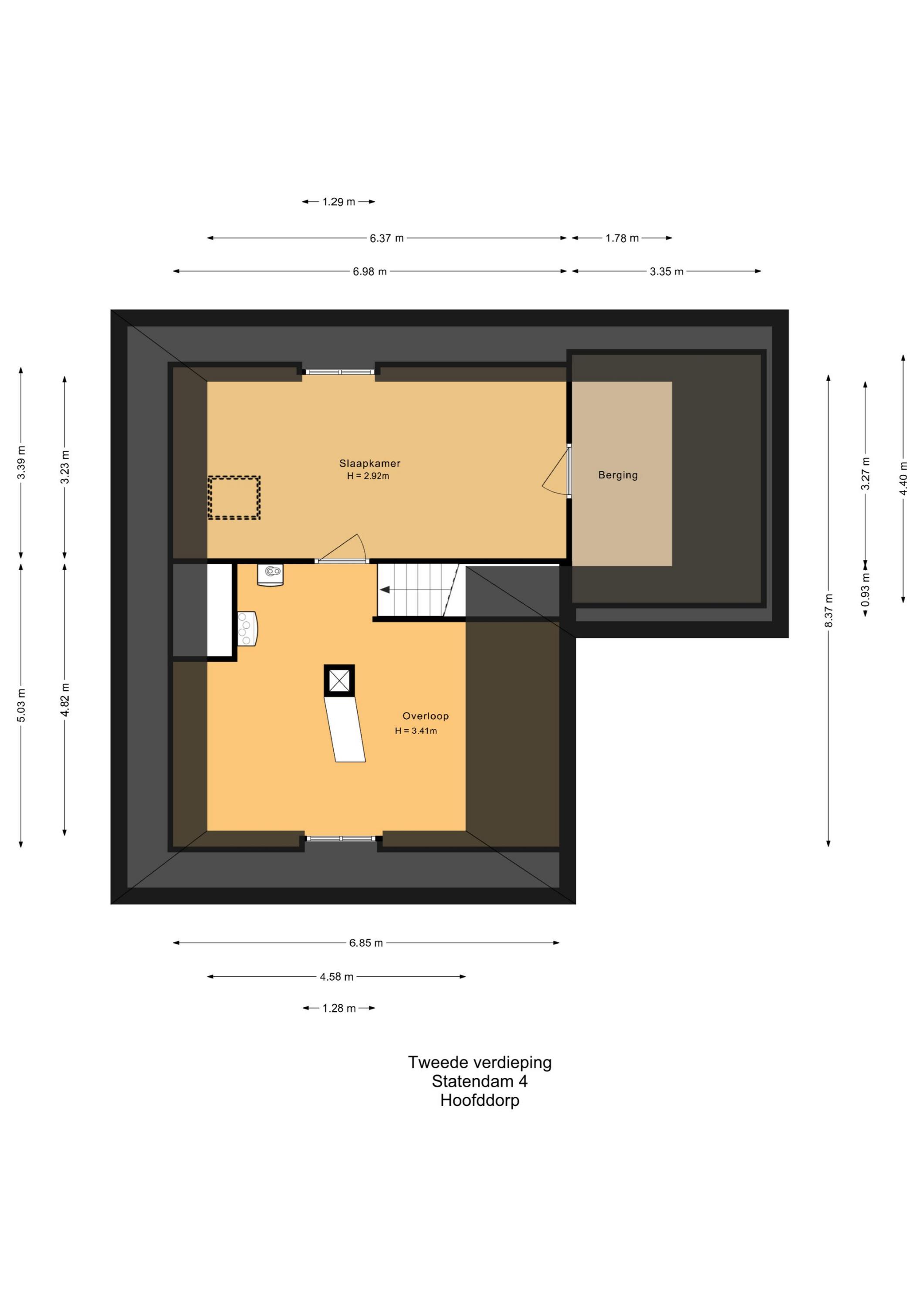
2e verdieping: De multifunctionele zolderruimte, momenteel dienst doende als speelruimte, toegang tot 1 slaapkamer. Beide vertrekken zijn voorzien van een dakkapel. De slaapkamer geeft toegang tot een bergruimte.
· Gezinshuis met A-label: 6 slaapkamers en 2 badkamers!
. Meerdere basisscholen ( ook internationale) en middelbare scholen ( ook Engelstalig) op
loopafstand.
. Alarmsysteem aanwezig
· Mogelijkheid voor kantoor aan huis
. Laadpaal voor elektrische auto aanwezig
· Vrijstaand geïsoleerd tuinhuis, met stromend water en verwarming, geschikt voor bijvoorbeeld
werken aan huis
· CV installatie: 2024
· Ideale locatie: aan de rand Hoofddorp en op korte afstand van Heemstede, Schiphol,
uitvalswegen naar Amsterdam en centrum Hoofddorp

Kenmerken

Alarm system
Overdracht
Vraagprijs
€ 1.690.000 k.k.
Status
beschikbaar
Aanvaarding
in overleg
Bouw
Soort woonhuis
Villa
Soort bouw
vrijstaande woning
Bouwjaar
2003
Energieklasse
A
Soort dak
zadeldak
Slaapkamers
6
Badkamers
2
Oppervlakten en inhoud
Woonoppervlakte
306 m2
Overige inpandige ruimte
18 m2
Gebouwgebonden buitenruimte
28 m2
Externe bergruimte
15 m2
Inhoud
1185 m3
Perceeloppervlakte
780 m2
faciliteiten
Alarminstallatie
Rookkanaal
Sauna
Aan rustige weg
In woonwijk
Baerz & Co Property Brochure

Brochure

Video’s

360 Panorama’s

360°
360 Panorama - Statendam 4
360°
360 Panorama - Statendam 4
360°
360 Panorama - Statendam 4
360°
360 Panorama - Statendam 4
360°
360 Panorama - Statendam 4
360°
360 Panorama - Statendam 4
360°
360 Panorama - Statendam 4
360°
360 Panorama - Statendam 4
360°
360 Panorama - Statendam 4
360°
360 Panorama - Statendam 4
360°
360 Panorama - Statendam 4
360°
360 Panorama - Statendam 4
360°
360 Panorama - Statendam 4

Plattegronden

Heeren Makelaars

Stadionweg 75
1077 SE Amsterdam

info@heerenmakelaars.nl
+31 204702255

www.heerenmakelaars.nl

Informatie / bezichtigingsaanvraag

Sander Bovenkerk profile image
Sander Bovenkerk
Real Estate Agent

Een luxe woning kopen in Hoofddorp

Hoofddorp combineert internationale voorzieningen, rustige buurten en uitstekende verbindingen; ideaal voor wie wereldwijd georiënteerd is en dagelijks comfort waardeert.