Ons kantoor is lid van Baerz & Co Luxury Homes; een internationaal platform dat exclusieve woningmakelaars met elkaar verbindt. Neem contact op met ons secretariaat voor meer informatie over het landelijke aanbod, waarvan u hieronder een selectie kunt bekijken.

LEIDEN
Dwars Koornbrugsteeg 8 - 2311 EL
Nederland

Michiel de Jong RM profile image
Michiel de Jong RM
NVM Register Makelaar - Partner
€1.375.000 k.k.
Woonoppervlakte
332m2
Perceeloppervlakte
204m2
Slaapkamers
8

Omschrijving

Top woning op een toplocatie met een prachtig uitzicht!

In hartje centrum Leiden vinden we dit prachtige monument. Oorspronkelijk bestaat de woning uit twee voorhuizen met uitzicht op de Rijn en een achterhuis met ingang aan de steeg. De huidige eigenaren hebben er één geheel van hebben gemaakt, waarmee deze woning wel zeer veel mogelijkheden biedt. Niet alleen qua woonoppervlak, maar ook qua indeling:

- Er zijn maar liefst 7 slaapkamers, waarvan 5 met elk hun eigen badkamer. Geen last in de ochtend van rijen voor de douche en ook gasten die komen overnachten kunnen 's ochtends hun eigen gang gaan.

- Veel buitenruimte, een schaars goed in de binnenstad. Naast het ruime dakterras aan de woonkeuken zijn er zelfs nóg twee dakterrassen aanwezig.

- Een Walhalla voor liefhebbers van eten en koken. Niet alleen door de zeer ruime woonkeuken en de volwaardige tweede keuken. Maar vooral ook door de locatie: slager, (Franse) bakker, toko, kaaswinkel, kookwinkel, wijnwinkels en nog veel meer liggen op loopafstand. En nog belangrijker: op woensdag en zaterdag is er markt voor de deur!

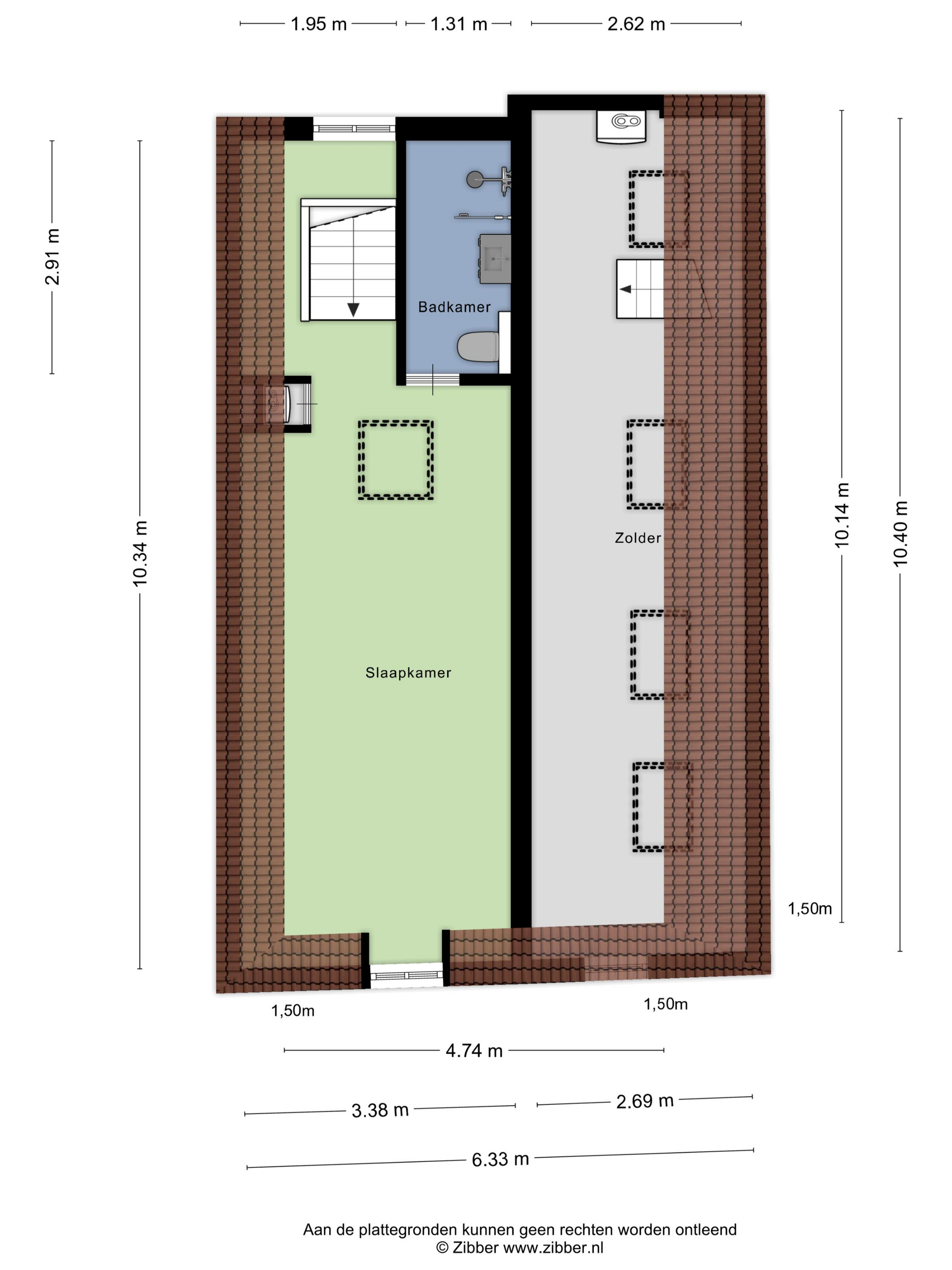
- (Heel) veel bergruimte. Niet alleen is er een souterrain welke nu als werkplaats is ingericht, maar ook nog een kelder. En dan is er ook nog een zeer ruime bergzolder. Dit zijn nog extra meters bovenop de 332 m2 woonoppervlak.

De woning is groot met ruime kamers, hoge plafonds en veel lichtinval, maar zodanig ingedeeld dat elke ruimte huiselijk voelt. Je moet er wel even je weg vinden, maar dit maakt de woning juist zo leuk en meer dan de moeite waard om zelf te komen ontdekken.

BIJZONDERHEDEN

- Rijksmonument (subsidiemogelijkheden!)
- Beschermd stadsgezicht
- Ouderdomsclausule van toepassing
- Bouwtechnische keuring aanwezig
- De woning zal worden omgezet in één appartementsrecht middels een Splitsingsakte

Ontdek Leiden met Baerz, Uw Vertrouwde Personal Property Finder & Advisor

Navigeren in de Leidse markt vraagt om diepgaande kennis van lokale tradities, regelgeving en discrete off-market mogelijkheden. Voorname adviseurs geven toegang tot exclusieve portefeuilles, onderhandelen deskundig en bieden integrale begeleiding bij het structureren van transacties. Hun vermogen om trends te duiden, schaarse kansen te herkennen en belangen te beschermen garandeert strategisch voordeel en rust tijdens het gehele aankooptraject.

Kenmerken

Overdracht
Vraagprijs
€ 1.375.000 k.k.
Status
beschikbaar
Aanvaarding
in overleg
Bouw
Soort woonhuis
Grachtenpand
Soort bouw
tussenwoning
Bouwjaar
1650
Soort dak
samengesteld dak
Slaapkamers
8
Badkamers
5
Oppervlakten en inhoud
Woonoppervlakte
332 m2
Overige inpandige ruimte
49 m2
Gebouwgebonden buitenruimte
26 m2
Inhoud
1400 m3
Perceeloppervlakte
204 m2
faciliteiten
Mechanische ventilatie
Tv kabel
Rookkanaal
Glasvezel kabel
Aan water
In centrum
In woonwijk
Vrij uitzicht
Baerz & Co Property Brochure

Brochure

Video’s

Plattegronden

Graal Makelaardij

Rapenburg 4
2311 EV Leiden

info@graalmakelaardij.nl
+31 (0)71 51 61 000

www.graalmakelaardij.nl

Informatie / bezichtigingsaanvraag

Michiel de Jong RM profile image
Michiel de Jong RM
NVM Register Makelaar - Partner