Ons kantoor is lid van Baerz & Co Luxury Homes; een internationaal platform dat exclusieve woningmakelaars met elkaar verbindt. Neem contact op met ons secretariaat voor meer informatie over het landelijke aanbod, waarvan u hieronder een selectie kunt bekijken.

Herenhuis te koop in ROTTERDAM

ROTTERDAM Jan van Ghestellaan 42 - 3054 CJ Nederland


Joris van Oosten profile image
Joris van Oosten
Real Estate Agent
+31 6 42 19 84 37
info@vanoostenmakelaardij.nl

J.J. Van Oosten Makelaardij BV
Straatweg 225
3054 AG Rotterdam
NETHERLANDS
+31 10 422 11 00
www.vanoostenmakelaardij.nl
info@vanoostenmakelaardij.nl

Woonoppervlakte
257m2
Perceeloppervlakte
536m2
Slaapkamers
5

Omschrijving

Soms stap je als makelaar een huis binnen en ben je op slag verliefd...

En dat is bij dit werkelijk sublieme hoekherenhuis het geval. Superlatieven komen te kort om dit fantastische huis met een, voor deze buurt, ongekend grote achtertuin op waarde te omschrijven. Dit huis heeft alles wat je maar kunt wensen van modern comfort en natuur. Zowel huis als tuin zijn tot in de details uitgedacht en alles klopt. De woonkeuken op tuinniveau is de verbindende schakel tussen de woonverdieping en het souterrain. Vanuit de woonkeuken geven openslaande deuren toegang tot de prachtige achtertuin, die met respect voor de natuur is aangelegd en ontstaan, met 3 terrassen, ingebouwde trampoline, schommel en door de beplanting heel veel privacy geeft.

De prachtige, ruime woonkeuken met hoog plafond en de natuur- en kindvriendelijke achtertuin mogen dan misschien de echte eyecatchers zijn, het huis heeft nog veel meer sterke pluspunten en unique selling points:

Zo is de combinatie van de behouden authentieke details en het toegepaste moderne comfort bijzonder aantrekkelijk en sfeervol.
Het souterrain met o.a. een ruime TV-kamer / chillkamer / speelkamer / slaapkamer en een tweede ruime studeerkamer / werkkamer is ideaal voor gezinnen.
Op de 2 slaapverdiepingen bevinden zich 3 ruime slaapkamers, waarvan 2 met balkon, 1 met een stijlvolle en suite walk-in-closet en 1 met een en suite badkamer.
Relatief eenvoudig zijn er, indien gewenst, op de bovenste etage 1 à 2 extra, ruime slaapkamers te realiseren.

Het woonhuis, dat gebouwd is in 1926, heeft een bijzonder charmante en karakteristieke bouwstijl, beschikt over maar liefst 536 m² eigen grond en is gelegen in een rustige en groene een-richtingslaan. Aan de voorzijde is er ruimte om met 2 auto’s te parkeren op eigen terrein en de mogelijkheid om een oplaadpunt aan te leggen. Het woonhuis is in 2014 volledig verbouwd, waaronder de onderheide uitbouw aan de achterzijde (realisatie woonkeuken) en aan de zijkant, waar zich nu de bijkeuken en de berging / schuur bevindt. De woonkeuken en bijkeuken zijn voorzien van vloerverwarming. In 2014 is de gehele woning aan de geschakelde kant van geluidsisolatie voorzien en van een volledig nieuwe openhaard met een breed rookkanaal. De zijaanbouw beschikt over een eigen entree, ideaal voor dagelijks gebruik (shortcut voor boodschappen naar de keuken, thuiskomen na het sporten of het wandelen met de hond en om de fietsen in te stallen).

De winkels van de Bergse Dorpsstraat zijn op loopafstand bereikbaar, evenals divers openbaar vervoer, het Schiebroeksepark en Bergse Bos en de recreatiegebieden rondom de Rotte. Speelpark Plaswijckpark, Natuurbad Het Zwarte Plasje, jachthavens, verschillende sportverenigingen zoals tennispark Plaswijck '62, hockeyclub Rotterdam en voetbal- en cricketvereniging VOC zijn binnen handbereik. Voorts zijn vele uitstekende scholen en kinderdagverblijven lopend of binnen enkele fiets- en/of autominuten te bereiken. De uitvalswegen A12, A13, A16 en A20 zijn goed bereikbaar.

Indeling
Begane grond:
Entree, lichte en ruime hal met extra ruime toiletruimte met fontein, 2 trapkasten voor jassen en schoenen, mooie brede en lichte woonkamer met een eikenhouten parketvloer, de hoog rendement, hout gestookte openhaard die een heerlijke, behaaglijke warmte uitstraalt. De woonkeuken is gesitueerd in de sfeervolle uitbouw aan de achterzijde. Deze uitbouw is zo tot in perfectie uitgevoerd, dat het aanvoelt alsof het altijd zo geweest is. De gasgestookte haard aan de kop van de eettafel is de sfeermaker voor vele gezellige diners en borrels aan huis. Vanuit de woonkeuken is er toegang tot het souterrain met wasruimte en tot de bijkeuken die gesitueerd is in de zij-aanbouw. Aan de voorzijde bevindt zich de bergfunctie/schuur met toegang tot de straat, ideaal om een mooie (bak-)fiets of scooter binnen te zetten en aan de achterzijde de functie bijkeuken met hoge opbergkasten, een wastafelmeubel, wat handig is voor sportschoenen, jassen of als je huisdieren hebt. De bijkeuken heeft ook een deur naar de achtertuin, waardoor je makkelijk met b.v. een groenbak naar de achtertuin kunt. Bovendien heeft de achtertuin aan de achterzijde nog een achterom, aansluitend op het achterpad.

Souterrain:
Hoogte ca. 210 cm onder de balken (tussen de balken is het nog hoger), en daglichttoetreding van 2 zijden (direct en indirect) en ruime kruipruimte voor opslag.
Deze verdieping is ingericht met een af te sluiten TV-/ chillkamer, een thuiswerkplek, separate wasruimte en bergruimte en bovendien uitermate geschikt om ook dromen als een thuisbioscoop / fitnessruimte / speelkamer / extra slaapkamer te realiseren.
De ruime doorkijk naar de woonkeuken, waar de ramen van te openen zijn is een briljante vondst om het contact tussen de ruimtes te houden, maar ook te kunnen afsluiten.

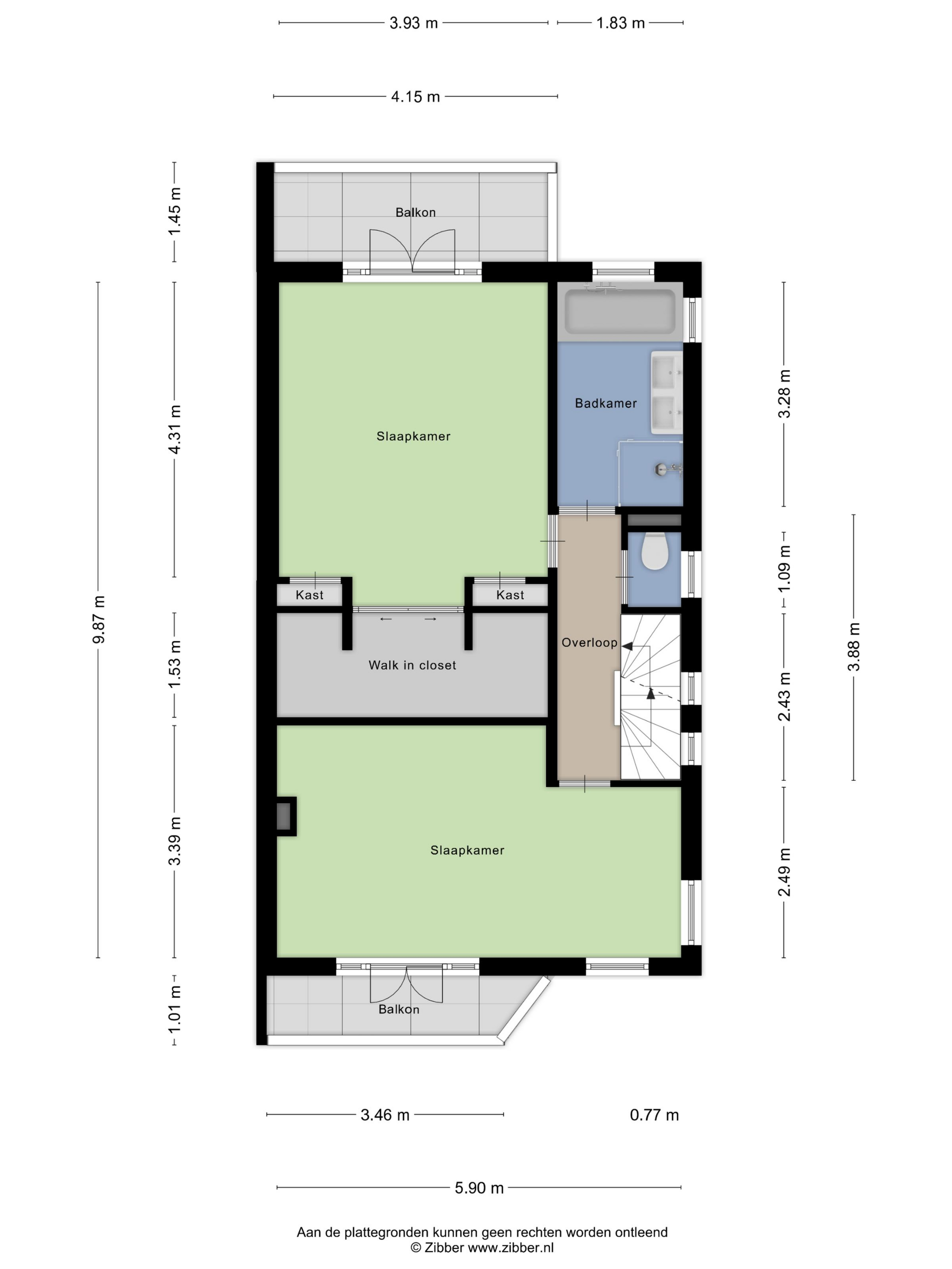
Eerste verdieping:
Vanaf de begane grond heeft de trapopgang naar de eerste verdieping prachtige authentieke glas-in-lood-ramen die in dubbel glas zijn geplaatst en een aangenaam en warm licht geven in het trappenhuis. De gehele verdieping is eveneens voorzien van een prachtige eikenhouten vloer. Eenmaal boven bevindt zich de overloop met toiletruimte, de lichte badkamer achterzijde met inloopdouche, ligbad, dubbele wastafel, handdoekradiator en elektrische vloerverwarming. De hoofdslaapkamer is licht en stil en is voorzien van een en suite walk-in-closet die met originele schuifdeuren is af te sluiten, tevens zijn er openslaande deuren naar het ruime balkon over de gehele breedte van het pand. Vanuit deze slaapkamer en het balkon is het uitzicht adembenemend mooi over de prachtige achtertuin. Aan de voorzijde bevindt zich de 2de ruime slaapkamer (voorheen 2 slaapkamers), nu in gebruik als werkkamer met een super charmant balkon en zicht op de prachtige kruin van de magnolia. Trapopgang naar 2e verdieping eveneens voorzien van originele glas-in-lood-ramen in dubbel glas.

Tweede verdieping:
Ook deze verdieping heeft de schitterende eikenhouten vloer, lichte en ruime overloop met bergkast, een opvallend ruime slaapkamer met een spectaculaire hoogte tot in de nok en een speelse vide te bereiken met een vaste steektrap. Deze royale en schitterende slaapkamer is voorzien van een en-suite (tweede) badkamer met een Velux dakraam v.v. hor en blindering, douche, toilet, wastafel en handdoekradiator.

Op een relatief eenvoudige manier is de bijzonder grote slaapkamer te verdelen in 2 riante slaapkamers. Het is zelfs mogelijk om een extra kamer te realiseren in de nok (op het niveau van de vide). Offertes voor deze eventuele ingrepen zijn aanwezig en ter inzage.

Achtertuin:
Circa 23 meter diep bij ruim 17 meter breed vanaf halverwege en ca. 8,5 meter breed bij het voorste gedeelte. De tuin heeft een druppelsysteem, is met veel liefde en respect voor de natuur aangelegd, biedt door de beplanting veel privacy, ligt op het noordoosten. Vanwege de diepte en omvang is er de gehele dag een plekje in de zon of schaduw te vinden, op één van de drie heerlijke terrassen. De tuin is voorzien van een houten tuinhuis met overkapping en berging voor tuinspullen en kussens en er is een poort naar het achterpad.

Bijzonderheden;
- bouwjaar 1926
- gelegen op 536 m² eigen grond
- gebruiksoppervlak wonen ca. 257 m² (conform BBMI / NEN 2580)
- gebruiksoppervlak overig inpandige ruimte ca. 1,5 m² (conform BBMI / NEN 2580)
- gebruiksoppervlak gebouwgebonden buitenruimte ca. 11 m² (conform BBMI / NEN 2580)
- gebruiksoppervlak externe bergruimte ca. 5,5 m² (conform BBMI / NEN 2580)
- volledig voorzien van houten kozijnen met dubbel glas
- verwarming en warm water d.m.v. cv-combiketel uit 2014
- energielabel C
- zonwering (markiezen) voorgevel en zijgevel
- dakpannen zijn met de gehele 4-onder-1-kap vernieuwd in 2024

Oplevering in overleg.

Voor aanvullende informatie over dit woonhuis kunt u de eigen website (adres+huisnummer) van het huis bezoeken.

J.J. van Oosten Makelaardij is de NVM-makelaar van de verkoper. Wij adviseren u uw eigen NVM-makelaar in te schakelen om uw belangen te behartigen bij de aankoop van dit object.

Aan deze aanbiedingstekst kunnen geen rechten worden ontleend. 

De gebruiksoppervlakte van de woning is opgemeten conform de branchebrede meetinstructie (BBMI). De BBMI is gebaseerd op de NEN2580. De BBMI is bedoeld om een meer eenduidige manier van meten toe te passen voor het geven van een indicatie van de gebruiksoppervlakte. De meetinstructie sluit verschillen in meetuitkomsten niet volledig uit, door bijvoorbeeld interpretatieverschillen, afrondingen of beperkingen bij het uitvoeren van de meting.

Kenmerken

Overdracht
Vraagprijs
€ 1.695.000 k.k.
Status
verkocht onder voorbehoud
Aanvaarding
in overleg
Bouw
Soort woonhuis
Herenhuis
Soort bouw
hoekwoning
Bouwjaar
1926
Energieklasse
C
Soort dak
samengesteld dak
Slaapkamers
5
Badkamers
2
Oppervlakten en inhoud
Woonoppervlakte
257 m2
Overige inpandige ruimte
2 m2
Gebouwgebonden buitenruimte
11 m2
Externe bergruimte
6 m2
Inhoud
916 m3
Perceeloppervlakte
536 m2
faciliteiten
Mechanische ventilatie
Alarminstallatie
Tv kabel
Buitenzonwering
Rookkanaal
Aan rustige weg
In woonwijk
In bosrijke omgeving
Baerz & Co Property Brochure

Brochure

Informatie / bezichtigingsaanvraag

Video's

Foto's

Plattegronden