Baerz & Co is een landelijk samenwerkingsverband van zorgvuldig geselecteerde boutique luxury makelaars. Samen vormen wij één netwerk, met één gedeeld aanbod. De woningen die u op onze website ziet, zijn afkomstig van alle aangesloten kantoren binnen Baerz & Co. Daardoor is niet ieder object rechtstreeks door ons kantoor in verkoop, maar door een gespecialiseerde collega binnen ons netwerk. Heeft u een woning gevonden die u aanspreekt en wilt u meer informatie? Dan brengen wij u graag persoonlijk in contact met de betreffende verkoopmakelaar, zodat u direct en zorgvuldig wordt begeleid.

STAVOREN
Koeweg 42 - 8715 EN
Nederland

Sander Bovenkerk profile image
Sander Bovenkerk
Real Estate Agent
€875.000 k.k.
Woonoppervlakte
245m2
Perceeloppervlakte
3265m2
Slaapkamers
5

Omschrijving

Op een toplocatie nabij het IJsselmeer naast een jachthaven met toegang naar alle waterwegen in Friesland, is deze in 2004 volledig vernieuwde villa gelegen op een omheind royaal perceel met alle privacy en prachtige Friese vergezichten. De rust, de natuur, het water, de steeds veranderende luchten en het gevoel van vrijheid zijn hier wel de speerpunten. Deze ruime goed geïsoleerde villa van 245m2 biedt levensloopbestendig wonen heeft een royale living, 4 slaapkamers, 2 badkamers een luxe keuken met bijkeuken en een prachtige veranda met vergezichten. Ook biedt de dubbele garage met verdieping, een zee aan ruimte en mogelijkheden. Het volledig geïsoleerde thuiskantoor/atelier of gastenverblijf met het geweldige uitzicht op de natuur is een inspiratiebron op zich. De onder architectuur aangelegde tuin met de robotmaaier is praktisch in onderhoud en speels aangelegd met diverse (fruit) boompartijen, hagen en rietkragen langs het water. De stijlvol aangelegde bestrating van de oprijlaan en toegangspoort accentueren de overgang naar de jaarrond groene tuin.

INDELING

BEGANE GROND
Direct bij het betreden van de woning is het ruimtelijk effect in de hal al voelbaar. Deze geeft toegang naar het gastentoilet, de bijkeuken, de meterkast en de trapopgang.
De woonkamer krijgt door de vele raampartijen en de vide veel licht en het uitzicht door elk raam is gefocust op de natuur. De adembenemende vergezichten vervelen hier nooit. De woonkamer heeft diverse sfeerhoeken als een zithoek rond de houthaard, een entertainment hoek en een eethoek. Er ligt een prachtige warme houten vloer voorzien van hete lucht verwarming en de openslaande tuindeuren geven direct toegang tot de gezellige veranda en het terras dat rondom alle privacy biedt.
Door de riante ouderslaapkamer met ensuite badkamer voorzien van vloerverwarming en inloopkleedkast op de begane grond is de woning levensloopbestendig gemaakt.
De halfopen woonkeuken is voorzien van diverse inbouwapparatuur en ook hier is een deur naar de tuin. Verwarming middels vloerverwarming. Er is voldoende plaats voor een eethoek in de keuken, maar ook het direct naast de halfopen keuken gelegen knusse woonkamer gedeelte biedt uitstekend ruimte voor een lange eettafel.

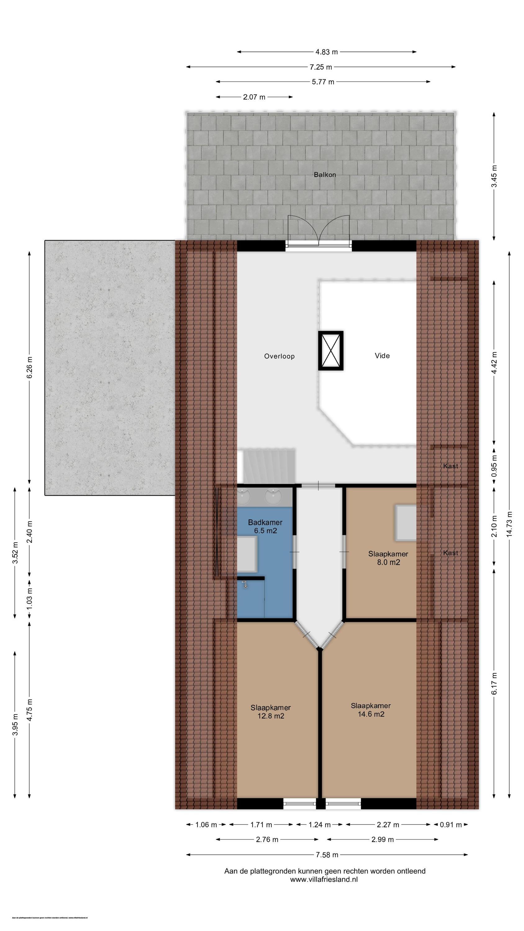
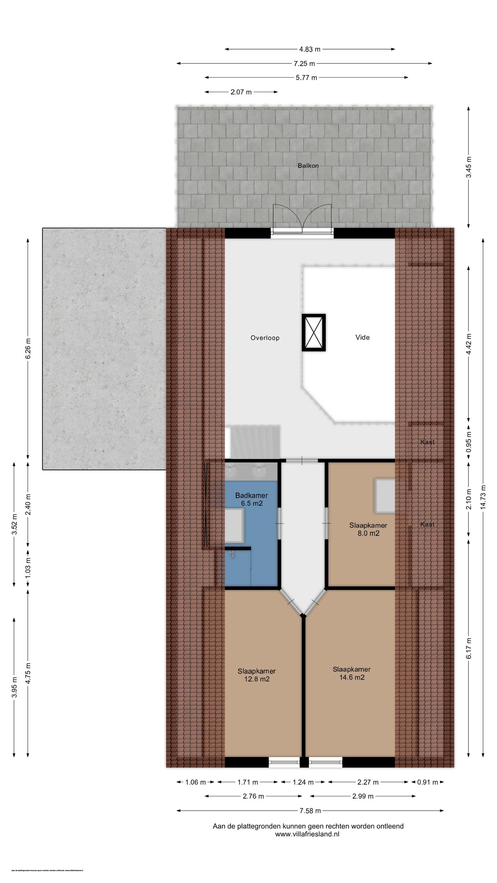
VERDIEPING
De overloop met vide kijkt uit op de woonkamer en heeft openslaande deuren naar een riant zonneterras (balkon) op het zuiden. Een geweldige plek om de mooiste zons-opgang en -ondergang te beleven. Ook hier voel je volledig privé door de beschutting van de tuin. De vide biedt voldoende plaats voor een gezellige speelhoek, werkplek of bibliotheek.
De overloop is afgesloten van de slaapvertrekken en badkamer middels een deur.
Er zijn 3 royale slaapkamers op deze verdieping en een ruime tweede badkamer voorzien van vloerverwarming, dubbel wastafelmeubel, inloopdouche en toilet.
Er is op de verdieping in alle kamers en op de overloop veel kastruimte onder het schuine dak. Verwarming middels hete lucht.

KANTOOR/GASTENVERBLIJF
Recentelijk is in de tuin een volledig geïsoleerd gastenverblijf/atelier/thuiskantoor gebouwd. Deze beschikt over een kitchenette- en badkamerruimte waardoor het voor verschillende doeleinden gebruikt kan worden. De op het zuidwesten gerichte extra grote raampartijen van dit verblijf bieden inspirerende vergezichten op de natuur richting het IJsselmeer met de steeds veranderende Friese luchten.

GARAGE
De dubbele garage is voorzien van een loopdeur en twee elektrische overhead deuren. Een zee aan ruimte biedt dit gebouw met een werkplaats voorzien van werkbank, elektra, stromend water en twee parkeerplaatsen. Mogelijkheid tot verwarming, radiatoren zijn aanwezig. De verdieping is bereikbaar middels een vaste trap en heeft stahoogte. Ook hier is ruim voldoende bergruimte. Op het perceel is genoeg plek om ca. 9 auto’s te parkeren.

TUIN
De onder architectuur aangelegde tuin met de robotmaaier is praktisch in onderhoud en speels aangelegd met diverse (fruit) boompartijen, hagen en rietkragen langs het water. De stijlvol aangelegde bestrating van de oprijlaan en toegangspoort accentueren de overgang naar de jaarrond groene tuin. Zowel het woonhuis als het gastenverblijf hebben het terras aan de zonkant waar je kunt genieten van de prachtige vergezichten over het Friese landschap en tot laat in de avond de meest spectaculaire zonsondergangen kunt zien.

BIJZONDERHEDEN
* Riant perceel nabij een jachthaven en het IJsselmeer
* 4 ruime slaapkamers en 2 badkamers
* Kunststof kozijnen vv horren
* Multifunctioneel thuiskantoor/gastenverblijf/atelier met kitchenette en badkamer
* Dubbele garage met werkplaats en verdieping
* Glasvezel, supersnelle wifi in de woning en het gastenverblijf (320mbs)
* Houtkachel
* Meerdere mogelijkheden voor een aanlegplaats in de nabije omgeving
* Snelle vaarverbinding met alle Friese meren en pittoreske Friese Elfsteden.

STAVOREN
Stavoren is een prachtig Elfsteden stadje gelegen aan het IJsselmeer. Er zijn voldoende voorzieningen als een grote supermarkt, diverse winkeltjes, jachthavens, restaurants, een basisschool, kinderopvang, watersportbedrijven en (sport)verenigingen.
In de directe omgeving zijn diverse zwemstranden aan het IJsselmeer. Stavoren grenst aan het glooiende en bosrijke Gaasterland met een uitgebreid netwerk aan wandel en fietspaden. De combinatie van water, bossen en stranden zorgt voor een unieke woonbeleving. Het gehele jaar door zijn er diverse evenementen en activiteiten, zie ook de website van Stavorenpuntnl.
Vanuit Stavoren zijn er goede uitvalswegen richting Balk, Lemmer, en de A6 richting Amsterdam of de afsluitdijk richting Noord-Holland. Vanuit Stavoren is een goede treinverbinding naar Sneek-Leeuwarden. In het seizoen is er een veerpont naar Enkhuizen.

DISCLAIMER
Deze informatie is met zorg samengesteld en deels gebaseerd op gegevens van de verkoper en/of derden. Hoewel gestreefd is naar een zo accuraat mogelijke weergave, kunnen aan de inhoud, waaronder teksten, bijlagen, plattegronden en maatvoering, geen rechten worden ontleend.
De vermelde oppervlakten zijn gemeten conform de NEN 2580-meetinstructie, waarbij afwijkingen niet zijn uit te sluiten. Deze aanbieding is geheel vrijblijvend en bedoeld als uitnodiging tot het uitbrengen van een bod. Voor objecten ouder dan 25 jaar worden standaard een ouderdoms- en indien van toepassing asbestclausule opgenomen in de koopakte.

Kenmerken

Overdracht
Vraagprijs
€ 875.000 k.k.
Status
verkocht onder voorbehoud
Aanvaarding
in overleg
Bouw
Soort woonhuis
Villa
Soort bouw
vrijstaande woning
Bouwjaar
1978
Energieklasse
C
Soort dak
zadeldak
Slaapkamers
5
Badkamers
3
Oppervlakten en inhoud
Woonoppervlakte
245 m2
Overige inpandige ruimte
0 m2
Gebouwgebonden buitenruimte
66 m2
Externe bergruimte
73 m2
Inhoud
1011 m3
Perceeloppervlakte
3265 m2
faciliteiten
Tv kabel
Rookkanaal
Dakraam
Glasvezel kabel
Natuurlijke ventilatie
Aan water
Aan rustige weg
Vrij uitzicht
Beschutte ligging
Buiten bebouwde kom
Aan vaarwater
In bosrijke omgeving
Landelijk gelegen
Baerz & Co Property Brochure

Brochure

Video’s

Plattegronden

Heeren Makelaars

Stadionweg 75
1077 SE Amsterdam

info@heerenmakelaars.nl
+31 204702255

www.heerenmakelaars.nl

Informatie / bezichtigingsaanvraag

Sander Bovenkerk profile image
Sander Bovenkerk
Real Estate Agent

Een luxe woning kopen in Stavoren

Stavoren verenigt rijke maritieme historie met hedendaags comfort. Wie privacy, cultuur en verfijnde voorzieningen zoekt, vindt hier een aantrekkelijk aanbod. De sfeer, woningkeuze en gemeenschap spreken internationale kopers en gezinnen aan die rust en echt Nederlands wonen waarderen.