Baerz & Co is een landelijk samenwerkingsverband van zorgvuldig geselecteerde boutique luxury makelaars. Samen vormen wij één netwerk, met één gedeeld aanbod. De woningen die u op onze website ziet, zijn afkomstig van alle aangesloten kantoren binnen Baerz & Co. Daardoor is niet ieder object rechtstreeks door ons kantoor in verkoop, maar door een gespecialiseerde collega binnen ons netwerk. Heeft u een woning gevonden die u aanspreekt en wilt u meer informatie? Dan brengen wij u graag persoonlijk in contact met de betreffende verkoopmakelaar, zodat u direct en zorgvuldig wordt begeleid.

VEENENDAAL
Kerkewijk 70 - 3904 JE
Nederland

Sander Bovenkerk profile image
Sander Bovenkerk
Real Estate Agent
€1.050.000 k.k.
Woonoppervlakte
167m2
Perceeloppervlakte
N/A
Slaapkamers
2

Omschrijving

Een appartement dat groots voelt en elke dag laat zien hoe luxe wonen bedoeld is.

Zodra u dit appartement binnenstapt, is één ding meteen duidelijk: hier klopt alles. De ruimte, de lichtinval, de afwerking en de rust die het geheel uitstraalt, maken dit tot een woning van uitzonderlijk niveau. Met een woonoppervlakte van maar liefst 167 m² biedt dit appartement een gevoel van vrijheid en grandeur dat u zelden tegenkomt. Grote raampartijen omlijsten het uitzicht en laten het daglicht royaal binnenstromen, terwijl de hoogwaardige materialen en maatwerkoplossingen zorgen voor een elegante en warme sfeer.

De leefruimte vormt het hart van de woning en is indrukwekkend van formaat, met vloeiende overgangen tussen wonen, koken en tafelen. De keuken is een statement op zichzelf, uitgevoerd met een royaal kookeiland, luxe apparatuur en een afwerking die zowel stijlvol als tijdloos is. Ook de slaapvertrekken zijn ruim en doordacht ingericht, met een master bedroom die aanvoelt als een privésuite. Voeg daarbij de twee balkons, de royale berging en de beschikking over twee parkeerplaatsen in de ondergelegen garage, en u begrijpt: dit is instapklaar wonen op hoog niveau, in het exclusieve complex Rembrandt Résidence.

De buurt
De Kerkewijk staat bekend als een van de meest geliefde locaties van Veenendaal. Hier woont u centraal, met alle dagelijkse voorzieningen binnen handbereik, zonder in te leveren op comfort en privacy. Winkels, horeca, cultuur en openbaar vervoer bevinden zich op korte afstand, terwijl ook uitvalswegen richting Utrecht, Arnhem en de rest van de Randstad uitstekend bereikbaar zijn. Tegelijkertijd biedt de directe omgeving een prettige balans tussen levendigheid en rust, met het Prattenburgse bos en het centrum van Veenendaal op loopafstand, brede lanen en een verzorgde uitstraling die perfect past bij het karakter van het complex.

Begane grond
De entree van Rembrandt Résidence maakt direct een verzorgde en representatieve indruk. Via de gezamenlijke, afgesloten entree met bellentableau en brievenbussen bereikt u het stijlvolle trappenhuis en de lift die u comfortabel naar het appartement brengt. In de onderbouw beschikt u over een royale privéberging, ideaal voor fietsen en extra opslag, en toegang tot de afgesloten parkeergarage waar twee eigen parkeerplaatsen tot uw beschikking staan. Bovendien zijn er nog twee optionele extra parkeerplaatsen bij te kopen voor € 20.000,- per parkeerplaats. Alles is ruim opgezet, overzichtelijk en van het niveau dat u bij dit appartement mag verwachten.

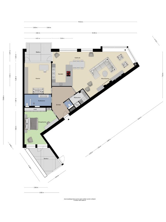
Indeling appartement
Binnengekomen in het appartement wordt u ontvangen in een ruime hal die direct de toon zet voor wat volgt. De afwerking is strak en rustig, met hoogwaardige materialen, zoals taatsdeuren en zorgvuldig gekozen verlichting. De gehele woning is van vloerverwarming voorzien. Vanuit hier heeft u toegang tot het separate toilet en de praktische bijkeuken, waar ruimte is voor witgoed en bergruimte, netjes uit het zicht maar perfect geïntegreerd in het geheel. Vervolgens opent de woning zich richting de indrukwekkende leefruimte, waar wonen, koken en eten naadloos in elkaar overlopen. De woonkamer is royaal en licht, met grote raampartijen en een sfeervolle elektrische haard die het zitgedeelte extra karakter geeft.

De luxe keuken vormt een waar pronkstuk. Het royale kookeiland nodigt uit tot lange diners en gezellige momenten, terwijl de hoogwaardige inbouwapparatuur van onder andere Gaggenau, waaronder een combi-oven, stoomoven, koffiemachine, inductiekookplaat met downdraft afzuiging, Quooker, vaatwasser, koelkast en vriezer, garant staat voor optimaal kookcomfort. Aansluitend bevindt zich de luxueuze eettafel, perfect gepositioneerd in het daglicht.

Het appartement beschikt over meerdere (slaap)kamers van groots formaat. De master bedroom voelt aan als een luxe hotelsuite, met maatwerkkasten, en beide kamers hebben directe toegang tot een overdekt balkon, waar u ook kunt genieten van de avondzon . De stijlvolle badkamer is ruim opgezet en uitgerust met een regendouche met sunshower, wastafelmeubel met dubbele kraan, verlichte spiegel, wandcloset en een hoogwaardige afwerking tot in detail.

Buitenruimte
De overdekte balkons zijn een verlengstuk van de leefruimte en bieden plaats voor een comfortabele zithoek en/of eettafel. Dankzij de ligging en de afmetingen geniet u hier in alle rust van het buitenleven, met voldoende privacy en een prettig uitzicht. Een plek om ’s ochtends rustig te starten of juist de dag ontspannen af te sluiten. In de onderbouw beschikt u over een grote berging en twee parkeerplaatsen (en twee optioneel bij te kopen) in de ondergrondse garage.

Afsluiting
Dit appartement is tot in de kleinste details verzorgd en straalt klasse, comfort en rust uit. Een woning waar u niets meer hoeft te doen, behalve verhuizen en genieten. Zelden komt een appartement van dit niveau beschikbaar. Wij nodigen u van harte uit om dit zelf te ervaren tijdens een bezichtiging.

Algemene gegevens
- Type woning: Appartement
- Bouwjaar: 2009
- Aantal kamers: 3
- Aantal slaapkamers: 2
- Aantal badkamers: 1
- Parkeerruimte: 2 plekken in de parkeergarage (2 optioneel)
- Aanwezig: 2x overdekte balkons/berging
- Ligging balkon: 1x noord/1x zuid

Technische gegevens
- Warmwatervoorziening: Nefit (2021)
- Verwarmvoorziening: Nefit (2021)
- Vloerverwarming: aanwezig
- Zonnepanelen: aanwezig op het complex
- Elektrische inbouwhaard
- Voorzieningen: airco/buitenzonwering/keuken apparatuur Gaggenau/bijkeuken
- Mechanische ventilatie: aanwezig
- Isolatie: dak/spouw/vloer
- Dubbel glas: geheel/deels
- Glasvezel kabel, TV kabel
- Kozijnen: hout

WILT U EVEN BINNEN KIJKEN?

Voor meer informatie omtrent deze woning, kunt u contact opnemen met ons kantoor in Veenendaal.

U bent van harte welkom! De beste indruk van deze woning krijgt u natuurlijk tijdens een bezichtiging. Wij proberen onze bezichtigingen altijd in samenspraak met verkoper en koper te plannen en nemen ruim de tijd, zodat u op uw gemak de woning kan bekijken en ervaren.
N.B. Aan de samenstelling van deze gegevens is maximale zorg besteed. Aan onvolkomenheden in de vermelde gegevens en tekeningen kunnen geen rechten en aanspraken worden ontleend.

Kenmerken

Zonnepanelen
Garage
Overdracht
Vraagprijs
€ 1.050.000 k.k.
Status
Available
Aanvaarding
In Concert
Referentie
08133
Bouw
Soort woonhuis
Apartment
Soort bouw
Portico Flat
Bouwjaar
2009
Energieklasse
A
Soort dak
flat
Slaapkamers
2
Badkamers
1
Oppervlakten en inhoud
Woonoppervlakte
167 m2
Gebouwgebonden buitenruimte
29 m2
Externe bergruimte
58 m2
Inhoud
551 m3
faciliteiten
Airco
Balcony
Elevator
Frenchbalcony
Fibreopticcable
Garage
Internetconnection
Outdoorawnings
Solarpanels
Storageroom
Baerz & Co Property Brochure

Brochure

Video’s

Heeren Makelaars

Stadionweg 75
1077 SE Amsterdam

info@heerenmakelaars.nl
+31 204702255

www.heerenmakelaars.nl

Informatie / bezichtigingsaanvraag

Sander Bovenkerk profile image
Sander Bovenkerk
Real Estate Agent

Een luxe woning kopen in Veenendaal

Veenendaal biedt een perfecte balans tussen rust, stedelijke elegantie en veelzijdige voorzieningen. Privacy, groen wonen en internationale connecties staan centraal, ondersteund door hoogstaande vastgoedservices voor een wereldwijde, veeleisende clientèle.