Baerz & Co is een landelijk samenwerkingsverband van zorgvuldig geselecteerde boutique luxury makelaars. Samen vormen wij één netwerk, met één gedeeld aanbod. De woningen die u op onze website ziet, zijn afkomstig van alle aangesloten kantoren binnen Baerz & Co. Daardoor is niet ieder object rechtstreeks door ons kantoor in verkoop, maar door een gespecialiseerde collega binnen ons netwerk. Heeft u een woning gevonden die u aanspreekt en wilt u meer informatie? Dan brengen wij u graag persoonlijk in contact met de betreffende verkoopmakelaar, zodat u direct en zorgvuldig wordt begeleid.

ZALTBOMMEL
Gasthuisstraat 12 - 5301 CC
Nederland

Sander Bovenkerk profile image
Sander Bovenkerk
Real Estate Agent
€1.150.000 k.k.
Woonoppervlakte
408m2
Perceeloppervlakte
320m2
Slaapkamers
7

Omschrijving

Een pand dat grandeur ademt en een rijke historie herbergt, perfect voor liefhebbers van ruimte, sfeer, authenticiteit en bewonersgeschiedenis. Achter de statige gevel schuilt een verrassend royale woning met meerdere woonlagen, prachtige stijlelementen en een heerlijke stadstuin. Het statige monument staat in de luwte van het winkelhart en op loopafstand van de Waal. Door de bestemming 'centrum 3' biedt het pand alle ruimte om wonen te combineren met bijvoorbeeld praktijk, kantoor, galerie of horeca.

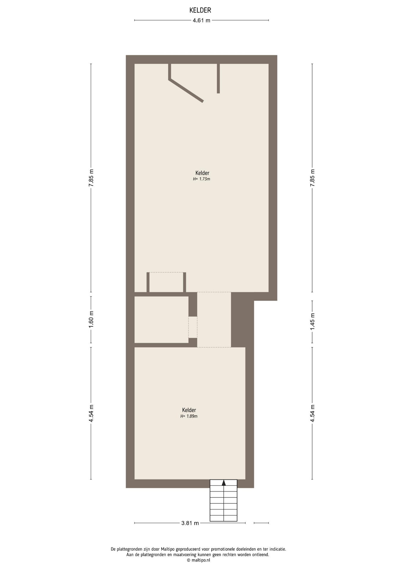
Dubbele middeleeuwse gewelfkelder onder het voor- en achterhuis.
Grote hal, voorkamer met hoog stucplafond, tuingerichte achterkamer met schouw, gang, tuingerichte eetkeuken, bijkeuken en provisiekelder op de begane grond.
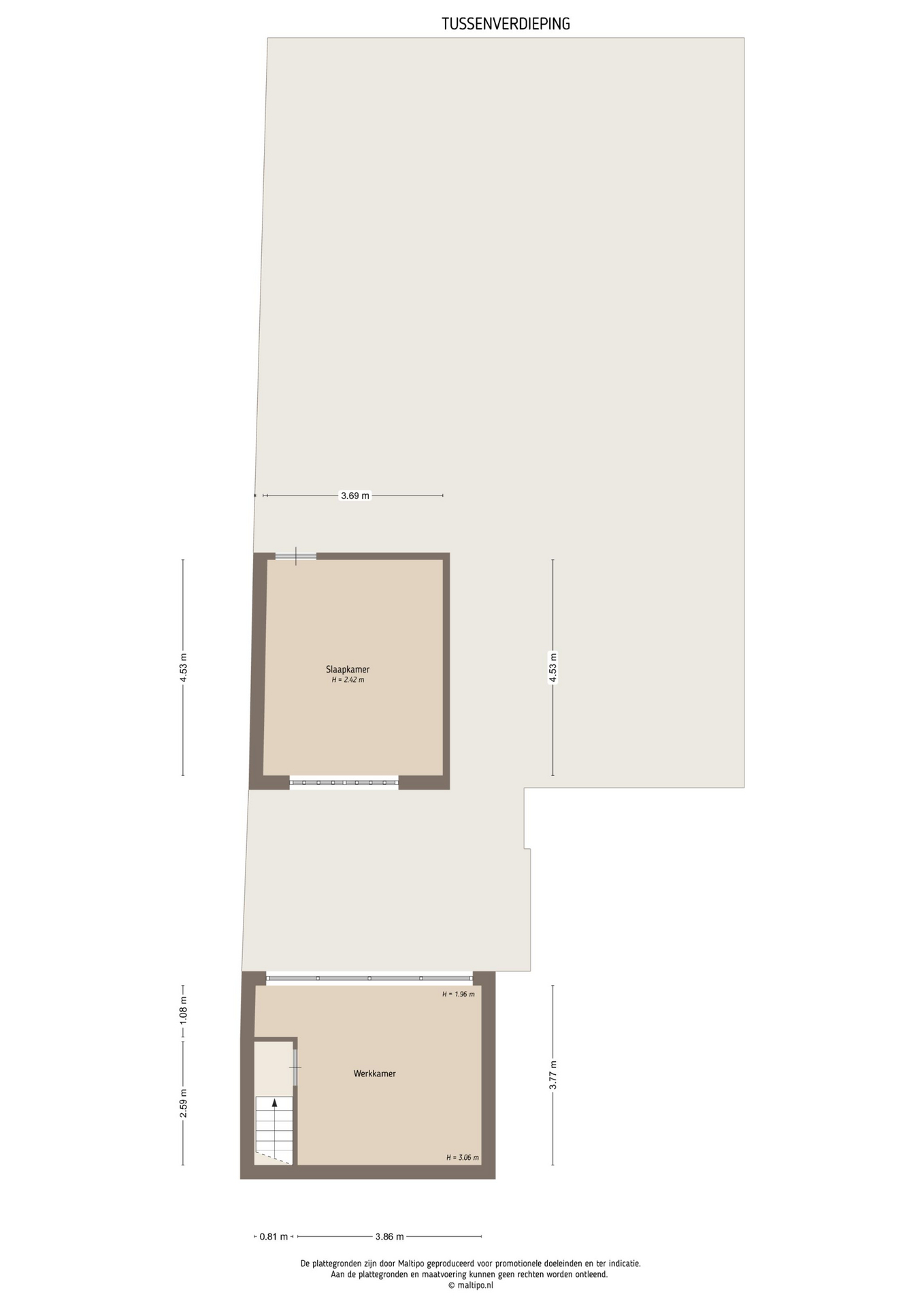
Overloop; logeerkamer in het hoofdhuis en een werkkamer boven de keuken op de tussenverdieping
Drie grote slaapkamers, waarvan twee met garderobewand en een compleet ingerichte badkamer op de eerste verdieping.
Overloop; twee slaapkamers en een zolder met mogelijkheden op de tweede verdieping.
Grote bergzolder op de derde verdieping.

Rijksmonument

Bruto-inhoud: 1.990 m³
Gebruiksoppervlakte wonen: 408 m²
Bouwperiode: 16e eeuw
Perceeloppervlak: 320 m²

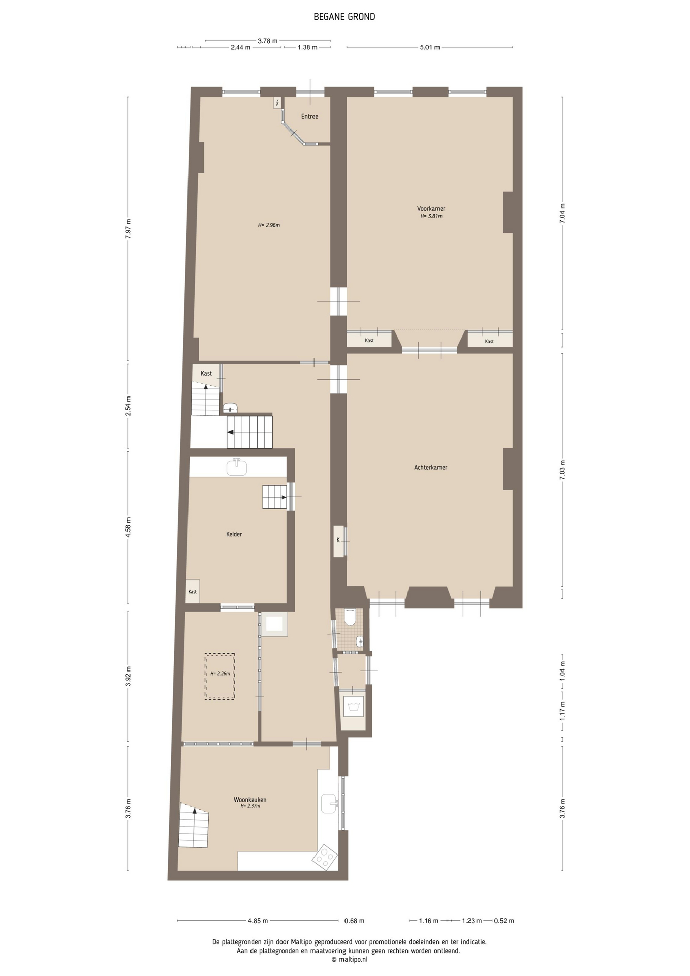
Indeling begane grond:
Imposante entree met het formaat van een doorsnee woonkamer. Er ligt een marmeren vloer die in de aangrenzende gang overgaat in een hardstenen vloer. Aan de linkerzijde bevindt zich de woonkamer en suite van maar liefst 70 m2.
De woonkamer heeft hoge stucplafonds, hoge vensters met glas-in-lood bovenlichten, twee natuurstenen schouwen, zitvensterbanken, binnenluiken, vaste kasten en visgraatparket. Aan de achterzijde geven twee paar dubbele deuren toegang tot de tuin. Aan de eerdergenoemde gang grenzen een kelder, de bijkeuken en de eetkeuken. In de vloer van de kelder biedt een glasplaat zicht op de historische waterput. De bijkeuken bevindt zich op de plaats waar vroeger de buitenruimte van de westelijke woning was in de tijd dat het nog twee panden waren. In de gang zijn de 18e-eeuwse pomp met hardstenen spoelbak en koperen kranen nog aanwezig. De eetkeuken is ingericht met een klassiek keukenmeubel voorzien van enige inbouwapparatuur en een terrazzo-werkblad. Vanuit de keuken is zicht op de tuin.

Indeling tussenverdieping:
Boven de keuken bevindt zich een werkkamer, bereikbaar via een vaste trap. Vanuit deze kamer is zicht op de achtergevel van het pand. Aan het trappenhuis grenst een sfeervolle slaap-/werkkamer met visgraatparket en houten lambrisering. Er zijn twee 24-ruits schuifvensters, vanwaar zicht is op de werkkamer boven de keuken.

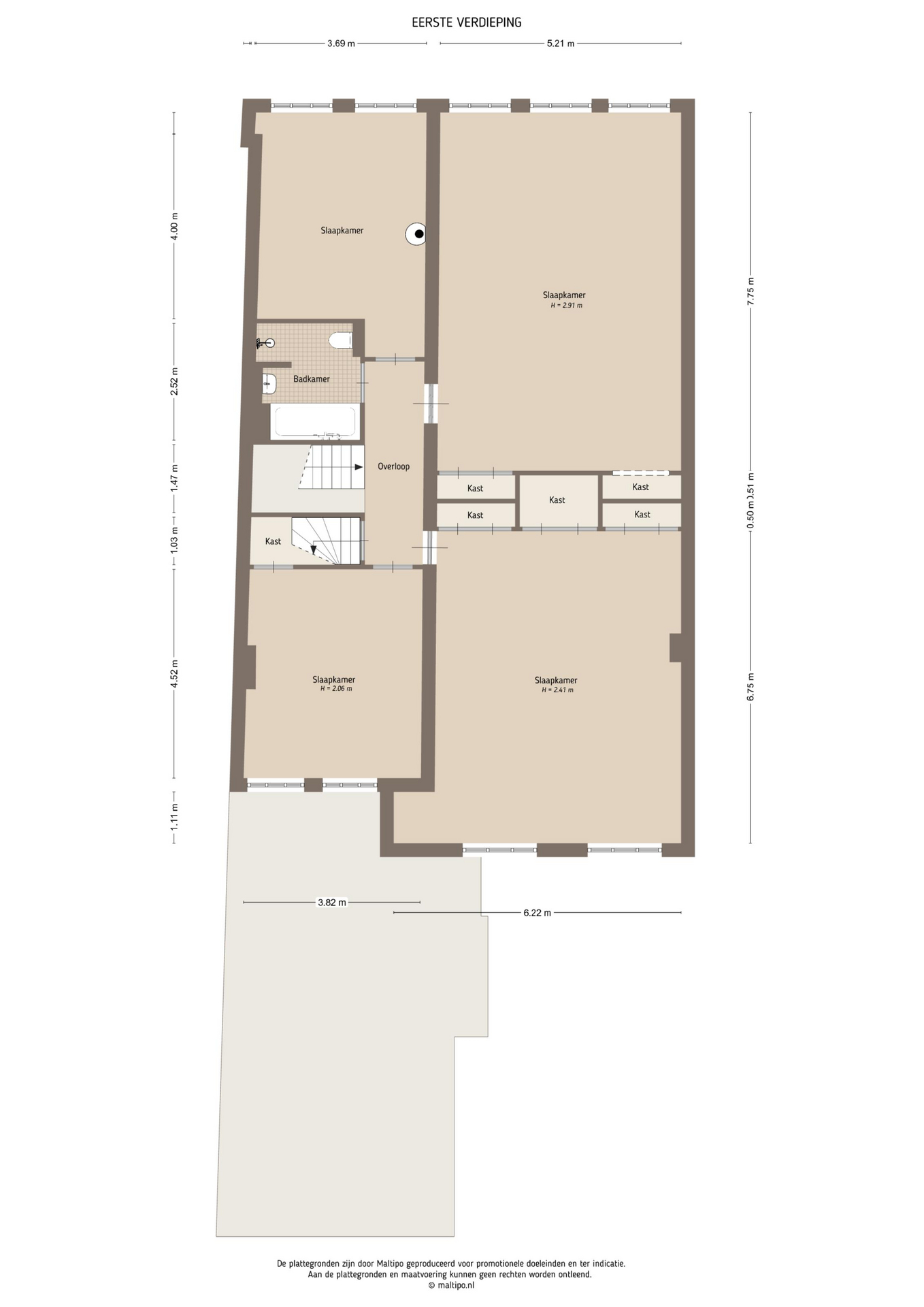
Indeling eerste verdieping:
Op deze verdieping is de 16e-eeuwse sfeer voelbaar. Aan de voorzijde is een slaapkamer van 40m2 die in het verleden is gebruikt als woonkamer. Via drie 12-ruits schuifvensters is zicht op de brede Gasthuisstraat. Op de vloer liggen brede vloerdelen en er zijn twee vaste kasten. Aan de achterzijde is een nog imposantere slaapkamer. Er is een moer- en kinderbalkenplafond, een vloer met witgeschilderde brede vloerdelen en een kamerbrede kastenwand met fraaie paneeldeuren. Vanuit de twee 16-ruits vensters is zicht op de tuin.

Op deze verdieping bevinden zich nog twee slaapkamers, beide met brede vloerdelen, balkenplafonds en roederamen. De badkamer is ingericht met een ligbad, douchecabine, wastafel en toilet.

Indeling tweede verdieping:
Op deze verdieping bevinden zich een overloop en aan de achterzijde twee verwarmde kamers; in het verleden naar alle waarschijnlijkheid gebruikt als ‘meidenkamers’. Aan de voorzijde bevindt zich aan de westzijde een grote verwarmde zolder met twee grote gevelramen en drie dakramen.

Indeling derde verdieping:
Vanaf de tweede overloop geeft een steektrap toegang tot een tweede zolder. Deze vermoedelijk 17e eeuwse steektrap is het oudste exemplaar in Zaltbommel. De zolder heeft een vloeroppervlak van ruim 60m2. Via het 12-ruits venster in de zuidgevel valt er voldoende natuurlijk licht binnen.

De geschiedenis:
In het eerste kwart van de 19e eeuw werd het pand bewoond door Lion Philips en Feijtje Presburg. Lion was een Joodse tabakshandelaar en belegger in Zaltbommel, terwijl Feijtje de dochter was van een Joodse textielhandelaar uit Nijmegen. Twee van hun vele kleinkinderen, Anton en Gerard Philips, zouden later uitgroeien tot de grondleggers van het wereldconcern Philips. Naast hun zakelijke en familiale betrokkenheid hadden Lion en Feijtje ook een bijzondere rol in het leven van hun neef, Karl Marx. Zij beheerden zijn erfenis, in de hoop te voorkomen dat hij zijn erfdeel zou verkwisten. Marx' moeder vond hem een potverteerder en wilde hem behoeden voor financiële problemen. Hij moest rondkomen van het bescheiden inkomen dat hij verdiende met het schrijven van boeken en artikelen. Vanaf 1861 kwam het huis in handen van Henriette Philips, een dochter van Lion en Feijtje, en haar echtgenoot Antonie van Anrooy, een arts. Bij hen vond Marx een warm welkom. In de winter van 1863 verbleef hij enkele maanden in het huis, geplaagd door pijnlijke steenpuisten, die hem aan de Gasthuisstraat kluisterden. Onder medisch toezicht van zijn gastheer werkte hij in die periode aan Das Kapital, het boek dat hem later wereldberoemd zou maken.

Bijzonderheden:
Zelden komt er in Zaltbommel een pand te koop waarbij zoveel authentieke elementen bewaard zijn gebleven, danwel zijn teruggebracht. De woning is in de jaren ’90 onder toezicht van Monumentenzorg volledig gerestaureerd en door de loop der jaren met zorg onderhouden. Tweejaarlijks wordt er door de Monumentenwacht een uitgebreide inspectie uitgevoerd. Het rapport hiervan is op verzoek in te zien.
Het pand dateert van origine uit de 16e eeuw. Onder de volledige diepte van het pand is een dubbele gewelfde kelder aanwezig. Deze is bereikbaar vanuit de tuin.
Het pand wordt verwarmd middels een Intergas HRe-ketel. Voor het pand ligt een prachtige hardstenen stoep met aan weerszijde smeedijzeren stoephekken. Achter de woning ligt een sfeervolle stadstuin met een achterom naar de Koningstraat. Deze wintergroene tuin is ingericht met terrassen van gebakken klinkertjes, omgeven door haagjes en borders met heesters.
De eigenaar draagt na 35 jaar woon- en werkplezier graag het stokje over aan de liefhebber van riant en monumentaal wonen op gewilde locatie.

Kenmerken

Air conditioning
Overdracht
Vraagprijs
€ 1.150.000 k.k.
Status
verkocht onder voorbehoud
Aanvaarding
in overleg
Bouw
Soort woonhuis
Herenhuis
Soort bouw
geschakelde woning
Bouwjaar
1550
Soort dak
zadeldak
Slaapkamers
7
Badkamers
1
Oppervlakten en inhoud
Woonoppervlakte
408 m2
Overige inpandige ruimte
127 m2
Inhoud
1990 m3
Perceeloppervlakte
320 m2
faciliteiten
Airconditioning
Rookkanaal
Dakraam
Natuurlijke ventilatie
In centrum
Baerz & Co Property Brochure

Brochure

Video’s

360 Panorama’s

360°
360 Panorama - Gasthuisstraat 12
360°
360 Panorama - Gasthuisstraat 12
360°
360 Panorama - Gasthuisstraat 12
360°
360 Panorama - Gasthuisstraat 12
360°
360 Panorama - Gasthuisstraat 12
360°
360 Panorama - Gasthuisstraat 12
360°
360 Panorama - Gasthuisstraat 12

Plattegronden

Heeren Makelaars

Stadionweg 75
1077 SE Amsterdam

info@heerenmakelaars.nl
+31 204702255

www.heerenmakelaars.nl

Informatie / bezichtigingsaanvraag

Sander Bovenkerk profile image
Sander Bovenkerk
Real Estate Agent

Een luxe woning kopen in Zaltbommel

Zaltbommel biedt een exclusieve gemeenschap, verrijkt met historie, natuur en verfijnde voorzieningen. Bewoners genieten hier van tijdloze luxe, persoonlijke service en een veilige, gastvrije sfeer – een magneet voor wereldwijde liefhebbers van authenticiteit en rust.