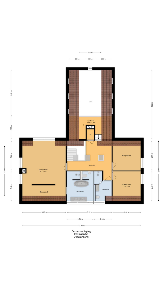
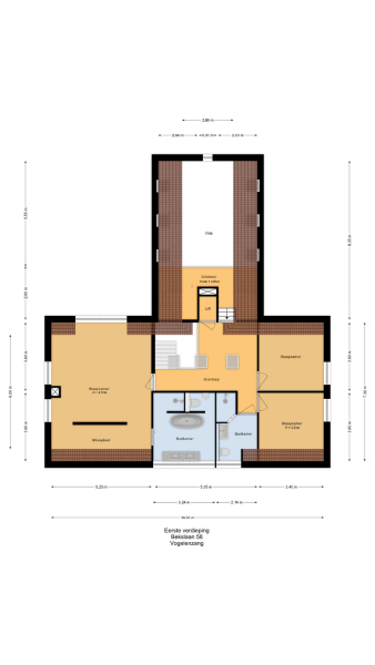
Отдельно стоящая вилла в Фогелензанге расположена на уникальном лесном участке площадью 18 030 м² и предлагает образ жизни, определяемый уединённостью, спокойствием и тесной связью с природой. Эта вилла, построенная в 2019 году, располагает 297 м² жилой площади и тремя спальнями, сочетая современный комфорт с вечной атмосферой. Объект создан для ценителей сдержанности и элегантности; вилла отделана вручную формованным клинкерным кирпичом, натуральными бургундскими плитами и массивными дубовыми дверями, а фасад из красного кедра обеспечивает долгосрочную привлекательность и минимальное обслуживание.
Пространство организовано щедро, но без излишеств. Впечатляющий холл с лестницей и лифтом обеспечивает доступ во все части дома. Гостиная с камином и тёплыми полами выходит на веранду с видом на зрелый лес, гармонично соединяя интерьер с пейзажем. Просторная кухня оснащена индукционной плитой AGA, высокими потолками, антресолью и имеет прямой выход в сад. На верхнем этаже дневной свет проникает сквозь мансардные окна и окна-дормеры; главная спальня располагает гардеробной и роскошной ванной. Две дополнительные спальни и вторая ванная комната обеспечивают комфорт гостям или семье.
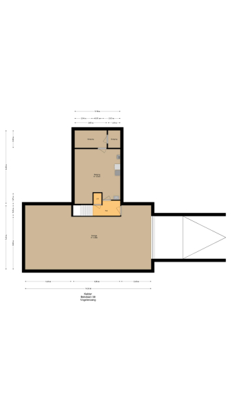
Просторный цокольный этаж включает двойной гараж на четыре машины, зарядную станцию для электромобилей, кладовую, помещения для котельной и прачечной. Современная теплоизоляция, стекло HR++, охранная сигнализация и класс энергоэффективности A подчёркивают экологичность виллы. Все этажи доступны по лестнице или на лифте для максимального удобства.
Частная гавань с причалами на три лодки расширяет возможности для отдыха у воды и обеспечивает прямой выход на канал Leidsche Vaart с маршрутами в сторону Харлема и озёр Kagerplassen. Ежедневные удобства остаются в пределах велосипедной досягаемости, что редкость для столь уединённого жилища. Эта роскошная вилла на продажу в Фогелензанге сочетает тишину, мастерство и доступность, привлекая тех, кто легко и незаметно перемещается между мирами.
Исследуйте Vogelenzang вместе с Baerz — вашим надежным советником и личным поисковиком недвижимости
Местный рынок сложен и закрыт. Профессиональные советники обеспечивают доступ к внебиржевым объектам и ведут сложные переговоры по историческим зданиям на охраняемых территориях. Их экспертиза — в дью-дилиженс, оценке и подстройке сделки под инвестиционные или семейные задачи, с гарантированной конфиденциальностью на каждом этапе.
Избегайте распространённых ошибок
Международные покупатели часто тратят ценное время на изучение дублирующихся, устаревших или вводящих в заблуждение онлайн-объявлений, особенно учитывая, что почти 30% объектов элитной недвижимости вообще не появляются на открытом рынке.
Агенты продавца представляют интересы продавца, а не ваши, и даже простой запрос о недвижимости может привести к тому, что агентство зарегистрирует вас как своего “клиента” без вашего согласия.
С Baerz Property Finders & Advisors вы полностью избегаете этих подводных камней.
Мы действуем исключительно в ваших интересах, предоставляя независимое представительство, прозрачные рекомендации и доступ ко всем доступным объектам, включая частные и вне-рыночные предложения, которых другие никогда не увидят.
Хотите узнать, как получить собственного персонального консультанта по недвижимости? Свяжитесь с нами, чтобы узнать, как мы можем представлять ваши интересы и открыть вам весь рынок.