Ons kantoor is lid van Baerz & Co Luxury Homes; een internationaal platform dat exclusieve woningmakelaars met elkaar verbindt. Neem contact op met ons secretariaat voor meer informatie over het landelijke aanbod, waarvan u hieronder een selectie kunt bekijken.

WOERDENSE VERLAAT
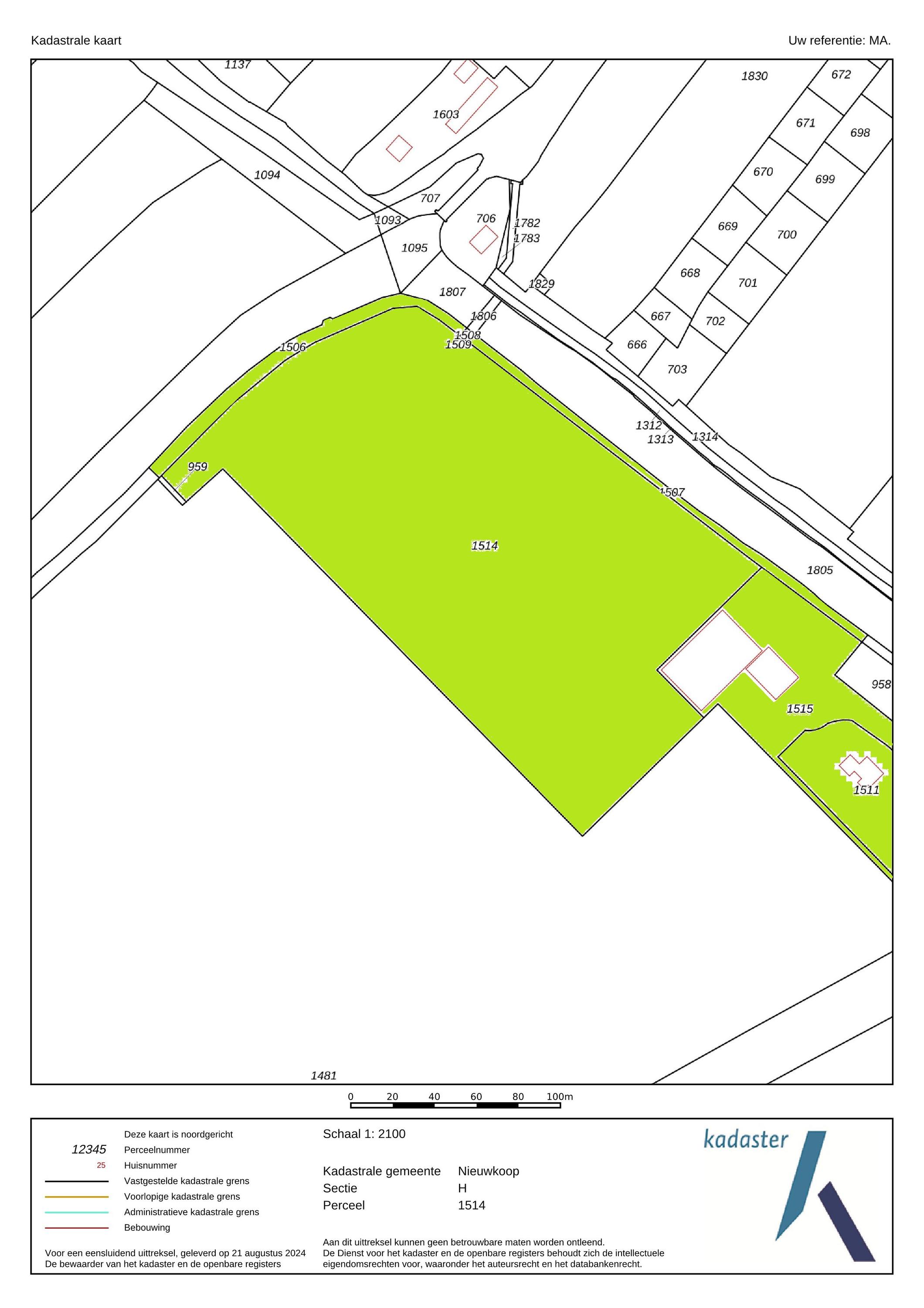
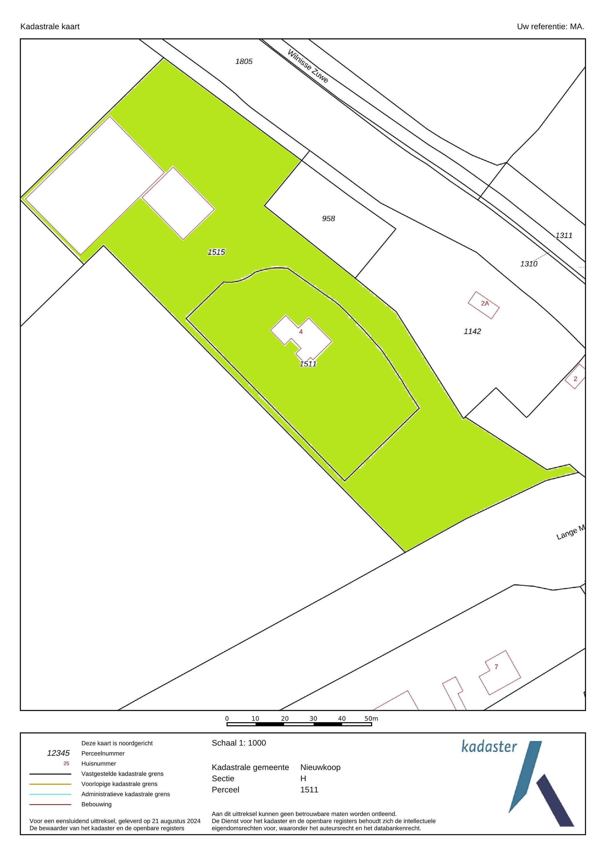
Lange Meentweg 4 - 3652 LB
Нидерланды

John Korver profile image
John Korver
Real estate agent
€1,965,000 k.k.
Жилая площадь
227m2
Размер участка
46341m2
Спальни
4

Описание

Отдельно стоящая вилла в Вурденсе-Ферлаате уединенно расположена в сельском сердце Нидерландов и предлагает 227 м² жилой площади на обширном участке в 46 341 м². К вилле ведет длинная подъездная дорога с электрическими воротами, а её пределы выходят на тщательно облагораженные сады и спокойные панорамы у воды, создавая атмосферу приватности и гармонии. Основной дом встречает просторным холлом и скульптурной деревянной лестницей, ведущей к наполненным светом интерьерам. Гостиная поражает обилием света, видом на сад и теплом дровяной печи. Французские двери обеспечивают доступ к террасам и визуально увеличивают пространство. Кухня, оформленная гранитными столешницами и современной техникой, поддерживает как повседневный быт, так и гостеприимные встречи.

Отдельные апартаменты для гостей с самостоятельным входом и прямым выходом в сад предлагают просторную гостиную, кухню, спальню и собственную ванную комнату — идеальное решение для гостевого или многопоколенного проживания. На втором этаже — три спальни и основная ванная с двумя раковинами и душем с дождевой лейкой для тихой роскоши; напольное покрытие из дуба подчеркивает спокойную атмосферу. Энергоэффективность обеспечивается системой вентиляции с рекуперацией тепла, тепловым насосом и 68 солнечными панелями.

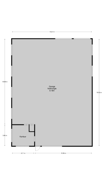
На территории расположен впечатляющий хозяйственный блок площадью 294 м², подходящий под мастерскую или офис. В здании предусмотрено накопление дождевой воды, пеллетная печь и солнечная интеграция. Теплица площадью 1 093 м² приглашает к садоводству и отдыху. За пределами открываются обширные луга, идеально подходящие для отдыха или содержания животных. Расположенная в Вурденсе-Ферлаате — живописной деревне, известной своей природой, водоемами и историей — эта собственность сочетает абсолютную уединенность с удобной доступностью Брейкелена, транспортных узлов и досуга. Эта роскошная вилла на продажу в Вурденсе-Ферлаате — редкое сочетание свободы и утончённого образа жизни.

Исследуйте Woerdense Verlaat вместе с Baerz — вашим надежным советником и личным поисковиком недвижимости

Тонкости местного рынка и эксклюзивные независимые предложения делают профессиональную поддержку незаменимой. Экспертные агенты обеспечивают доступ к дому, не выставленным в открытой продаже. Их опыт в юридических вопросах, реконструкции и требованиях по охраняемым объектам гарантирует оптимальный результат и защиту приватности на всех этапах сделки.

Избегайте распространённых ошибок

Международные покупатели часто тратят ценное время на изучение дублирующихся, устаревших или вводящих в заблуждение онлайн-объявлений, особенно учитывая, что почти 30% объектов элитной недвижимости вообще не появляются на открытом рынке.
Агенты продавца представляют интересы продавца, а не ваши, и даже простой запрос о недвижимости может привести к тому, что агентство зарегистрирует вас как своего “клиента” без вашего согласия.
С Baerz Property Finders & Advisors вы полностью избегаете этих подводных камней.
Мы действуем исключительно в ваших интересах, предоставляя независимое представительство, прозрачные рекомендации и доступ ко всем доступным объектам, включая частные и вне-рыночные предложения, которых другие никогда не увидят.

Хотите узнать, как получить собственного персонального консультанта по недвижимости? Свяжитесь с нами, чтобы узнать, как мы можем представлять ваши интересы и открыть вам весь рынок.

Особенности

Солнечные панели
Передача права собственности
Запрашиваемая цена
€ 1.965.000 k.k.
Статус
beschikbaar
Принятие
in overleg
Строительство
Тип дома
Eengezinswoning
Тип здания
vrijstaande woning
Период строительства
2001
Энергетический рейтинг
A
Тип крыши
zadeldak
Спальни
4
Ванные комнаты
2
Площадь и объем
Жилая площадь
227 m2
Другое внутреннее пространство
11 m2
Внешнее складское помещение
1387 m2
Объем в кубических метрах
863 m3
Размер участка
46341 m2
Удобства
Mechanische ventilatie
Rookkanaal
Zonnepanelen
Balansventilatie
Natuurlijke ventilatie
Aan water
Vrij uitzicht
Beschutte ligging
Buiten bebouwde kom
Aan vaarwater
Landelijk gelegen
Baerz & Co Property Brochure

Брошюра

Видео

Планы этажей

Korver makelaars

Stationsweg 12
3641RG Mijdrecht

welkom@korvermakelaars.nl
+31 297 25 04 21

www.korvermakelaars.nl

Информация / Запрос на просмотр

John Korver profile image
John Korver
Real estate agent