Ons kantoor is lid van Baerz & Co Luxury Homes; een internationaal platform dat exclusieve woningmakelaars met elkaar verbindt. Neem contact op met ons secretariaat voor meer informatie over het landelijke aanbod, waarvan u hieronder een selectie kunt bekijken.

BAARLE-NASSAU
Hoogbraak 48 - 5111 CT
荷兰

Andy Tjokrokoesoemo profile image
Andy Tjokrokoesoemo
Real Estate Agent
€1,595,000 k.k.
生活区
466m2
地块大小
2270m2
卧室
3

描述

Villa Baarle-Nassau邀请您开启雅致生活新篇章。这座宽敞别墅拥有466平方米的居住面积,坐落于2270平方米的私家地块,庄重的建筑语言与现代舒适在Baarle-Nassau核心地段交融共生。通过每一间宽大明亮的房间,流畅开阔的空间布局与充沛自然采光和经精心规划的视线动线一一呼应。Villa Baarle-Nassau荣获A级能效评级,为持续舒适提供保障。

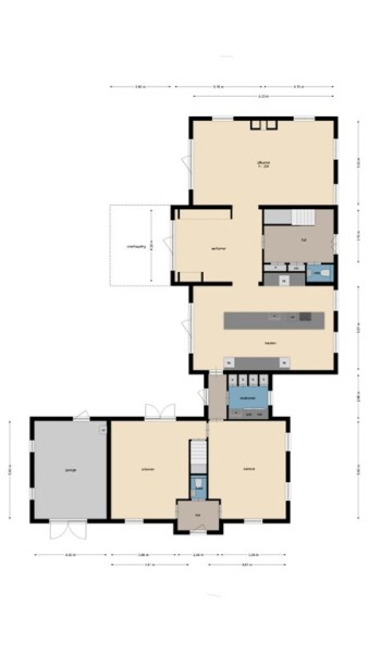
一楼设有三处互通的大型起居空间,各自独立而又以挑高天花与落地窗彼此相连。实木地板与内置燃气壁炉营造静谧氛围,客厅与餐厅可无缝衔接至廊檐和景观花园。醒目的开放式厨房设有大型中岛,并配备了先进的电器,包括BORA模块化设备和恒温酒柜,为家人团聚与日常品味生活提供理想空间。毗邻的多功能侧翼配有杂物间、办公区、花园房和独立出入口,可灵活用作客房、护理套间或专业工作空间。

二楼布局包括一间主卧套房,俯瞰花园,设有步入式衣帽间和配备步入式淋浴、独立浴缸及双台盆的独立卫浴。两间次卧及第二卫生间延续住宅的精妙比例,光线与高度注入每一处空间以静谧能量。宽大的阁楼预留洗衣设施接口,空间开放灵活,便于后续个性化定制。

户外,精心设计的园林可尽享宁静的户外生活。草坪、成熟植被、果树和多处休憩区环抱整座别墅,并配有带嵌入照明与灌溉系统的加热廊檐。实用配置包括双车位车库、充足停车区及充电桩预留。安保方面,集成式报警系统为居住安全护航。

项目位于Baarle-Nassau,兼具隐私和便利,邻近荷兰及比利时学校、体育俱乐部、大型超市及医疗设施。村庄独特的飞地环境,坐拥Breda、Tilburg与Turnhout之间的绿意三角,畅享自然步道与文化设施。该豪华别墅已整装待售,专为追求静谧与精细细节的鉴赏家量身打造。

与 Baerz 一起探索 Baarle-Nassau,您值得信赖的私人房产顾问和搜寻专家

在巴尔勒-纳索独特的房产市场,深度本地洞察与国际视野至关重要。跨境细节与紧俏房源常让优质机会只对内行开放。经验丰富的顾问拥有高阶谈判力,了解荷比购房流程,为客户优化隐私与价值、规避风险。

避免常见陷阱

国际买家经常浪费大量时间浏览重复、过时或误导性的在线房源,尤其是因为近 30% 的豪华物业根本不会公开上市。
卖方代理代表卖方的利益,而非您的利益;甚至仅仅对房产进行咨询,都可能导致中介在未经您同意的情况下将您登记为他们的“客户”。
通过 Baerz Property Finders & Advisors,您可以完全避免这些问题。
我们只代表您,提供独立建议、透明指导,并让您接触所有可售房源,包括私人及未上市的独家机会,这些往往不会被他人看到。

想知道如何获得您自己的私人房产顾问吗?联系我们,了解我们如何代表您的利益并为您打开整个市场。

特点

Alarm system
车库
所有权转让
要价
€ 1.595.000 k.k.
状态
Available
接受
In Concert
参考
179
建筑
房屋类型
Villa
建筑类型
Detached House
建筑时期
2009
能源评级
A
屋顶类型
hipped
卧室
3
浴室
2
表面积和体积
生活区
466 m2
其他室内空间
25 m2
附属于建筑的外部空间
17 m2
体积(立方米)
1854 m3
地块大小
2270 m2
设施
Alarm
Garage
Garden
Baerz & Co Property Brochure

宣传册

视频

户型图

Van Baarle Makelaardij

Hoogbraak 1
5111 CS Baarle-Nassau

andy@vanbaarlemakelaardij.com
+31 013762 02 02

www.vanbaarlemakelaardij.com

信息/查看请求

Andy Tjokrokoesoemo profile image
Andy Tjokrokoesoemo
Real Estate Agent