Ons kantoor is lid van Baerz & Co Luxury Homes; een internationaal platform dat exclusieve woningmakelaars met elkaar verbindt. Neem contact op met ons secretariaat voor meer informatie over het landelijke aanbod, waarvan u hieronder een selectie kunt bekijken.

BERGSCHENHOEK
Oltmansstraat 17 - 2662 AA
荷兰

Dominique Blom profile image
Dominique Blom
Register Makelaar Taxateur
€998,000 k.k.
生活区
174m2
地块大小
635m2
卧室
4

描述

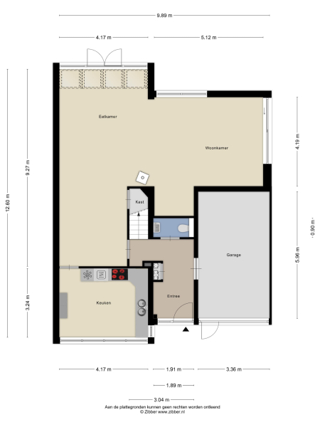
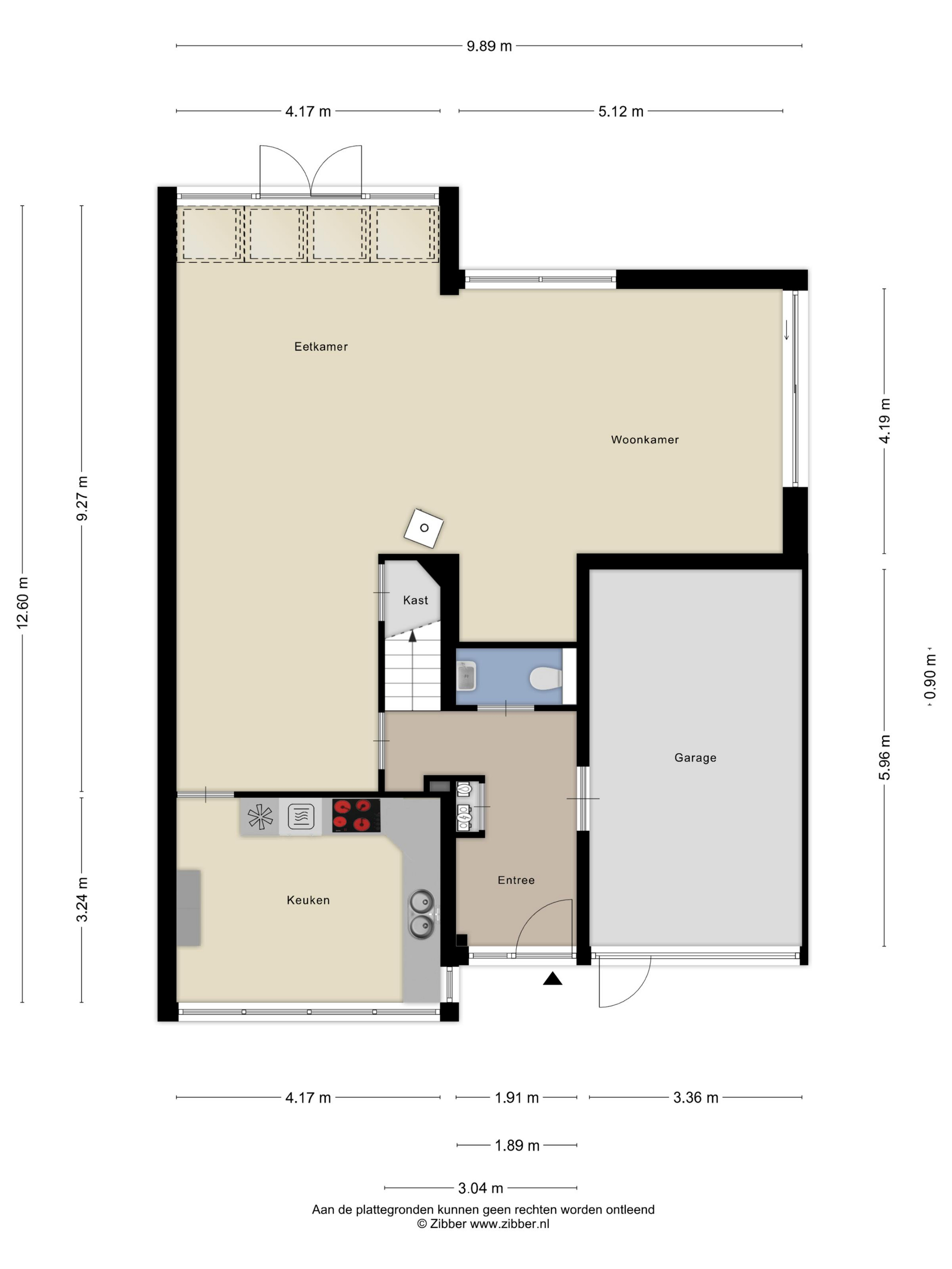
这座位于Bergschenhoek的联排别墅在空间与采光之间实现了精妙平衡,拥有174平方米巧妙布局的宜居空间。朝西的阳光花园与水道相伴,为居所赋予温润的生活节奏与罕见的家庭私密感。住宅静静坐落于适合家庭的安静小巷尾端,兼得宁静与Bergschenhoek繁华市中心的便捷距离。

步入家门,迎面是铺设瓷砖的玄关走廊,通往宽敞的起居室。地暖与法式落地门带来静谧而明亮的宜人氛围。新近翻修的L型厨房配备嵌入式电器和双槽水槽,兼顾实用性与便利性。室外露台直接连通室内与私家花园,空间流转自如。

四间卧室均带法式阳台,为家庭或宾客提供灵活空间。现代卫浴配有浴缸、步入式淋浴、地暖及精心选用的饰面。二层设有储藏与洗衣区;机械控制的卷帘与户外遮阳系统等细节,处处彰显生活品质。635平方米的地块包含可容纳三辆车的私人车道及连体车库。本地学校、公园与公共交通近在咫尺,助力日常自在而高效的生活节奏。对于希望在Bergschenhoek购买联排别墅的家庭而言,这座宅邸呈现出低调而充满归属感的温馨之选。

与 Baerz 一起探索 Bergschenhoek,您值得信赖的私人房产顾问和搜寻专家

把握贝尔赫森胡克高端市场需依赖专业经验、本地洞察与资源网络。资深顾问可助您低调获悉独家房源,并在细致谈判中掌控节奏。其专业判断对量身定制建筑、翻新潜力和社区动态甄别至关重要,更保障从法律、技术到财务环节的高效协作。

避免常见陷阱

国际买家经常浪费大量时间浏览重复、过时或误导性的在线房源,尤其是因为近 30% 的豪华物业根本不会公开上市。
卖方代理代表卖方的利益,而非您的利益;甚至仅仅对房产进行咨询,都可能导致中介在未经您同意的情况下将您登记为他们的“客户”。
通过 Baerz Property Finders & Advisors,您可以完全避免这些问题。
我们只代表您,提供独立建议、透明指导,并让您接触所有可售房源,包括私人及未上市的独家机会,这些往往不会被他人看到。

想知道如何获得您自己的私人房产顾问吗?联系我们,了解我们如何代表您的利益并为您打开整个市场。

特点

所有权转让
要价
€ 998.000 k.k.
状态
beschikbaar
接受
in overleg
建筑
房屋类型
Eengezinswoning
建筑类型
geschakelde woning
建筑时期
2001
能源评级
A
屋顶类型
lessenaardak
卧室
4
浴室
1
表面积和体积
生活区
174 m2
其他室内空间
20 m2
外部储存空间
2 m2
体积(立方米)
685 m3
地块大小
635 m2
设施
Mechanische ventilatie
Rolluiken
Buitenzonwering
Frans balkon
Glasvezel kabel
Aan water
In woonwijk
Beschutte ligging
Baerz & Co Property Brochure

宣传册

视频

户型图

DB Makelaars

Dorpsstraat 79
2661 CE Bergschenhoek

dominique@dbmakelaars.nl
+31 107850833

www.dbmakelaars.nl

信息/查看请求

Dominique Blom profile image
Dominique Blom
Register Makelaar Taxateur