Ons kantoor is lid van Baerz & Co Luxury Homes; een internationaal platform dat exclusieve woningmakelaars met elkaar verbindt. Neem contact op met ons secretariaat voor meer informatie over het landelijke aanbod, waarvan u hieronder een selectie kunt bekijken.

STEENBERGEN
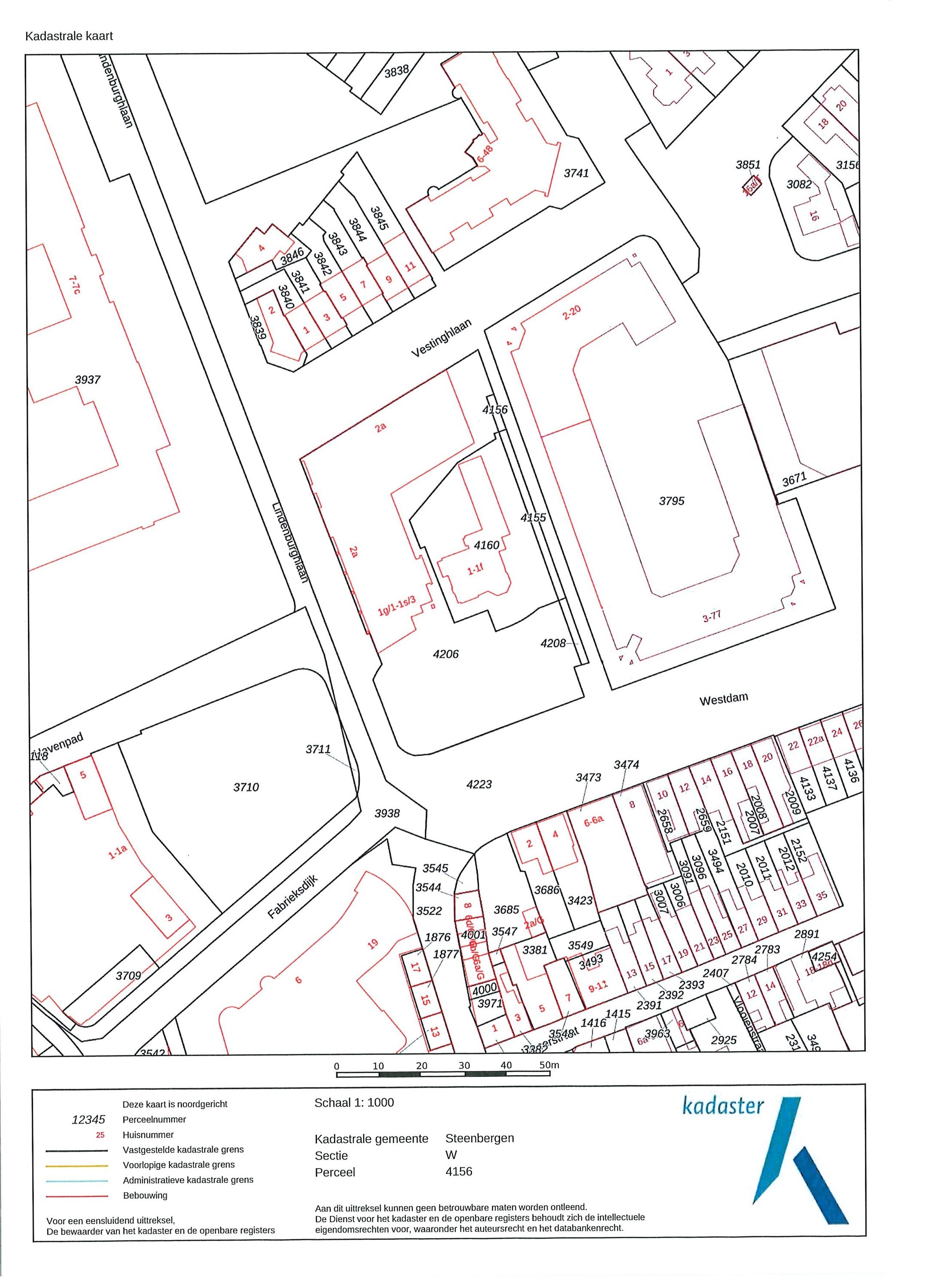
Westdam 1 r 3 - 4651 BE
荷兰

Erwin Schuurbiers profile image
Erwin Schuurbiers
Makelaar / Taxateur
€849,500 k.k.
生活区
131m2
地块大小
N/A
卧室
3

描述

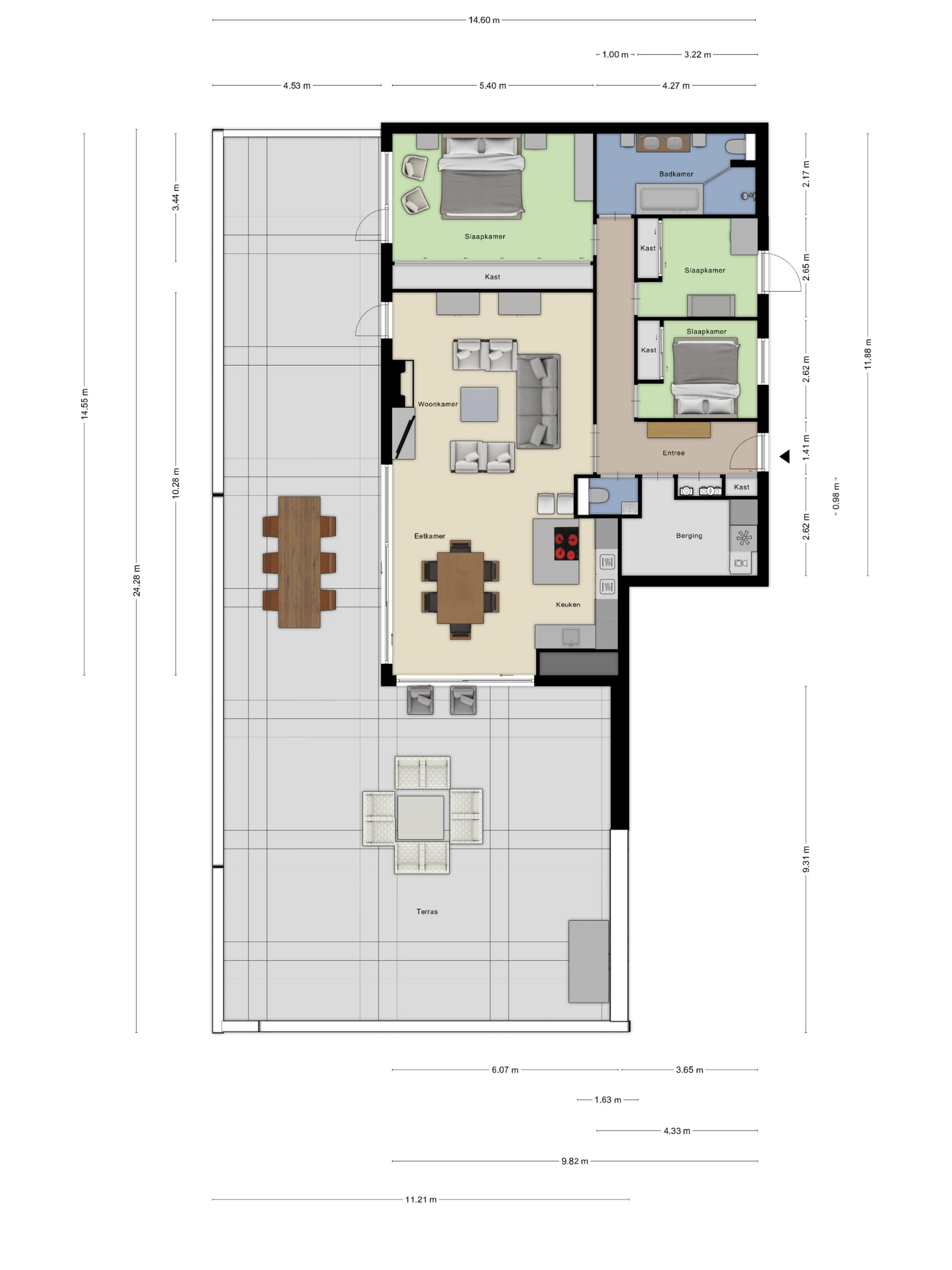
Steenbergen 顶层公寓在 2018 年竣工的 The New Villa 小区三层,匠心融合了私密性、品质感与当代生活的从容。这套 131 平方米的住宅配有三间卧室及独一无二的 165 平方米屋顶露台——如此宽阔的户外空间在城市生活中实属罕见。公寓精致工艺随处可见:Poggenpohl 厨房配备高端家电和花岗岩台面,客厅沐浴自然光线并以燃气壁炉为核心。每个房间均配地暖、空调、UTP 综合布线系统、电动卷帘以及智能枢轴门,现代舒适以低调高效方式全面实现。

卧室设计有定制衣柜,整体舒适度经过细致调校,主卧更是直通露台,让室内静谧与开阔蓝天自然衔接。浴室设有浴缸、内置 sun shower 的步入式淋浴和双洗手台,彰显每日生活仪式感。十块专属太阳能板、高标准隔热层与能源等级 A,悉心烘托可持续、面向未来的居住理念。户外超大露台配有休憩区(区分日晒与阴凉)、电源插座和按摩浴池,全年皆可享受私密避世之所。

住宅地处 Westdam,举步可至生活所需——商铺、餐厅、学校、港口及快速通达鹿特丹、布雷达和安特卫普的 A4 高速公路。Steenbergen 顶层公寓为追求城市与私密无缝切换的品味一族,呈现空间、私密与建筑清晰度的稀有平衡。

与 Baerz 一起探索 Steenbergen,您值得信赖的私人房产顾问和搜寻专家

这里最优质的房产多为非公开交易,仅通过资深专家和强大网络方可获得。把握本地政策、精准估值、链接信赖服务商,为交易带来多层保障。私人顾问可提供定制化房源筛选、洞察与顺畅议价体验。

避免常见陷阱

国际买家经常浪费大量时间浏览重复、过时或误导性的在线房源,尤其是因为近 30% 的豪华物业根本不会公开上市。
卖方代理代表卖方的利益,而非您的利益;甚至仅仅对房产进行咨询,都可能导致中介在未经您同意的情况下将您登记为他们的“客户”。
通过 Baerz Property Finders & Advisors,您可以完全避免这些问题。
我们只代表您,提供独立建议、透明指导,并让您接触所有可售房源,包括私人及未上市的独家机会,这些往往不会被他人看到。

想知道如何获得您自己的私人房产顾问吗?联系我们,了解我们如何代表您的利益并为您打开整个市场。

特点

太阳能面板
空调
所有权转让
要价
€ 849.500 k.k.
状态
beschikbaar
接受
in overleg
建筑
房屋类型
Penthouse
建筑类型
appartement
建筑时期
2018
能源评级
A
屋顶类型
plat dak
卧室
3
浴室
1
表面积和体积
生活区
131 m2
其他室内空间
0 m2
附属于建筑的外部空间
165 m2
外部储存空间
5 m2
体积(立方米)
433 m3
设施
Mechanische ventilatie
Tv kabel
Buitenzonwering
Lift
Airconditioning
Jacuzzi
Rookkanaal
Schuifpui
Zonnepanelen
Natuurlijke ventilatie
In centrum
Baerz & Co Property Brochure

宣传册

视频

户型图

Helmig Makelaardij en Taxatieburo o.z. B.V.

Dorpsstraat 107
4661 HN Halsteren

info@helmigmakelaardij.nl
+31 164-685925

www.helmigmakelaardij.nl

信息/查看请求

Erwin Schuurbiers profile image
Erwin Schuurbiers
Makelaar / Taxateur